

Jean-Loup Raynaud Immobilien GmbH
Herr Jean-Loup Raynaud
015 ···
Nr. anzeigenPreise & Kosten
Provision für Käufer
provisionsfrei
Lage
Die angebotene Eigentumswohnung liegt in der Pichelsdorfer Straße im Berliner Ortsteil Wilhelmstadt im Bezirk Spandau. Die Gebäude sind eingebettet in viel Grün und liegen direkt gegenüber dem einladenden Grimnitzpark mit seinem Grimnitzsee. Die direkte Umgebung bietet diverse Einkaufsmöglichkeiten und durch die vielen Wälder...
Die Wohnung
Bezug
sofort
Derzeitige Nutzung
frei
Wohnanlage
Energie & Heizung
Warum sehe ich diese Anzeige? – Du siehst diese Anzeige basierend auf Ihrer Navigation auf unserer Website und den Suchkriterien, die du verwendet hast.
Energieausweistyp
Verbrauchsausweis
Gebäudetyp
Wohngebäude
Baujahr laut Energieausweis
1910
Wesentliche Energieträger
Gas
Gültigkeit
28.04.2023 bis 27.04.2033
Effizienzklasse
E
Endenergieverbrauch
131,20 kWh/(m²·a)
Weitere Energiedaten
Energieträger
Gas
Heizungsart
Etagenheizung
Details
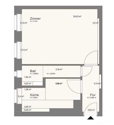
Objektbeschreibung
Die im Jahr 1910 erbaute Liegenschaft besteht aus vier Gebäudeteilen: einem Vorderhaus, einem Seitenflügel, einem Hinterhaus und einer Remise im zweiten Hinterhaus, die sich um einen gepflegten Innenhof gruppieren.
Ausstattung
Die Eckdaten dieser Wohnung im Überblick:
. Ruhig gelegen im 3. OG des Seitenflügels mit hohen Decken
. Lichtdurchflutet
. Vor kurzem saniert daher Erstbezug
. Elektrik vollständig erneuert
. Wände gespachtelt & gestrichen
. Holzdielen abgeschliffen & versiegelt
. Gefliestes Duschbad mit...
Weitere Informationen
Die Liegenschaft befindet sich im sozialen Erhaltungsgebiet „Wilhelmstadt“. Im Rahmen der Wohnungssanierung ist das Badezimmer vergrößert worden, damit eine ordentliche Duschmöglichkeit eingebaut werden kann. Diese Grundrissänderung wurde von der Milieuschutzbehörde schriftlich genehmigt.
- - - - - - - - - - - - - - - - -...
Anbieter der Immobilie
Jean-Loup Raynaud Immobilien GmbH
Wichertstr. 9, 10439 Berlin

Online-ID: 2mkb85f
Referenznummer: RO-PI-37-16_VERK.
Finde Angebote wie dieses
Hier geht es zu unserem Impressum, den Allgemeinen Geschäftsbedingungen, den Hinweisen zum Datenschutz und nutzungsbasierter Online-Werbung.