
Hausverwaltung Reißmann
Frau Steffi Reißmann
037 ···
Nr. anzeigenPreise & Kosten
Verhandlungsbasis
Provision für Käufer
Nach Absprache
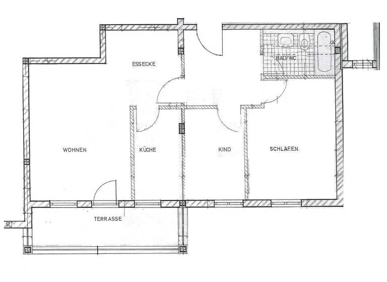
Die Wohnung
Wohnungslage
1. Geschoss
Bezug
sofort
Wohnanlage
Energie & Heizung
Warum sehe ich diese Anzeige? – Du siehst diese Anzeige basierend auf Ihrer Navigation auf unserer Website und den Suchkriterien, die du verwendet hast.
Energieausweistyp
Verbrauchsausweis
Gebäudetyp
Wohngebäude
Baujahr laut Energieausweis
1994
Wesentliche Energieträger
Erdgas
Gültigkeit
16.11.2017 bis 15.11.2027
Effizienzklasse
C
Endenergieverbrauch
85,40 kWh/(m²·a) - Warmwasser enthalten
Weitere Energiedaten
Energieträger
Gas
Heizungsart
Zentralheizung
Details
Objektbeschreibung
Objektbeschreibung
Im Erdgeschoss des Wohn- und Geschäftshauses befindet sich eine Physiotherapie, die Sparkasse sowie ein Blumenladen. Des Weiteren sind ein Frischemarkt, eine Apotheke und ein Bäcker fußläufig gut zu erreichen. Der Wildenfelser Park ist in wenigen Gehminuten ebenfalls leicht zu erreichen....
Weitere Informationen
Besichtigungstermin
*** !!! ACHTUNG !!! ***
Bitte kontaktieren Sie uns zunächst per Mail. Am Ende dieser Anzeige finden Sie die Möglichkeit den Anbieter zu kontaktieren. Bitte unter Angabe einer Telefonnummer. Bei sofortiger Verfügbarkeit einer Wohnung, erfolgt die Besichtigung nach vorheriger Absprache nach Möglichkeit...
Dokumente
Anbieter der Immobilie
Hausverwaltung Reißmann
Bahnhofstr. 46, 08056 Zwickau
Online-ID: 2ljgx5n
Referenznummer: Wildenfels, Zwickauer Str. 2 E7 / ETW3 1. OG
Finde Angebote wie dieses
Hier geht es zu unserem Impressum, den Allgemeinen Geschäftsbedingungen, den Hinweisen zum Datenschutz und nutzungsbasierter Online-Werbung.