

Wohnung zum Kauf265000 €4.907 €/m²3 Zimmer • 54 m² • 2. Geschoss
265000 €
4.907 €/m²
3 Zimmer • 54 m² • 2. Geschoss
Wohnung 54m2 zum Kauf - Krk, Centar
Merkmale
- 2. Geschoss
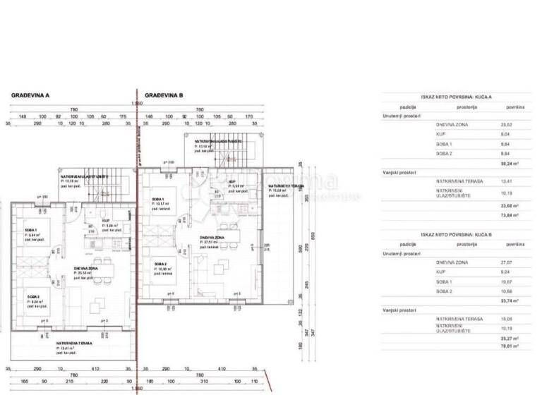
Grundrisse
Grundrisse
1 / 1
Realisiere Dein Projekt
Bausubstanz und Energie
Der Anbieter hat keine Informationen zum Energieverbrauch bereit gestellt.
- Baujahr2024
Preisdetails
Kaufpreis
265000 €
4.907,41 €/m²
Provision für Käufer
Bitte beachte, das Angebot kann bei Vertragsabschluss die Zahlung einer Provision beinhalten. Weitere Informationen erhältst Du vom Anbieter.
Lage

Centar
Der Anbieter hat die genaue Adresse nicht freigegeben
Weitere Informationen
Weitere Services
Lust auf eine Besichtigung?
Eine Frage zur Immobilie?
Ăśber den Anbieter
Online-ID: 2nd3h5f
Referenznummer: 18662202_1

Crozilla.com
Wie zufrieden bist du mit dieser Seite (nicht mit der Immobilie selbst)?
