Version: 8.22.5Navigation überspringen
25,76 €
3 Zimmer
Immowelt logo

Ladenfläche zur Miete
25,76 Euro pro Quadratmeter
3 Zimmer

Geschäftsfläche mit großer Auslagenfront am Parkring

Sehr geehrte Damen und Herren,

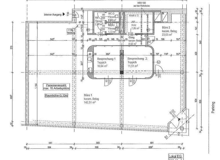
zur Vermietung steht eine attraktive Geschäftsfläche in erstklassiger Sichtlage am Parkring, direkt vis-à-vis des Stadtparks. Die Einheit umfasst rund 210 m² und überzeugt durch breite Auslagenfronten auf zwei Gebäudeseiten, die eine hervorragende Präsenz und starke Außenwirkung garantieren. Die Lage direkt am Ring sorgt für eine hohe Fahrzeugfrequenz, sowie eine optimale Wahrnehmbarkeit für Laufkundschaft und den vorbeifahrenden Verkehr.

Die Räumlichkeiten lassen flexible Nutzungskonzepte zu - von Verkaufs- und Präsentationsflächen über Showroom-Nutzung bis hin zu kombinierten Shop-Office-Lösungen. Offene Layouts oder strukturierte Raumaufteilungen sind gleichermaßen realisierbar.

Das Umfeld bietet ein hochwertiges gewerbliches und gastronomisches Angebot sowie eine ausgezeichnete öffentliche Erreichbarkeit.

Auf Wunsch können zwei Garagenstellplätze zusätzlich angemietet werden.

FAST FACTS

* Gesamtfläche: 210,41 m²
* Große Auslagenfronten auf zwei Seiten
* Hohe Sichtbarkeit durch Ringlage
* Großzügiger Präsentations- bzw. Verkaufsbereich
* Separater Empfangsbereich
* Zwei flexibel nutzbare Räume (z. B. als Büro, Beratung oder Lager)
* Teeküche
* Zwei Sanitäranlagen (Damen/Herren)
* Optional: 2 Garagenstellplätze (netto EUR 432,80 gesamt)

KOSTEN

* Miete netto: EUR 25,76 / m² / Monat
* Betriebskosten netto: EUR 8,60 / m² / Monat
* Miete netto: EUR 5.420,57
* BK netto: EUR 1.810,--
* Garagenstellplatz SP1/SP2 (EUR 216,40 x 2) > EUR 432,80 (netto)

 

Für Rückfragen oder zur Vereinbarung eines Besichtigungstermins steht die Fläche jederzeit zur Verfügung.

Ich freue mich auf Ihre Nachricht!

Wir weisen darauf hin, dass zwischen dem Vermittler und dem zu vermittelnden Dritten ein familiäres oder wirtschaftliches Naheverhältnis besteht.

Der Vermittler ist als Doppelmakler tätig.

Infrastruktur / Entfernungen

Gesundheit
Arzt <500m
Apotheke <500m
Klinik <500m
Krankenhaus <1.000m

Kinder & Schulen
Schule <500m
Kindergarten <500m
Universität <500m
Höhere Schule <500m

Nahversorgung
Supermarkt <500m
Bäckerei <500m
Einkaufszentrum <1.000m

Sonstige
Geldautomat <500m
Bank <500m
Post <500m
Polizei <1.000m

Verkehr
Bus <500m
U-Bahn <500m
Straßenbahn <500m
Bahnhof <500m
Autobahnanschluss <3.000m

Angaben Entfernung Luftlinie / Quelle: OpenStreetMap

Merkmale

  • Bezug: sofort
  • Erdgeschoss
  • Teeküche
  • Personenaufzug
  • 2 Stellplätze: 2 Garagen
  • voll klimatisiert
  • Bodenbelag: Parkett

Grundrisse

Grundrisse
1 / 1

Realisiere Dein Projekt

Bausubstanz und Energie

Der Anbieter hat keine Informationen zum Energieverbrauch bereit gestellt.
  • Zustand der ImmobilieNeubau, renoviert / saniert
Immowelt logo

Mietkosten

Nettokaltmiete
25,76 €/m²
5.420,57 €
Betriebskosten
1.810 €
Provision für Mieter
Bitte beachte, das Angebot kann bei Vertragsabschluss die Zahlung einer Provision beinhalten. Weitere Informationen erhältst Du vom Anbieter.
Kaution
6 Bruttomonatsmieten
Weitere Preisinformationen
2 Garagenstellplätze
Nettokaltmiete: 5.420,57 EUR

Lage

address-icon
Wien (1010)
Direkt am Parkring, vis-à-vis des Stadtparks

Hervorragende Erreichbarkeit:
- U4 Stadtpark
- U3 Stubentor

Straßenbahnlinien:
- 2
- 71
- D

Vielfältiges Angebot im unmittelbaren Umfeld:
- Gastronomie
- Hotels
- Banken

Weitere Informationen

Stichworte Nutzfläche: 210,41 m², Anzahl der separaten WCs: 2, Bundesland: Wien

Weitere Services

Lust auf eine Besichtigung?
Eine Frage zur Immobilie?
Nachricht hinzufügen
Mit der Nutzung der oben angegebenen Telefonnummer oder durch Klicken auf „Kontaktieren“ akzeptierst Du die Allgemeinen Nutzungsbedingungen, denen Du jederzeit widersprechen kannst. Weitere Informationen zum Datenschutz

Über den Anbieter

Rotenturmstrasse 17, Top 10-12, 1010 WIEN
partner badge
6 Jahre Partnerschaft
Herr Bernhard Kramer-DraubergDein Kontakt
Online-ID: 2m6fs5j
Referenznummer: OBGC2025112616414618082538c543b
Immobiliaris GmbH
Immobiliaris GmbH
Bewertung: 3,5 von 5 Sternen
Nachricht hinzufügen
Mit der Nutzung der oben angegebenen Telefonnummer oder durch Klicken auf „Kontaktieren“ akzeptierst Du die Allgemeinen Nutzungsbedingungen, denen Du jederzeit widersprechen kannst. Weitere Informationen zum Datenschutz
Wie zufrieden bist du mit dieser Seite (nicht mit der Immobilie selbst)?