Version: 8.24.0Navigation überspringen
1.050.000 €
3 Zimmer  •  115 m²
Immowelt logo

Penthouse zum Kauf
1050000 €
9.130 €/m²
3 Zimmer  •  115 m²

Exklusiv Wohnen hoch überm See

Nirgendwo halten wir uns länger und öfter auf als in unserem Zuhause. Folgerichtig ist also ein Gebäude weit mehr als nur ein Ort zum Wohnen, es ist der äußere Ausdruck des eigenen Lebensentwurfs. Diese Form der gelebten Individualität sollte durch alle Facetten der Architektur Unterstützung erfahren. Im Außenraum sind sowohl der Gesamteindruck als auch die Ausarbeitung gestalterischer Details von Bedeutung. Das Auge soll sich immer wieder an der Formgebung erfreuen. Die Südausrichtung der drei Baukörper und die Integration des Dreier-Ensembles in den Geländeverlauf unterstreichen die Qualität der Planung. Die Symbiose aus Naturnähe und urbanem Lebensgefühl kann kaum besser dargestellt werden. Die Grundrissentwicklung zeigt die Detailverliebtheit und den gestalterischen Anspruch des Planers. Jede Wohnung für sich überzeugt mit kreativen Gestaltungsmerkmalen und doch der nötigen Portion Praxistauglichkeit.
Für alle, die gerne weiträumig wohnen und sich an großzügigen Grundrissen erfreuen, wurden die Wohnungen in Haus A geplant. Die Bewohner genießen größtmögliche Privatsphäre, zumal alle drei Wohnungen jeweils das gesamte Geschoss umfassen. Alle Wohnungen verfügen über herrlich große Freisitze und im Erdgeschoss erweitert zudem noch ein privater Garten den persönlichen Freiraum. Lassen Sie sich im Penthouse von der fantastischen Aussicht überraschen und genießen Sie zu den unterschiedlichen Tageszeiten die verschiedenen Lichtstimmungen im Inneren und auf der fast komplett umlaufenden Dachterrasse.
Sie gelangen bequem und trockenen Fußes über die Tiefgarage in alle drei Gebäude. Mit dem jeweiligen Aufzug gelangen Sie schnell und barrierefrei in die Wohngeschosse. Genug zusätzliche Abstellfläche für Fahrräder und Kinderwagen wurden darüber hinaus in der Planung vorgesehen. Je Gebäude können die Bewohner einen separaten Raum zum Waschen und Trocknen nutzen. Als zusätzliche Lager- und Abstellmöglichkeit wird jeder Wohnung ein eigener und abschließbarer Kellerraum zugewiesen.
Lage, Design und Wohnkomfort sind die drei tragenden Säulen des Projekts.

Merkmale

  • Personenaufzug
  • Kelleranteil
  • 2 Stellplätze: Außen-Stellplatz, Tiefgarage
  • Gäste-WC
  • Balkon
Abstellkammer

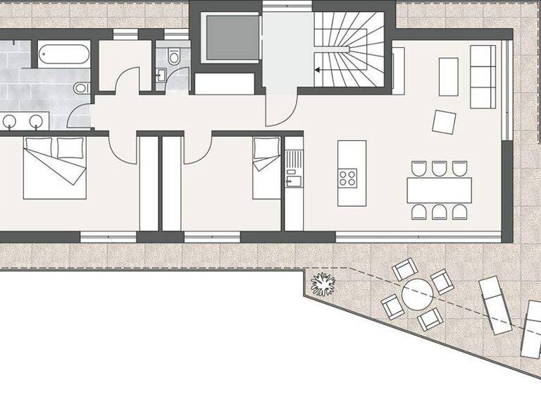
Grundrisse

Grundrisse
1 / 3

Realisiere Dein Projekt

Bausubstanz und Energie

Der Anbieter hat keine Informationen zum Energieverbrauch bereit gestellt.
  • Baujahr2025
  • Zustand der ImmobilieNeubau, neuwertig
  • HeizungsartFußbodenheizung
  • EnergieträgerLuft-/Wasser-Wärmepumpe
Immowelt logo

Preisdetails

Kaufpreis
1050000 €
9.130,43 €/m²
Preis pro Stellplatz
29500 €
Provision für Käufer
Die Vermittlung erfolgt für den Käufer provisionsfrei.
Grunderwerbssteuer, Notar- und Gerichtskosten trägt der Käufer.
Weitere Preisinformationen
1 Stellplatz, Kaufpreis: 18.000,00 EUR
1 Tiefgaragenstellplatz, Kaufpreis: 29.500,00 EUR
Geschätzte Gesamtkosten
1.123.500 €1
Kaufpreis
1.050.000 €
Notarkosten (1,5%)
15.750 €
Grunderwerbsteuer (5%)
52.500 €
Grundbucheintrag (0,5%)
5.250 €
1Der angezeigte Wert ist eine automatisch berechnete Schätzung von immowelt.
2Bei den Angaben handelt es sich um ortsübliche Werte. Individuelle Kosten können abweichen.

Lage

address-icon
Überlingen (88662)
Der Anbieter hat die genaue Adresse nicht freigegeben
Das südlich ausgerichtete Neubauprojekt befindet sich im Überlinger Norden. In diesem Teil von Überlingen leben Sie ruhig und sind doch gut an den Stadtbusverkehr angebunden. Durch die naturnahe Lage erreichen Sie fußläufig zahlreiche Wanderwege und wer Lust auf eine Partie Golf hat, erreicht mit dem Auto in wenigen Minuten den 18 Loch-Golfplatz Überlingen-Owingen.
Dass der See längst kein Geheimtipp mehr ist, verdankt er nicht nur großen Dichtern und Denkern. Der wachsende Zeitgeist mit einer bunten Mischung dreier Länderkulturen macht das Leben in Überlingen und Umgebung sehr begehrenswert und verspricht Wohnen inklusive Urlaubsflair. Die wunderschöne, historische Innenstadt, das mediterrane Ambiente  und die vielfältigen Angebote mit zahlreichen Cafés und Bars laden zum Genießen und Verweilen ein.
Hier spazieren Sie nicht nur an der längsten Uferpromenade des schwäbischen Meers, sondern finden zahlreiche grüne Parks und Natur satt. Die Landesgartenschau 2021 hat zahlreiche Gartenerlebnisse in der Stadt hinterlassen - eine echte Bereicherung für Anwohner und Gäste. Das fast schon mediterrane Klima und die belebende Anziehungskraft des Wassers ziehen seit über 100 Jahren Menschen jeden Alters an den Bodensee. Heutzutage kommt ein weiteres Argument hinzu - die gute Erreichbarkeit. Egal ob mit dem eigenen Pkw, per Bahn oder Flugzeug, die Verkehrsverbindungen sind hervorragend ausgebaut.

Weitere Informationen

Energiepass Energieausweis wird bei Besichtigung vorgelegt. Stichworte Süd-Balkon/Terrasse, Gesamtfläche: 115,40 m², Anzahl der Schlafzimmer: 2, Anzahl der Badezimmer: 1, Anzahl Balkone: 1, Bundesland: Baden-Württemberg, 4 Etagen Sonstiges/Wohnen: seniorengerechtes Wohnen

Weitere Services

Lust auf eine Besichtigung?
Eine Frage zur Immobilie?
Nachricht hinzufügen
Mit der Nutzung der oben angegebenen Telefonnummer oder durch Klicken auf „Kontaktieren“ akzeptierst Du die Allgemeinen Nutzungsbedingungen, denen Du jederzeit widersprechen kannst. Weitere Informationen zum Datenschutz

Über den Anbieter

Engel & Völkers
Engel & VölkersMaklerbüro
Konzilstraße 3, 78462 Konstanz
partner badge
10 Jahre Partnerschaft
Engel & Völkers ÜberlingenDein Kontakt
Online-ID: 2mq375k
Referenznummer: I-00XCV2-W-02T3VE
Engel & Völkers
Engel & Völkers
Bewertung: 4 von 5 Sternen
Nachricht hinzufügen
Mit der Nutzung der oben angegebenen Telefonnummer oder durch Klicken auf „Kontaktieren“ akzeptierst Du die Allgemeinen Nutzungsbedingungen, denen Du jederzeit widersprechen kannst. Weitere Informationen zum Datenschutz
Wie zufrieden bist du mit dieser Seite (nicht mit der Immobilie selbst)?