Version: 8.24.0Navigation überspringen
Living Fertighaus GmbH - Denny Wedell
580.000 €
4 Zimmer  •  117 m²  •  516 m² Grundstück

Einfamilienhaus zum Kauf
580000 €
4.957 €/m²
4 Zimmer  •  117 m²  •  516 m² Grundstück

Dein individuelles Traumhaus in Glienicke/Nordbahn - Fertighaus nach deinen Wünschen

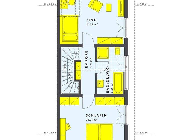
Dieses LivingHaus ist ein Doppelhaus, das ganz nach deinem Geschmack projektiert wird. Mit einer großzügigen Wohnfläche von 117 m² und einem durchdachten Raumkonzept bietet es dir und deiner Familie ein behagliches Zuhause. Die Architektur besticht durch eine ansprechende Eingangsüberdachung, die euch an beiden Haustüren vor Regen schützt. Der Zwerchgiebel sorgt im Obergeschoss für eine offene Silhouette des Satteldaches, die für mehr Licht und Luft in den Kinderzimmern sorgt. Mit zwei Schlafzimmern und zwei Badezimmern ist dieses Haus perfekt für eine kleine Familie oder zwei Generationen unter einem Dach. Die zwei Garagen mit Gründach unterstreichen das nachhaltige Konzept des Hauses und bieten Platz für eure Fahrzeuge. Hier wird nicht nur auf Funktionalität, sondern auch auf Ästhetik Wert gelegt. Die Nutzung modernster Technologie und umweltfreundlicher Materialien macht dein neues Zuhause zu einem echten Wohlfühlort.

LivingHaus bietet dir zahlreiche zusätzliche Leistungen, die deinen Bauprozess unterstützen und dein Zuhause noch individueller gestalten. Die Traumküche von LivingHaus wird exakt nach deinem Grundriss angefertigt, ausgestattet mit modernster Technik und cleveren Stauraumlösungen. Du kannst direkt nach dem Einzug loskochen, denn die Küche wird rechtzeitig geliefert. Mit dem LivingHaus Bau-Cockpit behältst du den Überblick über dein Projekt. Die digitale App ermöglicht dir den Zugriff auf Zeitpläne und Dokumente, damit dein Bau stressfrei abläuft.

Das I-KON - Intelligentes Bauen-Konzept sorgt dafür, dass dein Haus energieeffizient und umweltfreundlich ist. Du profitierst von einem Zuhause-Darlehen, das dir bis zu 250.000 Euro zu einem günstigen Zinssatz bietet und staatliche Förderprogramme in Anspruch nehmen lässt. Das Zuhause-Paket beinhaltet eine hochwertige Grundausstattung mit modernen Böden, edlen Türen und stilvollen Sanitäranlagen, perfekt aufeinander abgestimmt und sofort bezugsfertig. Wenn du selbst Hand anlegen möchtest, hilft dir das DIY-Ausbau-Coaching, in nur drei Tagen die Grundlagen des Innenausbaus zu erlernen, damit du dein Zuhause nach deinen Vorstellungen gestalten kannst.

Merkmale

  • 516 m² Grundstück
  • Einbauküche
  • Kein Keller
  • Gäste-WC
  • Badezimmer: Badewanne, Bad mit Dusche, Bad mit Fenster
Das Haus bietet eine hohe Flexibilität in der Ausstattung, darunter hochwertige Bodenbeläge, die du ganz nach deinen Wünschen auswählen kannst. Zusätzlich profitiert deine Familie von modernsten Sicherheitsgarantien. Ab dem Tag der Auftragsbestätigung gilt eine 18-monatige Festpreisgarantie, die dir Sicherheit bei den Kosten gibt. Es sind essenzielle Bauversicherungen enthalten, um dich bei unvorhergesehenen Ereignissen abzusichern. Du erhältst eine individuelle Beratung in der Haus-Statterei, ein Bodengutachten für die beste Baugrundlage und eine komplette Bauantragsplanung durch erfahrene Architekten. Alle Bauleistungen sind auf höchste ökologische, ökonomische und technische Standards abgestimmt. Mit einem hohen Vorfertigungsgrad wird der Bauprozess effizient gestaltet. Aluminiumgeschäumte Rollläden sorgen für angenehmes Raumklima im Sommer und Winter. Dein individuelles Traumhaus wird so sicher und passend wie möglich verwirklicht.

Grundrisse

Grundrisse
1 / 2

Realisiere Dein Projekt

Bausubstanz und Energie

Energieausweis

A+
  • Baujahr2026
  • Zustand der ImmobilieProjektiert
  • HaustypKfW 40
  • HeizungsartFußbodenheizung
  • EnergieträgerLuft-/Wasser-Wärmepumpe

Preisdetails

Kaufpreis
580000 €
4.957,26 €/m²
Provision für Käufer
Bitte beachte, das Angebot kann bei Vertragsabschluss die Zahlung einer Provision beinhalten. Weitere Informationen erhältst Du vom Anbieter.
Geschätzte Gesamtkosten
650.006 €1
Kaufpreis
580.000 €
Notarkosten (1,5%)
8.700 €
Grunderwerbsteuer (6,5%)
37.700 €
Provision für Käufer (3,57%)
20.706 €
Grundbucheintrag (0,5%)
2.900 €
1Der angezeigte Wert ist eine automatisch berechnete Schätzung von immowelt.
2Bei den Angaben handelt es sich um ortsübliche Werte. Individuelle Kosten können abweichen.

Lage

address-icon
Glienicke/Nordbahn (16548)
Der Anbieter hat die genaue Adresse nicht freigegeben
Glienicke/Nordbahn ist eine charmante Gemeinde, die dir und deiner Familie alles bietet, was ihr für ein komfortables Leben benötigt. In der Umgebung findest du ausgezeichnete Bildungseinrichtungen wie die Grundschule Glienicke, die von Eltern für ihre engagierten Lehrer und das gute Lernumfeld gelobt wird. Für die Kleinsten gibt es mehrere Kindergärten, die fußläufig erreichbar sind, wie den Kindergarten "Sonnenschein", der durch sein liebevolles Team und die naturnahe Erziehung glänzt.

Einkaufsmöglichkeiten sind ebenfalls reichlich vorhanden. Der nahegelegene Supermarkt Edeka bietet eine große Auswahl an frischen Lebensmitteln und alltäglichen Produkten. Für umfangreiche Einkäufe kannst du die nahegelegene Stadt Berlin in wenigen Minuten mit dem Auto oder dem öffentlichen Nahverkehr erreichen.

Im medizinischen Bereich gibt es mehrere Ärzte und Apotheken, die eine gute Gesundheitsversorgung sicherstellen. Die Gemeinde ist gut an den öffentlichen Nahverkehr angebunden, mit regelmäßigen Busverbindungen und der S-Bahn, die dich schnell nach Berlin bringt. Für Pendler ist die Autobahn A114 in unmittelbarer Nähe, wodurch du in kurzer Zeit in die Hauptstadt gelangst.

Freizeitmöglichkeiten sind in Glienicke/Nordbahn ebenfalls vielfältig. Der nahegelegene Wald lädt zu Spaziergängen und Fahrradtouren ein, während der Park am Schloßpark eine Oase der Ruhe bietet. Sportbegeisterte können im örtlichen Sportverein aktiv werden oder die Sportplätze und Spielplätze in der Umgebung nutzen. Diese perfekte Kombination aus Natur, Bildung und Infrastruktur macht Glienicke/Nordbahn zu einem idealen Wohnort für Familien und Naturliebhaber.

Weitere Informationen

Stichworte Nutzfläche: 117,00 m², Anzahl der Schlafzimmer: 2, Anzahl der Badezimmer: 2, 2 Etagen, Lage in der Siedlung Energiestandard: KFW55 Sonstiges/Wohnen: Dachboden

Weitere Services

Lust auf eine Besichtigung?
Eine Frage zur Immobilie?
Nachricht hinzufügen
Mit der Nutzung der oben angegebenen Telefonnummer oder durch Klicken auf „Kontaktieren“ akzeptierst Du die Allgemeinen Nutzungsbedingungen, denen Du jederzeit widersprechen kannst. Weitere Informationen zum Datenschutz

Über den Anbieter

Goerzallee 189-223, 14167 Steglitz-Zehlendorf
partner badge
Partnerschaft
Herr Denny WedellDein Kontakt
Online-ID: 2mkw65q
Referenznummer: 30678-8244
Living Fertighaus GmbH - Denny Wedell
Living Fertighaus GmbH - Denny Wedell
Bewertung: 5 von 5 Sternen
Nachricht hinzufügen
Mit der Nutzung der oben angegebenen Telefonnummer oder durch Klicken auf „Kontaktieren“ akzeptierst Du die Allgemeinen Nutzungsbedingungen, denen Du jederzeit widersprechen kannst. Weitere Informationen zum Datenschutz
Wie zufrieden bist du mit dieser Seite (nicht mit der Immobilie selbst)?