Version: 8.22.4Navigation überspringen
5,50 €
870 m² Lagerfläche
Immowelt logo

Lagerhalle zur Miete
5,50 Euro pro Quadratmeter
870 m² Lagerfläche

Zentral gelegene Gewerbefläche Rosenheim-Ost

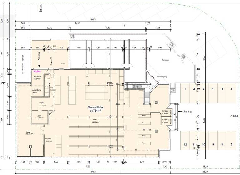
Die Gewerbeimmobilie liegt zentral im Ortsteil Haidholzen der Gemeinde Stephanskirchen, nur wenige Kilometer östlich des Oberzentrums Rosenheim. Die großzügige, ca. 870 m² große, offene Fläche bietet Platz für Lagernutzungen.

- sehr gut sichtbare Ecklage, schnell erreichbar von den umgebenden Staatsstraßen
- großes Wohngebiet im Umgriff
- großzügige, offene, vielseitig nutzbare Gewerbefläche
- bis zu 12 Parkplätze sind vor dem Haupteingang angeordnet

Zur Vermietung kommen:

- ca. 785 m² Gewerbefläche im EG
- ca. 85 m² Büro- und Sozialräume im 1. OG
- 12 PKW-Stellplätze vor dem Haupteingang
- 72 m² Aussenlager und Ladehof
- 1 PKW-Stellplatz in der Tiefgarage

Die Mietfläche wird geräumt und besenrein an den neuen Mieter übergeben.

Merkmale

  • Bezug: sofort verfügbar

Grundrisse

Grundrisse
1 / 1

Realisiere Dein Projekt

Bausubstanz und Energie

Der Anbieter hat keine Informationen zum Energieverbrauch bereit gestellt.
  • Baujahr1986
Immowelt logo

Mietkosten

Monatliche Miete
5,50 €/m²
Provision für Mieter
1,78 Netto-Monatsmieten inkl. MwSt.
Kaution
keine Angabe

Lage

address-icon
HaidholzenStephanskirchen (83071)
Der Anbieter hat die genaue Adresse nicht freigegeben
Im Bayerischen Voralpengebiet in der Nähe des Chiemsees, vor den Toren Rosenheims, erstreckt sich das Gemeindegebiet Stephanskirchens. Der Ort hat ca. 10.000 Einwohner und zählt zu den größeren Gemeinden im Landkreis Rosenheim. Stephanskirchen liegt auf der stark besiedelten Hochebene zwischen dem Inn im Westen und dem Siemssee im Osten. Westlich grenzt das Gemeindegebiet an die Stadt Rosenheim.

Es bestehen beste Verkehrsanbindungen in alle Richtungen. Über die Umgehungsstraße Ost ist die Autobahn A8, Anschlussstelle Rosenheim, in wenigen Minuten zu erreichen. Der öffentliche Personen-Nahverkehr schließt den Ort an den Bahnhof an.

Niedrige Steuersätze für Gewerbe- und Grundsteuer (Gewerbesteuer 300%) die schon seit 1980 unverändert geblieben sind, bieten äußerst positive Standortfaktoren für Gewerbebetriebe.

Das Gebäude befindet sich im Stephanskirchener Ortsteil Haidholzen und ist als Lebensmitteleinzelhandelsstandort genehmigt.

Weitere Informationen

Nutzung Lager Zusatz/Über Uns Sie möchten mehr Informationen zu diesem Objekt? Gern übersenden wir Ihnen unverbindlich unser aussagekräftiges Exposé. Ein Email oder Anruf genügt.

Die im Exposé angegebenen Daten beruhen auf Angaben des Eigentümers. Für diese Angaben übernehmen wir keine Gewähr. Der Maklervertrag mit uns kommt entweder durch schriftliche Vereinbarung oder auch durch die Inanspruchnahme unserer Maklertätigkeit auf der Basis des Objekt Exposés und seiner Bedingungen zustande.

Unsere Beratungsleistung ist erfolgsorientiert und für Sie bis zum Abschluss eines Vertrages freibleibend. Gern stehen wir Ihnen beratend zur Seite. Wir freuen uns auf Ihren Anruf.

Herzlich Willkommen bei Felder, Ihrem Spezialisten für Gewerbeimmobilien in Rosenheim, Traunstein, dem Chiemgau und Oberbayern.

Sie suchen eine Gewerbeimmobilie im Rosenheimer Land, Traunstein, Oberbayern oder dem Chiemgau und möchten sich bei Ihrer Suche auf das Fachwissen und Netzwerk eines starken Partners verlassen können? Sie möchten Ihre Gewerbeimmobilie vermieten oder verkaufen? Sie suchen die passenden Mieter oder Investoren? Dann sollten Sie uns ansprechen und von unserem Bekanntheitsgrad und großem Netzwerk in der Region profitieren.

Wir begleiten Sie vom ersten Kontakt bis zur Unterschrift unter dem Miet- oder Kaufvertrag. Seit über 25 Jahren ist die Firma Felder als der Spezialist für Gewerbeimmobilien im Rosenheimer Immobilienmarkt bekannt. Mehr Immobilien finden Sie auf www.felder-gewerbe.de

Weitere Services

Lust auf eine Besichtigung?
Eine Frage zur Immobilie?
Nachricht hinzufügen
Mit der Nutzung der oben angegebenen Telefonnummer oder durch Klicken auf „Kontaktieren“ akzeptierst Du die Allgemeinen Nutzungsbedingungen, denen Du jederzeit widersprechen kannst. Weitere Informationen zum Datenschutz

Über den Anbieter

Ludwigsplatz 15, 83031 Rosenheim
partner badge
10 Jahre Partnerschaft
Herr Thomas Wüstefeld
Herr Thomas WüstefeldDein Kontakt
Online-ID: 2kr6p5c
Referenznummer: A1468
Felder. Der Gewerbespezialist GmbH
title
Felder. Der Gewerbespezialist GmbH
Bewertung: 5 von 5 Sternen
Nachricht hinzufügen
Mit der Nutzung der oben angegebenen Telefonnummer oder durch Klicken auf „Kontaktieren“ akzeptierst Du die Allgemeinen Nutzungsbedingungen, denen Du jederzeit widersprechen kannst. Weitere Informationen zum Datenschutz
Wie zufrieden bist du mit dieser Seite (nicht mit der Immobilie selbst)?