Version: 8.25.1Navigation überspringen
1.260 €
2 Zimmer  •  78,8 m²  •  2. Geschoss  •  frei ab sofort
Immowelt logo

Wohnung zur Miete - Erstbezug
1.260 €
2 Zimmer  •  78,8 m²  •  2. Geschoss  •  frei ab sofort

2-Zimmer Wohnung mit Blick ins Grüne

Diese moderne und gut geschnittene Wohnung überzeugt durch eine durchdachte Raumaufteilung sowie eine helle und freundliche Wohnatmosphäre. Sie verfügt über ein gemütliches Schlafzimmer, das ausreichend Platz bietet.

Das Badezimmer ist mit einem Fenster ausgestattet und verfügt über eine großzügige, moderne Dusche. Ein praktischer Abstellraum innerhalb der Wohnung bietet zusätzlichen Stauraum und ist zudem mit einem Waschmaschinenanschluss ausgestattet, sodass Waschmaschine und Haushaltsutensilien bequem untergebracht werden können.
Der Mittelpunkt der Wohnung ist der großzügige und lichtdurchflutete Wohnbereich. Große Fensterflächen sorgen für viel Tageslicht und schaffen eine angenehme Wohnatmosphäre. Von hier aus gelangen Sie direkt auf den Balkon, der zusätzlichen Raum zum Entspannen im Freien bietet und sich ideal für eine kleine Sitzgruppe eignet.

Die Küche ist nicht Bestandteil der Wohnung und muss vom Mieter selbst eingebracht werden. Dadurch besteht die Möglichkeit, den Küchenbereich ganz nach den eigenen Vorstellungen und Bedürfnissen zu gestalten.

Für zusätzlichen Komfort sorgt eine moderne Fußbodenheizung, die in allen Räumen für eine gleichmäßige und angenehme Wärme sorgt. Elektrische Rollläden bieten zusätzlichen Komfort sowie Sicht- und Sonnenschutz.

Zur Wohnung gehört außerdem ein Stellplatz unter einem Dach, der Ihr Fahrzeug vor Witterungseinflüssen schützt. Ein weiterer separater Abstellraum im Erdgeschoss bietet zusätzlichen Platz für Fahrräder, Kisten oder saisonale Gegenstände.

Das Gebäude ist mit einem Fahrstuhl ausgestattet, sodass alle Etagen bequem erreichbar sind. Darüber hinaus besteht die Möglichkeit, am Mieterstrommodell teilzunehmen, wodurch Bewohner direkt vor Ort erzeugten Strom nutzen können. Dies kann nicht nur umweltfreundlicher sein, sondern auch zu Einsparungen bei den Stromkosten beitragen.

Merkmale

  • frei ab sofort
  • 2. Geschoss
  • Balkon
  • Terrasse
  • Parkhaus
+ KFW Effizienhaus EE40
+ Fußbodenheizung
+ Garagenstellplatz
+ Luft- Wasser-/ Wärmepumpe
+ Abstellschuppen für Fahrräder

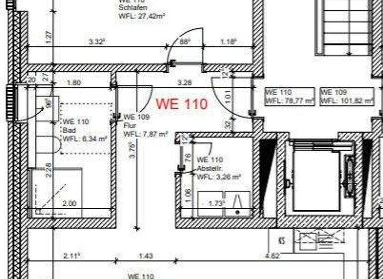
Grundrisse

Grundrisse
1 / 1

Realisiere Dein Projekt

Bausubstanz und Energie

Möchtest du Details zum Energieverbrauch?info_energy_calculation-icon
  • Baujahr2025
  • Zustand der ImmobilieErstbezug
  • HeizungsartFußbodenheizung
  • EnergieträgerLuft-/Wasser-Wärmepumpe
Immowelt logo

Mietkosten

Warmmiete
1.520 €
Kaltmiete
16 €/m²
1.260 €
Nebenkosten
260 €
Kaution
2520 €
Weitere Preisinformationen
1 Parkhausstellplatz

Lage

address-icon
Hans-Albrecht-Dicke Straße 11InnenstadtOsnabrück (49090)
Die Immobilie befindet sich am Fürstenauer Weg im beliebten Stadtteil Haste im Nordwesten von Osnabrück.
Die Umgebung zeichnet sich durch eine angenehme Mischung aus ruhiger Wohnlage und guter infrastruktureller Anbindung aus.

In wenigen Minuten erreichen Sie Supermärkte, Bäckereien, Apotheken sowie gastronomische Angebote, was den Alltag besonders komfortabel macht. An der Bibliothek der Hochschule Osnabrück ist man ebenfalls in nur 5 Minuten mit dem Fahrrad.
Auch Haltestellen des öffentlichen Nahverkehrs befinden sich in unmittelbarer Nähe, sodass sowohl das Stadtzentrum als auch umliegende Stadtteile schnell und unkompliziert erreichbar sind.

Das Wohnumfeld ist geprägt von Einfamilienhäusern, kleineren Mehrfamilienhäusern und gepflegten Grünflächen. Besonders attraktiv ist die Nähe zum Piesberg mit seinem beliebten Aussichtspunkt und den umliegenden Wanderwegen, die zahlreiche Möglichkeiten zur Naherholung bieten. Auch der Rubbenbruchsee sowie das Naherholungsgebiet Nettetal sind nur einen kurzen Ausflug entfernt und bieten Raum für Freizeit, Sport und Entspannung.

Zudem sind Schulen, Kindergärten und Sporteinrichtungen im näheren Umfeld vorhanden, was die Lage insbesondere für Familien attraktiv macht.

Weitere Informationen

Sonstiges Unsere Immobilienangebote verstehen sich freibleibend und unverbindlich. Zwischenvermittlung ausdrücklich vorbehalten. Die Angaben zum Objekt basieren auf erteilten Informationen Dritter. Für die Richtigkeit und Vollständigkeit kann deshalb keine Haftung übernommen werden.

Wir können Anfragen nur mit vollständig angegebenem Namen, Adresse und Telefonnummer bearbeiten. Wir bitten um Ihr Verständnis.

Die erforderlichen Energieangaben wurden entweder bereits im Exposé eingetragen oder der Energieausweis befindet sich derzeit in Bearbeitung.
Alle in dieser Anzeige gemachten Angaben, insbesondere zu den Energieverbrauchswerten, beruhen auf den Informationen aus dem uns vorliegenden Energieausweis. Trotz sorgfältiger Prüfung können unvollständige oder fehlende Angaben nicht vollständig ausgeschlossen werden. Für die Richtigkeit und Vollständigkeit der Angaben übernehmen wir daher keine Gewähr. Der vollständige Energieausweis kann jederzeit angefordert und eingesehen werden. Sollten Angaben im Exposé fehlen oder unvollständig sein, bitten wir höflich um Mitteilung, damit wir diese ergänzen können. Maßgeblich sind in jedem Fall die Daten aus dem vorliegenden Energieausweis.


Energieausweis in Bearbeitung ! Stichworte Anzahl der Schlafzimmer: 1, Anzahl der Badezimmer: 1, Anzahl Balkone: 1, Anzahl Terrassen: 1, Wohnungsnr.: 110, Distanz zum Kindergarten: 0.30, Distanz zur Grundschule: 0.30, Distanz zur Realschule: 3.00, Distanz zum Gymnasium: 3.00, Distanz zur Autobahn: 1.00, Distanz vom Zentrum: 4.00

Weitere Services

Lust auf eine Besichtigung?
Eine Frage zur Immobilie?
Mit einer persönlichen Nachricht hast du bessere Chancen auf eine Antwort.
Mit der Nutzung der oben angegebenen Telefonnummer oder durch Klicken auf „Kontaktieren“ akzeptierst Du die Allgemeinen Nutzungsbedingungen, denen Du jederzeit widersprechen kannst. Weitere Informationen zum Datenschutz

Über den Anbieter

Donnerschweer Str. 325, 26123 Oldenburg
Frau Zoe GerdungDein Kontakt
Online-ID: 26ISR328SP16
Referenznummer: CR-479_G_110
Capital-Real GmbH & Co.KG
Capital-Real GmbH & Co.KG
Mit einer persönlichen Nachricht hast du bessere Chancen auf eine Antwort.
Mit der Nutzung der oben angegebenen Telefonnummer oder durch Klicken auf „Kontaktieren“ akzeptierst Du die Allgemeinen Nutzungsbedingungen, denen Du jederzeit widersprechen kannst. Weitere Informationen zum Datenschutz
Wie zufrieden bist du mit dieser Seite (nicht mit der Immobilie selbst)?