Version: 8.25.1Navigation überspringen
135.000 €
5 Zimmer  •  98 m²  •  816 m² Grundstück
Immowelt logo

Doppelhaushälfte zum Kauf
135000 €
1.378 €/m²
5 Zimmer  •  98 m²  •  816 m² Grundstück

Sanierungsobjekt - Doppelhaushälfte in der Fehrbelliner Innenstadt

Zum Verkauf steht eine Doppelhaushälfte mit Nebengebäude in zentraler Stadtlage. Mit einer Wohnfläche von ca. 98 m², aufgeteilt in 5 Zimmer, Küche, Bad und Flur ist das Haus optimal auf Paare oder eine kleine Familie zugeschnitten.

Das Haus wurde um ca. 1930 erbaut und ist teilunterkellert. In den 1990er Jahre erfolgten Modernisierungsmaßnahmen: neue Dacheindeckung mit Unterspannbahn, Fassadenverkleidung im Erdgeschoss, oberhalb eine Giebelverkleidung und einige neue Fenster. Zuletzt wurde im Jahr 2009 eine Gasheizung installiert.

Das Haus ist einfach ausgestattet und weiter sanierungsbedürftig.

Merkmale

  • Bezug: sofort
  • 816 m² Grundstück
  • Keller

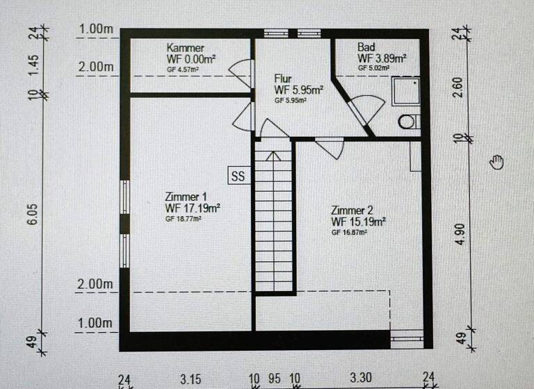
Grundrisse

Grundrisse
1 / 2

Realisiere Dein Projekt

Bausubstanz und Energie

Energieausweis

G
  • Baujahr1930
  • Zustand der Immobilierenovierungsbedürftig / sanierungsbedürftig
  • EnergieträgerGas
Immowelt logo

Preisdetails

Kaufpreis
135000 €
1.377,55 €/m²
Provision für Käufer
3,57 %
Geschätzte Gesamtkosten
151.294 €1
Kaufpreis
135.000 €
Notarkosten (1,5%)
2.025 €
Grunderwerbsteuer (6,5%)
8.775 €
Provision für Käufer (3,57%)
4.819 €
Grundbucheintrag (0,5%)
675 €
1Der angezeigte Wert ist eine automatisch berechnete Schätzung von immowelt.
2Bei den Angaben handelt es sich um ortsübliche Werte. Individuelle Kosten können abweichen.

Lage

address-icon
Fehrbellin (16833)
Der Anbieter hat die genaue Adresse nicht freigegeben
Fehrbellin ist eine Kleinstadt im Landkreis Ostprignitz Ruppin, mit ca. 8600 Einwohnern und nur ca. 30 Autominuten nordwestlich vom Berliner Stadtrand gelegen. Der Autobahnanschluss A24 Berlin - Hamburg liegt direkt am Ortsrand. Die Entfernung nach Neuruppin beträgt ca. 10 km, es gibt eine Busverbindung und auch einen neu ausgebauten Radweg.
Die Stadt verfügt über eine gute soziale Infrastruktur, so sind ein Kindergarten, Schule, Ärzte, Einkaufsmöglichkeiten und Gaststätten vorhanden.
Das Objekt liegt zentral in der Innenstadt am Dechtower Weg, mit freiem Blick auf den Postplatz.

Weitere Informationen

Stichworte Anzahl der Badezimmer: 1, 2 Etagen, Distanz zum Kindergarten: 0.50, Distanz zur Grundschule: 0.10, Distanz zur Realschule: 0.50, Distanz zum Gymnasium: 6.00, Distanz zur Autobahn: 2.00

Weitere Services

Lust auf eine Besichtigung?
Eine Frage zur Immobilie?
Nachricht hinzufügen
Mit der Nutzung der oben angegebenen Telefonnummer oder durch Klicken auf „Kontaktieren“ akzeptierst Du die Allgemeinen Nutzungsbedingungen, denen Du jederzeit widersprechen kannst. Weitere Informationen zum Datenschutz

Über den Anbieter

Karl-Marx-Str. 26, 16816 Neuruppin
Frau Andrea HuthDein Kontakt
Online-ID: 26BKQHM4U1QB
Referenznummer: 107
City Immobilien
City Immobilien
Bewertung: 5 von 5 Sternen
Nachricht hinzufügen
Mit der Nutzung der oben angegebenen Telefonnummer oder durch Klicken auf „Kontaktieren“ akzeptierst Du die Allgemeinen Nutzungsbedingungen, denen Du jederzeit widersprechen kannst. Weitere Informationen zum Datenschutz
Wie zufrieden bist du mit dieser Seite (nicht mit der Immobilie selbst)?