

Amann Immobilien GmbH & Co. KG
Herr Nicolas Amann
075 ···
Nr. anzeigenPreise & Kosten
Provision für Käufer
3,57% inkl. MwSt.
Lage
Das Haus befindet sich in Riedlingen-Neufra, einem attraktiven und familienfreundlichen Teilort der Stadt Riedlingen. Neufra zeichnet sich durch seine ruhige Wohnlage, gewachsene Nachbarschaft und gute infrastrukturelle Anbindung aus. Schulen, Kinderbetreuung, Einkaufsmöglichkeiten und Freizeitangebote sind in kurzer...
Das Haus
Baujahr
1995
Bezug
Sofort
Energie & Heizung
Warum sehe ich diese Anzeige? – Du siehst diese Anzeige basierend auf Ihrer Navigation auf unserer Website und den Suchkriterien, die du verwendet hast.
Energieausweistyp
Verbrauchsausweis
Gebäudetyp
Wohngebäude
Wesentliche Energieträger
Öl
Gültigkeit
05.12.2025 bis 05.12.2035
Effizienzklasse
C
Endenergieverbrauch
79,80 kWh/(m²·a)
Weitere Energiedaten
Energieträger
Öl
Details
Objektbeschreibung
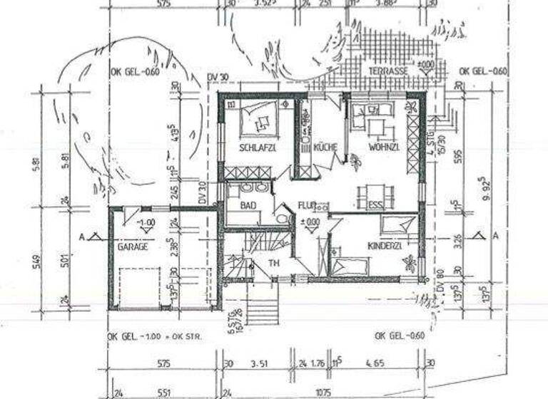
Dieses großzügige Einfamilienhaus in Riedlingen-Neufra bietet eine besonders flexible Raumaufteilung und vielfältige Nutzungsmöglichkeiten - ideal für Familien, Mehrgenerationenwohnen oder als Wohnhaus mit separater Einliegerwohnung im Dachgeschoss. Auf einem 637 m² großen Grundstück stehen insgesamt 6-8 Zimmer, zwei...
Ausstattung
++ 1-Familienhaus, auch als Zweifamilienhaus nutzbar
++ 637 m² Grundstück
++ Baujahr 1995
++ insgesamt 6 Zimmer im EG + DG
++ zusätzlich 2 als Wohnraum nutzbare Zimmer im UG
++ 2 Badezimmer
++ 2 separate Gäste-WCs
++ EG: 2 Schlafzimmer, Wohnzimmer, Küche, Bad, Terrasse, Gartenzugang
++ DG: 2...
Preisinformation
7 Garagenstellplätze
Weitere Informationen
Sonstiges
Hinweis zur Flächenberechnung:
Die Wohnfläche wurde aus dem Baugesuch entnommen. Zusätzlich wurde die Fläche über der Terrasse als Dachterrasse angelegt, die mit 50% (13,8qm) in die Wohnfläche mit einberechnet wurde.
Da die Räume im Keller wurden nicht in die Wohnfläche mit eingerechnet, da als Nutzfläche...
Anbieter der Immobilie

Online-ID: 2mg9z5l
Referenznummer: 4585479
Finde Angebote wie dieses
Hier geht es zu unserem Impressum, den Allgemeinen Geschäftsbedingungen, den Hinweisen zum Datenschutz und nutzungsbasierter Online-Werbung.