Version: 8.26.0Navigation überspringen
TDF Immobilien GbR
461.500 €
2 Zimmer  •  85,3 m²

Penthouse zum Kauf - Erstbezug • provisionsfrei
461500 €
5.413 €/m²
2 Zimmer  •  85,3 m²

Großzügige Penthouse Wohnung in St. Jürgen, Neubau, KFW40, Provisionsfrei

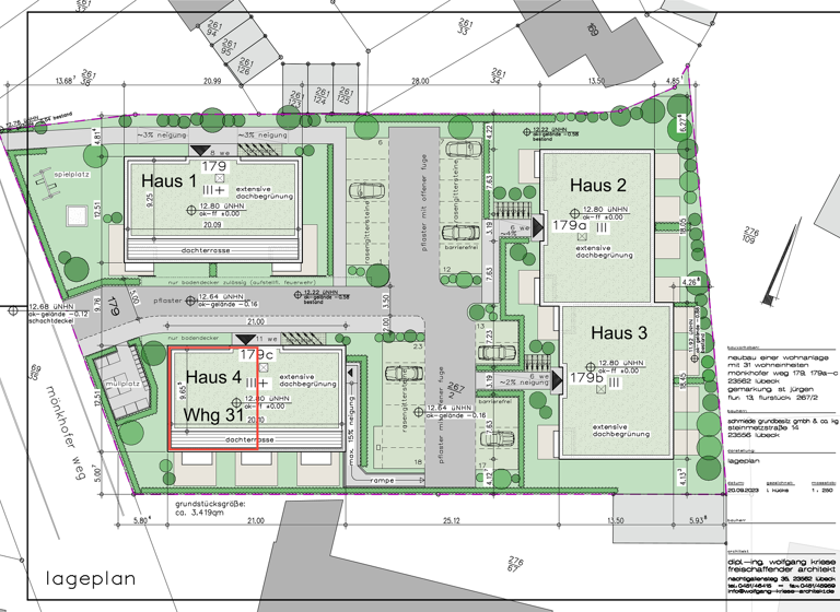
Im Mönkhofer Weg 179 entstehen insgesamt 31 Eigentumswohnungen, aufgeteilt auf vier architektonisch moderne Baukörper.

Die Gebäude werden in Massivbauweise und mit Flachdach im KfW 40 Standard hergestellt.

Auf dem Grundstück werden zudem noch 23 PKW Stellplätze, sowie eine Fahrrad Tiefgarage mit 60 Stellplätzen geschaffen.
Zusätzlich entsteht ein Kinderspielplatz auf dem Grundstück.

Die Gebäude sind größtenteils fertiggestellt.

Die hier angebotene zwei Zimmer Penthouse Wohnung (Nr. 31) befindet sich im Staffelgeschoss von Haus 4 und wird eine Wohnfläche von 85,26m² aufweisen.
Die Wohnung ist barrierefrei geplant und verfügt über eine nach Süd-Osten ausgerichtete Dachterrasse.

Die Wohnung können Sie ganz nach Ihren Vorstellungen gestalten. Egal ob Elektroplanung, Sanitärobjekte, Bodenbeläge, Fliesen oder Innentüren: Sie entscheiden, wie Ihre Wohnung aussehen soll.
Als Grundlage hierzu dient die Bau- und Leistungsbeschreibung des Bauträgers. Diese senden wir Ihnen gerne auf Nachfrage zu!

Sollten Sie sich für eine andere Wohnung aus der Wohnanlage Mönkhofer Weg 179 interessieren, die hier nicht aufgeführt ist, kommen Sie gerne auf uns zu.

Merkmale

  • Bezug: 2025/2026
  • Barrierefrei
  • Personenaufzug
  • Keller
  • Balkon
  • Außen-Stellplatz
- Fahrstuhl
- Ebenerdiger Zugang
- Fußbodenheizung in allen Räumen
- Dreifachverglaste Fenster, Schallschutzverglasung Straßenseitig
- Rollläden an allen Fenstern enthalten
- Heizung durch Luft-Wärmepumpe
- Individuell wählbare Bodenbeläge, Fliesen und Innentüren
- Individuelle Sanitärplanung
- Hochwertige Sanitärobjekte
- Individuelle Elektroplanung
- Schlüsselfertige Herstellung inklusive Bauendreinigung
- Zahlung nach Makler- und Bauträgerverordnung

Grundrisse

Grundrisse
1 / 3

Bausubstanz und Energie

Möchtest du Details zum Energieverbrauch?info_energy_calculation-icon
  • Baujahr2025
  • Zustand der ImmobilieErstbezug
  • EnergieträgerElektro
MediumRectangleTop

Preisdetails

Kaufpreis
461500 €
5.412,85 €/m²
Provision für Käufer
provisionsfrei
Weitere Preisinformationen
1 Stellplatz
Geschätzte Gesamtkosten
500.729 €1
Kaufpreis
461.500 €
Notarkosten (1,5%)
6.923 €
Grunderwerbsteuer (6,5%)
29.998 €
Grundbucheintrag (0,5%)
2.308 €
1Der angezeigte Wert ist eine automatisch berechnete Schätzung von immowelt.
2Bei den Angaben handelt es sich um ortsübliche Werte. Individuelle Kosten können abweichen.

Lage

address-icon
Mönkhofer Weg 179St. JürgenLübeck (23562)
Die Wohnanlage liegt zentral im beliebten Lübecker Stadtteil St. Jürgen und ist optimal ans öffentliche Verkehrsnetz angebunden.
In nur 80 Metern Entfernung befindet sich die nächste Bushaltestelle und nur 200 Meter weiter der Bahnhaltepunkt St. Jürgen von dem Sie innerhalb sieben Minuten zum Lübecker Hauptbahnhof gelangen.

Das UKSH Lübeck ist mit dem Auto in gerade einmal vier Minuten zu erreichen. Hier finden Sie unzählige Ärzte, sowie eine Augen- und Kinderklinik.

Angrenzend daran liegt die Universität zu Lübeck und die Technische Hochschule Lübeck.

Die nächste Grundschule ist in nur drei Autominuten zu erreichen.
Das Johanneum zu Lübeck befindet sich in knapp drei Kilometern Entfernung und kann wunderbar mit dem Bus erreicht werden.

In der Umgebung gibt es zahlreiche Einkaufsmöglichkeiten und Restaurants. Den nächstgelegenen REWE erreichen Sie in nur zwei Minuten mit dem Fahrrad.

Weitere Informationen

Sonstiges Alle Angaben erfolgen nach Auskunft unseres Auftraggebers. Für die Richtigkeit wird keine Gewähr übernommen. Dieses Angebot ist freibleibend.
Für Rückfragen sowie die Vereinbarung von Besichtigungsterminen stehen wir Ihnen jederzeit gerne unter
0170 9620534 zur Verfügung.
Besichtigungen sind nur nach Terminabsprache mit TDF Immobilien GbR möglich.
Wir freuen uns auf Sie! Energiepass Energieausweis wird bei Besichtigung vorgelegt. Stichworte Anzahl der Schlafzimmer: 1, Anzahl der Badezimmer: 1, Anzahl Balkone: 1

Weitere Services

Lust auf eine Besichtigung?
Eine Frage zur Immobilie?
Nachricht hinzufügen
Mit der Nutzung der oben angegebenen Telefonnummer oder durch Klicken auf „Kontaktieren“ akzeptierst Du die Allgemeinen Nutzungsbedingungen, denen Du jederzeit widersprechen kannst. Weitere Informationen zum Datenschutz

Über den Anbieter

TDF Immobilien GbR
Lange Reihe 8, 23568 Lübeck
partner badge
Partnerschaft

Weitere Unterlagen

Online-ID: 262XYAC2LNCP
Referenznummer: 179-31
MediumRectangleTop
Wie zufrieden bist du mit dieser Seite (nicht mit der Immobilie selbst)?