Version: 8.25.1Navigation überspringen
Schwabenhaus Reutlingen- Erik Reis - Handelsvertretung für die Schwabenhaus GmbH
495.000 €
5 Zimmer  •  140 m²  •  818 m² Grundstück

Einfamilienhaus zum Kauf • provisionsfrei
495000 €
3.536 €/m²
5 Zimmer  •  140 m²  •  818 m² Grundstück

Verwirklichen Sie jetzt Ihren Traum vom Eigenheim inkl. Keller

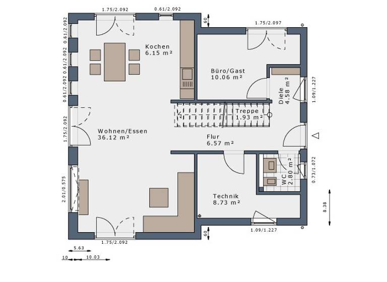
Das großzügige Einfamilienhaus besticht durch die modernen, großflächigen Fenster, die viel Licht ins Innere lassen und zum Verweilen mit Familie und Freunden einladen. Wohnen, Essen und Kochen bilden im Erdgeschoss eine Einheit und bieten über die Terrasse direkten Zugang in den Garten, sodass Sie Ihre Kinder stets im Blick haben. Im Erdgeschoss befinden sich außerdem ein Technikraum sowie ein Gäste-WC. Im Dachgeschoss gibt es keinen Streit um die Auswahl der Zimmer, denn diese sind nahezu gleich groß und im großzügigen Wellness-Bad gibt es am Morgen auch kein Gedränge.

Merkmale

  • 818 m² Grundstück
  • Gäste-WC
  • Keller
Jedes unserer Fertighäuser wird speziell für Sie geplant und ist perfekt auf die Anforderungen und Vorgaben Ihres Bauvorhabens angepasst - Bebauungspläne, eine besondere Grundstückslage und die gewünschten Eigenleistungen werden im Detail geprüft und berücksichtigt.

Jedes Schwabenhaus verfügt standardmäßig über:
- Doppel-Wärmepumpe mit 5 in 1-System: Heizen, Kühlen, Lüften, Luftreinigung und Warmwasser
- Zentrale kontrollierte Wohnraum Be- und Entlüftung mit Wärmerückgewinnung
- 3-Scheiben-Wärmeschutzglas
- elektrische Rollladensteuerung*
- Smart-Home-Technologie: Intelligentes Gebäude-Management für die Licht- und Rollladen-Steuerung*
- Schwimmender Estrich mit Wärmedämmung
- 10 Jahre Gewährleistung nach BGB (üblich: 5 Jahre) und 30 Jahre Garantie auf die Grundkonstruktion

*In Verbindung mit dem Technologie + Komfort-Paket "Blue-Edition"

Diesem Angebot liegt die beliebte Schwabenhaus-Ausbaustufe "Fast-Vollendet" zugrunde. Diese kann entsprechend Ihrer geplanten Eigenleistungen angepasst werden.

Grundrisse

Grundrisse
1 / 2

Realisiere Dein Projekt

Bausubstanz und Energie

Möchtest du Details zum Energieverbrauch?info_energy_calculation-icon
  • Zustand der ImmobilieNeubau, Projektiert
  • HeizungsartFußbodenheizung

Preisdetails

Kaufpreis
495000 €
3.535,71 €/m²
Provision für Käufer
provisionsfrei
Geschätzte Gesamtkosten
529.650 €1
Kaufpreis
495.000 €
Notarkosten (1,5%)
7.425 €
Grunderwerbsteuer (5%)
24.750 €
Grundbucheintrag (0,5%)
2.475 €
1Der angezeigte Wert ist eine automatisch berechnete Schätzung von immowelt.
2Bei den Angaben handelt es sich um ortsübliche Werte. Individuelle Kosten können abweichen.

Lage

address-icon
MägerkingenTrochtelfingen (72818)
Der Anbieter hat die genaue Adresse nicht freigegeben
Trochtelfingen ist eine Stadt auf der Schwäbischen Alb im Landkreis Reutlingen in Baden-Württemberg etwa 25 km südlich der Kreisstadt Reutlingen.

Weitere Informationen

Sonstiges Vereinbaren Sie einen persönlichen Beratungstermin, um über Ihren Haustraum und das angebotene Objekt zu sprechen.
Bitte beachten Sie, dass die dargestellten Bilder und Grundrisse nur beispielhaft sind und unter Umständen Sonderbauteile enthalten, die nicht im aufgerufenen Preis inkludiert sind.

Haben Sie außerdem Verständnis dafür, dass erst nach dem persönlichen Gespräch weitere Details zu dem angebotenen Grundstück bekanntgegeben werden und dass nur vollständige Anfragen bearbeitet werden können.

Anbauteile, Carport, Garage und Keller können Extras sein, die als Sonderausstattung angeboten werden. Abbildungen, Grundrisse und Flächenangaben sind beispielhaft und können Extras zeigen. Flächenangaben nach DIN 277.

Profitieren Sie jetzt von der Schwabenhaus Online Beratung und verwirklichen Sie Ihr Traumhaus https://www.schwabenhaus.de/anmeldung-hausbau-beratung-online/ Stichworte Nutzfläche: 71,00 m², Anzahl der Schlafzimmer: 3, Anzahl der Badezimmer: 1, Anzahl der separaten WCs: 1

Weitere Services

Lust auf eine Besichtigung?
Eine Frage zur Immobilie?
Nachricht hinzufügen
Mit der Nutzung der oben angegebenen Telefonnummer oder durch Klicken auf „Kontaktieren“ akzeptierst Du die Allgemeinen Nutzungsbedingungen, denen Du jederzeit widersprechen kannst. Weitere Informationen zum Datenschutz

Über den Anbieter

Große Heerstraße 33, 72793 Pfullingen
partner badge
Partnerschaft
Herr Erik Reis
Herr Erik ReisDein Kontakt
Online-ID: 23QLYTEH9IGY
Referenznummer: SH-376522-Trochtelfingen
Schwabenhaus Reutlingen- Erik Reis - Handelsvertretung für die Schwabenhaus GmbH
title
Schwabenhaus Reutlingen- Erik Reis - Handelsvertretung für die Schwabenhaus GmbH
Nachricht hinzufügen
Mit der Nutzung der oben angegebenen Telefonnummer oder durch Klicken auf „Kontaktieren“ akzeptierst Du die Allgemeinen Nutzungsbedingungen, denen Du jederzeit widersprechen kannst. Weitere Informationen zum Datenschutz
Wie zufrieden bist du mit dieser Seite (nicht mit der Immobilie selbst)?