
ImmoWolke
Herr Fatih Konakci
017 ···
Nr. anzeigenPreise & Kosten
Provision für Käufer
7 % zzgl. 19% MwSt.
Abschreibung/Anlage
als Kapitalanlage geeignet
Lage
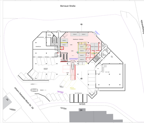
Der angebotene Teilbereich des IRPFELHAUSES befindet sich in zentraler Lage von Johann-Sebastian-Bach-Straße 28, 89537 Giengen an der Brenz.
Die Lage überzeugt durch eine sehr gute Infrastruktur: Schulen, Kindergärten und Einkaufsmöglichkeiten befinden sich in unmittelbarer Nähe. Die medizinische Versorgung ist...
Büro-/Praxisfläche
Kategorie
Lager-Gebäude
Baujahr
1974
Bezug
sofort
Derzeitige Nutzung
frei
Energie & Heizung
Warum sehe ich diese Anzeige? – Du siehst diese Anzeige basierend auf Ihrer Navigation auf unserer Website und den Suchkriterien, die du verwendet hast.
Energieausweistyp
Verbrauchsausweis
Gebäudetyp
Wohngebäude
Baujahr laut Energieausweis
1974
Wesentliche Energieträger
Erdgas
Gültigkeit
14.01.2025 bis 13.01.2035
Effizienzklasse
B
Endenergieverbrauch
73,00 kWh/(m²·a)
Weitere Energiedaten
Energieträger
Gas
Heizungsart
Fußbodenheizung, Zentralheizung
Details
Objektbeschreibung
Zum Verkauf steht ein Teilbereich des Gebäudekomplexes „IRPFELHAUS“, einer etablierten Gewerbeimmobilie mit gemischter Nutzung. Der angebotene Bereich verfügt über eine rechtskräftige Baugenehmigung zur Umnutzung in insgesamt 9 Wohneinheiten inklusive Stellplätzen und wird inklusive der genehmigten Planung...
Anbieter der Immobilie
ImmoWolke
Köflacher Str. 31, 89537 Giengen an der Brenz
Online-ID: 2njhb5c
Referenznummer: 191599
Finde Angebote wie dieses
Hier geht es zu unserem Impressum, den Allgemeinen Geschäftsbedingungen, den Hinweisen zum Datenschutz und nutzungsbasierter Online-Werbung.