Kapitalanlage mit Perspektive: Solides Zweifamilienhaus plus möglicher Dachgeschossausbau
Dieses gepflegte Zweifamilienhaus in Brackenheim vereint stabile Mieteinnahmen mit attraktivem Entwicklungspotenzial und bietet damit eine hervorragende Gelegenheit für Kapitalanleger und Projektentwickler. Auf einem ebenen Grundstück mit ca. 274 m² präsentiert sich die Immobilie in einem ruhigen und gewachsenen Wohngebiet, dass nicht nur zusätzlichen Wohnwert schafft, sondern auch langfristig die Vermietbarkeit sichert.
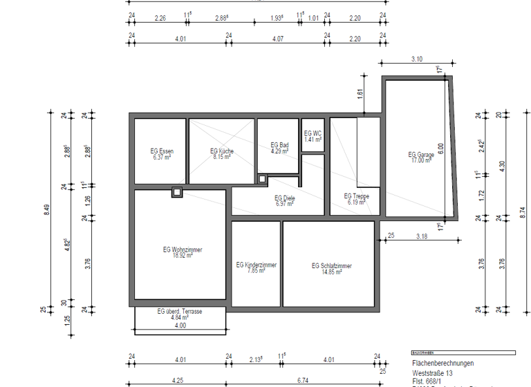
Das Wohnhaus wurde in massiver Bauweise errichtet und über die Jahre kontinuierlich instand gehalten sowie modernisiert. Die Fenster wurden in den 2000er Jahren erneuert, die Beheizung erfolgt über eine Ölzentralheizung aus dem Jahr 1996, ergänzt durch zwei Holzöfen, die den Wohnkomfort erhöhen und zur behaglichen Atmosphäre beitragen. Die Gesamtwohnfläche von rund 143 m² verteilt sich auf zwei eigenständige, gut geschnittene Wohneinheiten.
Die Erdgeschosswohnung mit ca. 71 m² überzeugt durch eine durchdachte Raumaufteilung mit zwei flexibel nutzbaren Zimmern, einer gepflegten Küche mit Einbauküche und angrenzendem Essbereich, einem Tageslichtbad sowie einem separaten WC. Das helle Wohnzimmer mit Zugang zur Terrasse und in den Garten bildet das Herzstück der Wohnung. Ein eigener Holzofen sorgt für zusätzliche Wohnqualität. Im Jahr 2022 wurde ein neuer Laminatboden verlegt, was den gepflegten Gesamteindruck unterstreicht. Dieser Wohnung ist auch die Einzelgarage vor dem Eingang zugeordnet.
Die rund 72 m² große Obergeschosswohnung wurde 2014 umfassend saniert und präsentiert sich modern und einladend. Ein großzügiges Wohnzimmer mit Balkon und Holzofen, eine helle Küche mit zeitgemäßer Einbauküche sowie ein stilvolles Tageslichtbad mit Dusche bieten zeitgemäßen Wohnkomfort. Auch hier stehen ein separates WC, ein eigener Kellerraum sowie ein PKW-Stellplatz zur Verfügung.
Besonders attraktiv für Investoren ist die aktuelle Vermietungssituation: Die Erd- und Obergeschosswohnung sind solide vermietet und erzielen derzeit eine monatliche Kaltmiete von insgesamt 1.238 €. Damit generiert die Immobilie vom ersten Tag an verlässliche Einnahmen und bietet eine stabile Grundlage für eine nachhaltige Kapitalanlage.
Ein zusätzliches Wertsteigerungspotenzial eröffnet das bereits projektierte Dachgeschoss. Hier besteht die Möglichkeit, eine dritte Wohneinheit mit ca. 50 m² Wohnfläche auszubauen. Durch diese Erweiterung lassen sich sowohl die Mieteinnahmen als auch der Gesamtwert der Immobilie deutlich steigern - eine interessante Perspektive insbesondere für Projektentwickler mit Weitblick.
Ob als langfristig orientierte Kapitalanlage mit gesicherten Ist-Erträgen oder als Objekt mit weiterem Entwicklungspotenzial zur gezielten Renditesteigerung - dieses Zweifamilienhaus bietet eine solide Substanz, eine attraktive Vermietungssituation und zusätzliche Ausbaureserven in gefragter Lage. Eine Investition mit Perspektive und nachhaltigem Wertzuwachs.
Merkmale
vermietet
274 m² Grundstück
Einbauküche
Keller
2 Stellplätze: 2 Garagen
Balkon
Garten
Terrasse
Grundrisse
Grundrisse
1 / 5
Realisiere Dein Projekt
Bausubstanz und Energie
Energieausweis
G
Baujahr1960
Zustand der Immobilieteilsaniert
HeizungsartZentralheizung
EnergieträgerÖl
Preisdetails
Kaufpreis
450000 €450.000 €
3.146,85 €/m²
Provision für Käufer
3,57 % Die Immobilie ist provisionspflichtig. Mit Ihrer Kontaktaufnahme erklären Sie sich mit den Konditionen, einschließlich der Provision, einverstanden. Weitere Informationen siehe Provisionshinweis.
Weitere Preisinformationen
2 Garagenstellplätze
Geschätzte Gesamtkosten
497.565 €1
Kaufpreis
450.000 €
Kaufnebenkosten
47.565 €
2
Notarkosten (1,5%)
6.750 €
Grunderwerbsteuer (5%)
22.500 €
Provision für Käufer (3,57%)
16.065 €
Grundbucheintrag (0,5%)
2.250 €
1Der angezeigte Wert ist eine automatisch berechnete Schätzung von immowelt.
2Bei den Angaben handelt es sich um ortsübliche Werte. Individuelle Kosten können abweichen.
Lage
Dürrenzimmern, Brackenheim (74336)
Der Anbieter hat die genaue Adresse nicht freigegeben
Willkommen in Brackenheim-Dürrenzimmern - einem charmanten und ruhig gelegenen Ortsteil der Stadt Brackenheim im Landkreis Heilbronn. Ihre neue Immobilie befindet sich in einer angenehm ruhigen Wohnlage innerhalb eines gewachsenen Quartiers, das geprägt ist von Einfamilien- und kleineren Mehrfamilienhäusern. Hier genießen Sie eine entspannte Nachbarschaftsatmosphäre mit sehr wenig Durchgangsverkehr - ideal für alle, die Wert auf Ruhe, Sicherheit und Wohnqualität legen.
Dürrenzimmern verbindet ländliche Idylle mit einer sehr guten Infrastruktur. Vor Ort stehen Ihnen eine Grundschule, ein Kindergarten, ein Bäcker sowie kleinere Geschäfte für den täglichen Bedarf zur Verfügung. Alles Weitere, wie Supermärkte, Apotheken, Ärzte oder weiterführende Schulen, erreichen Sie bequem in den benachbarten Brackenheimer Ortsteilen oder im Stadtzentrum - nur wenige Fahrminuten entfernt.
Auch die Anbindung ist optimal: Über die nahegelegene B293 gelangen Sie in nur rund 20 Minuten nach Heilbronn. Zudem sind Lauffen, Güglingen, Eppingen und sogar Stuttgart sowohl mit dem Auto als auch mit öffentlichen Verkehrsmitteln hervorragend erreichbar.
Freizeitliebhaber profitieren von der einzigartigen Lage im landschaftlich reizvollen Zabergäu. Malerische Weinberge, Rad- und Wanderwege sowie weitläufige Felder laden zu Aktivitäten an der frischen Luft ein und bieten Ihnen eine hohe Lebensqualität - sei es für Familien, Naturliebhaber oder Berufspendler.
Insgesamt überzeugt diese Lage durch Ruhe, Nahversorgung und optimale Erreichbarkeit - der perfekte Ausgangspunkt für entspanntes Wohnen mit bester Anbindung an das städtische Leben.
Weitere Informationen
Provisionshinweis
3,57 % Die Immobilie ist provisionspflichtig. Mit Ihrer Kontaktaufnahme erklären Sie sich mit den Konditionen, einschließlich der Provision, einverstanden. Die Provision fällt erst nach Abschluss des Kaufvertrags beim Notartermin an. Die genaue Höhe der Provision, inklusive Mehrwertsteuer, richtet sich nach dem Verkaufspreis der Immobilie.
Sonstiges
Sämtliche Angaben in diesem Exposé sind nach bestem Wissen zusammengestellt und bilden den Stand der Immobilie bei Erstellung des Exposés ab. Änderungen bleiben ausdrücklich vorbehalten. Als Rechtsgrundlage dient allein der notarielle Kaufvertrag. Angaben ohne Gewähr. Die Maklerprovision wird beim Notartermin fällig. Bitte beachten Sie bei Besichtigungswunsch unsere AGBs. Die Zustimmung hierzu ist Voraussetzung für einen Besichtigungstermin. Das Vereinbaren eines Besichtigungstermins gilt als Zustimmung zu unseren AGBs und wird mit einer Termineinladung unsererseits bestätigt. Die AGBs erhalten Sie zusammen mit dem Online-Exposé. Unsere AGBs können Sie auch jederzeit unter www.exzellent-leben.com nachlesen.
Stichworte
Garage vorhanden, Stellplatz vorhanden, Anzahl der Schlafzimmer: 4, Anzahl der Badezimmer: 2, Anzahl Balkone: 1, Anzahl Terrassen: 1, Balkon-Terrassen-Fläche: 25,00 m², Bundesland: Baden-Württemberg, 3 Etagen, modernisiert: 2014