Version: 8.24.0Navigation überspringen
549.000 €
3 Zimmer  •  136,5 m²  •  1.020 m² Grundstück
Immowelt logo

Einfamilienhaus zum Kauf
549000 €
4.212 €/m²
3 Zimmer  •  136,5 m²  •  1.020 m² Grundstück

Einfamilienhaus in ruhiger Lage

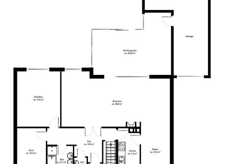
Dieses charmante Einfamilienhaus aus dem Jahr 1973 vereint ein großzügiges Raumangebot mit einer ruhigen, familienfreundlichen Lage - ideal für Paare oder Familien, die Wert auf eine entspannte Wohnatmosphäre legen. Auf einem weitläufigen, nach Westen ausgerichteten Grundstück von ca. 1.020 m² bietet die Immobilie vielfältige Nutzungsmöglichkeiten über zwei Etagen. Im Erdgeschoss erwarten Sie drei gut geschnittene Zimmer, die sich flexibel nach Ihren individuellen Bedürfnissen gestalten lassen. Das Dachgeschoss ist bereits teilweise ausgebaut und eröffnet zusätzliches Potenzial - es ist derzeit jedoch nicht in der angegebenen Wohnfläche enthalten. Für praktischen Komfort sorgen eine Garage sowie ein großzügiger Vollkeller mit reichlich Stauraum. Besonders interessant: In der Nachbarschaft wurden auf vergleichbaren Grundstücken bereits ein weiteres Gebäude in rückwärtiger Lage errichtet - eine Möglichkeit, die für dieses Grundstück vom Käufer selbst zu prüfen ist. Nutzen Sie diese Gelegenheit, ein Haus in bester Lage zu erwerben, und verwirklichen Sie hier Ihre Wohnträume.

Merkmale

  • Bezug: nach Vereinbarung
  • 1.020 m² Grundstück
  • Garage
Diese besondere Immobilie bietet komfortables Wohnen auf einer Ebene mit ca. 137 m² Wohnfläche - ideal für alle, die den ebenerdigen Lebensstil und großzügig geschnittene Räume zu schätzen wissen. Das große Vollbad mit Dusche, Wanne und Fenster bietet zahlreiche Gestaltungsmöglichkeiten, ein separates Gäste-WC sorgt für zusätzlichen Komfort. Der teilweise ausgebaute Spitzboden schafft zusätzlichen Raum für individuelle Nutzungsideen und mindestens zwei weitere Zimmer - Mit der Option, die Fläche nachträglich genehmigen zu lassen, bietet das Haus auch für größere Familien vielfältiges Potenzial. Besonders einladend ist der nachträglich angebaute und beheizte Wintergarten, der zu jeder Jahreszeit einen herrlichen Blick in den Garten ermöglicht. Für wohlige Wärme sorgt neben der effizienten Öl-Zentralheizung auch ein Kamin im Wohnzimmer, der in den kalten Monaten eine gemütliche Atmosphäre schafft. Der durchdachte Grundriss bildet eine hervorragende Basis, um hier ein modernes und individuelles Zuhause zu gestalten. Die Immobilie befindet sich insgesamt in einem sanierungsbedürftigen Zustand - perfekt für kreative Köpfe und handwerklich Begabte, die ihre Wohnträume in die Tat umsetzen möchten.

Grundrisse

Grundrisse
1 / 2

Realisiere Dein Projekt

Bausubstanz und Energie

Energieausweis

G
  • Baujahr1973
  • Zustand der Immobilierenovierungsbedürftig / sanierungsbedürftig
  • HeizungsartZentralheizung
  • EnergieträgerÖl
Immowelt logo

Preisdetails

Kaufpreis
549000 €
4.211,84 €/m²
Provision für Käufer
3,57 % inkl. MwSt.
Weitere Preisinformationen
1 Garagenstellplatz
Geschätzte Gesamtkosten
615.264 €1
Kaufpreis
549.000 €
Notarkosten (1,5%)
8.235 €
Grunderwerbsteuer (6,5%)
35.685 €
Provision für Käufer (3,57%)
19.599 €
Grundbucheintrag (0,5%)
2.745 €
1Der angezeigte Wert ist eine automatisch berechnete Schätzung von immowelt.
2Bei den Angaben handelt es sich um ortsübliche Werte. Individuelle Kosten können abweichen.

Lage

address-icon
Reinbek (21465)
Der Anbieter hat die genaue Adresse nicht freigegeben
Reinbek - Neuschönningstedt ist ein beliebter Ortsteil der Gemeinde Reinbek am Rande Hamburgs. Einkaufsmöglichkeiten des täglichen Bedarfs, Kindergärten und eine Grundschule befinden sich direkt vor Ort. Ein größeres Angebot an Geschäften und Restaurants finden Sie in Glinde, Reinbek oder Bergedorf. Die gute Verkehrsanbindung an die Autobahn 1 in Richtung Lübeck und Bremen sowie die Autobahn 24 in Richtung Hamburg und Berlin macht Neuschönningstedt auch für Pendler sehr attraktiv. Die Hamburger Innenstadt können Sie zügig in weniger als 30 Fahrminuten erreichen. Freizeitangebote stehen in großer Vielfalt im Umfeld zur Verfügung. Der nahegelegene Sachsenwald bietet Erholungsmöglichkeiten in der freien Natur. Das Einfamilienhaus befindet sich in zentraler Lage von Reinbek - Neuschönningstedt, Einkaufsmöglichkeiten des täglichen Bedarfs sowie die Ganztagsgrundschule können Sie bequem fußläufig erreichen.

Weitere Informationen

Stichworte Anzahl der Schlafzimmer: 2, Anzahl der Badezimmer: 1, Anzahl der separaten WCs: 1, Bundesland: Schleswig-Holstein, Distanz zum Kindergarten: 0.40, Distanz zur Grundschule: 1.00, Distanz zur Realschule: 3.00, Distanz zur nächsten Einkaufsmöglichkeit: 0.50, Distanz zum Gymnasium: 3.00, Distanz zur Autobahn: 2.80, Distanz zu U-/S-Bahn: 8.70, Distanz zum Bus: 0.30

Weitere Services

Lust auf eine Besichtigung?
Eine Frage zur Immobilie?
Nachricht hinzufügen
Mit der Nutzung der oben angegebenen Telefonnummer oder durch Klicken auf „Kontaktieren“ akzeptierst Du die Allgemeinen Nutzungsbedingungen, denen Du jederzeit widersprechen kannst. Weitere Informationen zum Datenschutz

Über den Anbieter

Bleichenbrücke 9, 20354 Hamburg
partner badge
Partnerschaft
Frau Marcela Wachholz
Frau Marcela WachholzDein Kontakt
Online-ID: 2n4935a
Referenznummer: WB 7292
Grossmann & Berger GmbH
title
Grossmann & Berger GmbH
Bewertung: 4,1 von 5 Sternen
Nachricht hinzufügen
Mit der Nutzung der oben angegebenen Telefonnummer oder durch Klicken auf „Kontaktieren“ akzeptierst Du die Allgemeinen Nutzungsbedingungen, denen Du jederzeit widersprechen kannst. Weitere Informationen zum Datenschutz
Wie zufrieden bist du mit dieser Seite (nicht mit der Immobilie selbst)?