Version: 8.22.4Navigation ĂĽberspringen
8 €
172,8 m² Lagerfläche
Immowelt logo

Lagerhalle zur Miete
8 Euro pro Quadratmeter
172,8 m² Lagerfläche

Lagerflächen in der Fabrik 1230 zu mieten

Kurzbeschreibung Lagerflächen in der Fabrik 1230 zu mieten Objekt Lagerflächen in der Fabrik 1230 zu mieten

Mitten im aufstrebenden Stadtteil Atzgersdorf im 23. Bezirk in Wien bietet die Fabrik1230 moderne, flexibel gestaltbare Büro-, Ordinations- und Gewerbeflächen in einem außergewöhnlichen Ambiente. Die Kombination aus historischem Industriecharme und zeitgemäßer Architektur schafft ein inspirierendes Arbeitsumfeld. Darüber hinaus ist das Gebäude mit der ÖGNI-Platin-Zertifizierung ausgezeichnet, was höchste Standards in Nachhaltigkeit, Energieeffizienz und Nutzerkomfort gewährleistet. Die Anbindung an den öffentlichen und individuellen Verkehr garantiert beste Erreichbarkeit. Zusätzlich stehen 42 Stellplätze in der Tiefgarage zur Verfügung. Das Projekt umfasst rund 4.000 m² Büroflächen, ein 1.400 m² großes Gesundheitszentrum mit Apotheke sowie vielseitige Veranstaltungsbereiche. Großzügige Terrassen mit grünen Akzenten schaffen eine angenehme Atmosphäre und fördern die Work-Life-Balance. Ein Fitnesscenter sowie die geplante Gastronomie im historischen Gebäudeteil runden das Angebot ab.

Verfügbare Büroflächen:
1. OG, Top 02.101, ca. 157,65 m²
1. OG, Top 02.102, ca. 102,98 m²
1. OG, Top 03.101, ca. 98,06 m²
3. OG, Top 01.302, ca. 163,83 m² + 54,79 m² Terrasse
3. OG, Top 02.301, ca. 504,84 m² + ca. 258,18 m² Terrasse
3. OG, Top 01.308, ca. 84,17 m²
4. OG, Top 02.401, ca. 432,05 m² + ca. 9,62 m² Terrasse
4. OG, Top 01.402, ca. 445,54 m² + 9,62 m² Terrasse
4. OG, Top 01.401, ca. 170,11 m²
5. OG, Top 02.501, ca. 365,61 m² + 102,86 m² Terrasse
5. OG, Top 01.501, ca. 316,51 m² + 62,60 m² Terrasse
Nettomiete/m²/Monat: € 14,00 - € 18,00

Verfügbare Ordinationsflächen:
2. OG, Top 01.202.8, ca. 29,76 m²
2. OG, Top 01.202.7, ca. 23,85 m²
2. OG, Top 01.202.6, ca. 23,89 m²
2. OG, Top 01.202.5, ca. 24,24 m²
2. OG, Top 01.202.4, ca. 24,28 m²
2. OG, Top 01.202.3, ca. 23,92 m²
Nettomiete/m²/Monat: € 25,00

Betriebskostenakonto/netto/m²/Monat: dzt. ca. € 3,00
Terrasse Nettomiete/m²/Monat: € 5,00

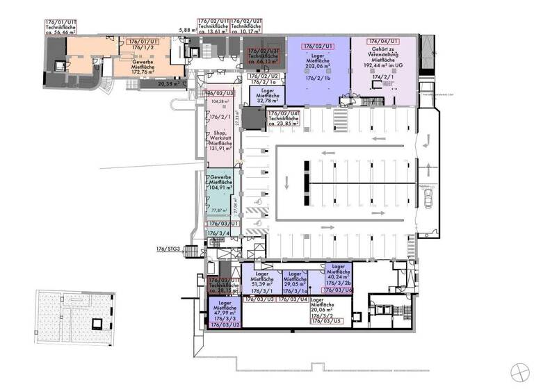
UG, Top 02.01, ca. 202,06 m² - Lager
UG, Top 02.02, ca. 40,65 m² - Lager
UG, Top 02.03, ca. 131,91 m² - Shop, Werkstatt
UG, Top 03.01, ca. 104,91 m² - Gewerbe
UG, Top 01.01, ca. 172,76 m² - Gewerbe
Nettomiete/m²/Monat: € 6,00 - € 8,00

Miete Stellplatz zu je € 120,00 zzgl. Betriebskosten iHv ca. € 30 zzgl. USt (p. M.)

Merkmale

  • Bezug: ab sofort
Elektrischer auĂźenliegender, sĂĽdseitiger Sonnenschutz
Teppichbelag (Farbauswahl durch mietende Partei) auf Doppelboden mit Bodendosen (2 EDV, 2 Schuko und 2 RJ45-DatenanschlĂĽsse, Vorbereitung fĂĽr CAT7 je Dose) im BĂĽrobereich
Feinsteinzeug im ausgestatteten Sanitärbereich
Terrassen mit Holzbelag
Sichtbare Stahlbetondecke
AnschlĂĽsse fĂĽr TeekĂĽchen im BĂĽrobereich
Heiz- und Kühlsystem über Betonkernaktivierung und Fußbodenheizung im Sanitärbereich Mechanische Be- und Entlüftung (ca. 2 bis 5-facher Luftwechsel) mit vorkonditionierter Luft

Grundrisse

Grundrisse
1 / 1

Realisiere Dein Projekt

Bausubstanz und Energie

Heizwärmebedarf (HWB)

C

Gesamtenergieeffizienz (fGEE)

A+
  • Baujahr2024
Immowelt logo

Mietkosten

Gesamtmiete
2.280,44 €
Nettokaltmiete
8 €/m²
1.382,08 €
Betriebskosten
518,28 €
Umsatzsteuer
380,08 €
Provision fĂĽr Mieter
3 BMM zzgl. USt. inkl. MwSt.
Kaution
3-6 BMM zzgl. USt.
Weitere Preisinformationen
Nettokaltmiete: 1.382,08 EUR

Lage

address-icon
Wien (1230)
Der Anbieter hat die genaue Adresse nicht freigegeben
U-Bahn: U6
Bus: 58A, 58B, 60A, 62A, 64A, 66A
Zug: S2, S3, S4

Weitere Informationen

Sonstiges Wir sind eine Tochtergesellschaft der ÖRAG-Österreichische Realitäten AG, Wien, genannt ÖRAG, und es besteht daher unter Umständen ein sonstiges wirtschaftliches Naheverhältnis im Sinne des Maklergesetzes zur ÖRAG und ihren anderen Tochtergesellschaften in Österreich. Das Naheverhältnis zur ÖRAG ergibt sich zB aus der Tatsache, dass die ÖRAG das Objekt für den Eigentümer verwaltet. Es kann aber auch ein wirtschaftliches Naheverhältnis im Sinne des Maklergesetzes zum Auftraggeber, also dem bzw. den Eigentümern bestehen, wenn wir laufend bzw. regelmäßig für diesen Auftraggeber als Makler tätig werden. Sollten Sie diesbezüglich Fragen haben oder eine weitere Aufklärung wünschen, wenden Sie sich bitte direkt an unseren Mitarbeiter.
Die ÖRAG Immobilien Vermittlung GmbH wird als Doppelmakler tätig.
Weitere Immobilien finden Sie auf unserer Website www.oerag.at. Stichworte Lagerfläche: 172,76 m², Bundesland: Wien, Distanz zum Hauptbahnhof: 0.98, Distanz zur Autobahn: 1.58, Distanz zu U-/S-Bahn: 1.67, Distanz zum Bus: 0.13

Weitere Services

Lust auf eine Besichtigung?
Eine Frage zur Immobilie?
Nachricht hinzufĂĽgen
Mit der Nutzung der oben angegebenen Telefonnummer oder durch Klicken auf „Kontaktieren“ akzeptierst Du die Allgemeinen Nutzungsbedingungen, denen Du jederzeit widersprechen kannst. Weitere Informationen zum Datenschutz

Ăśber den Anbieter

Bankgasse 1, 1010 Wien
partner badge
10 Jahre Partnerschaft
Herr Stefan PatzlDein Kontakt
Online-ID: 2manw5q
Referenznummer: 109240613_37
Ă–RAG Immobilien Vermittlung GmbH
Ă–RAG Immobilien Vermittlung GmbH
Bewertung: 4,7 von 5 Sternen
Nachricht hinzufĂĽgen
Mit der Nutzung der oben angegebenen Telefonnummer oder durch Klicken auf „Kontaktieren“ akzeptierst Du die Allgemeinen Nutzungsbedingungen, denen Du jederzeit widersprechen kannst. Weitere Informationen zum Datenschutz
Wie zufrieden bist du mit dieser Seite (nicht mit der Immobilie selbst)?