Für Investoren: Ruhige Top-Mikrolage nahe Promenade mit fertiger Baugenehmigung
Kurzbeschreibung
baugrundstueck-vodice-baugenehmigung-strandnaehe
Objekt
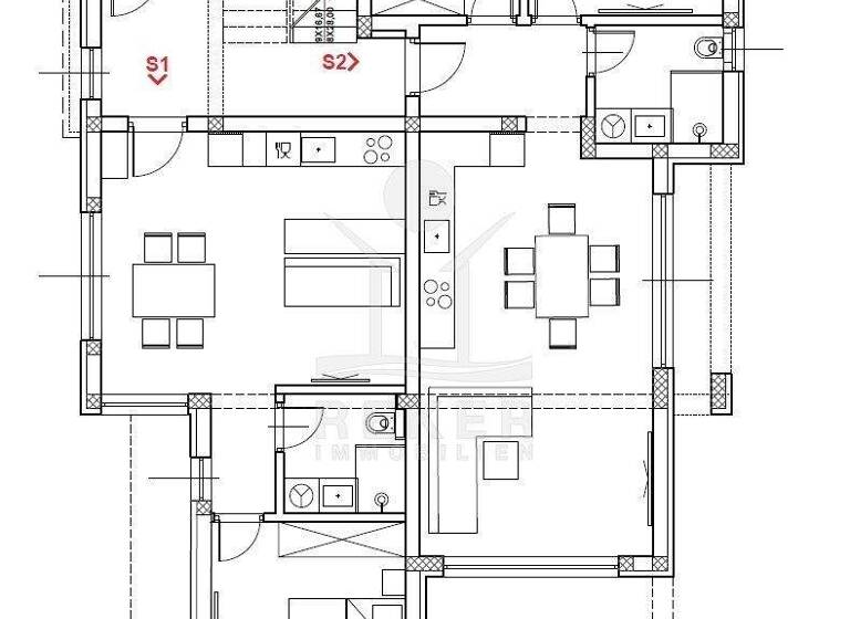
Dieses Baugrundstück denkt mit. Keine Wartezeiten, kein Genehmigungspoker, kein Standortkompromiss. Stattdessen: ruhige Top-Mikrolage, Promenadennähe und ein modernes Projekt, das sofort umgesetzt werden kann. Für Investoren, die lieber bauen als diskutieren.
Der Anbieter hat die genaue Adresse nicht freigegeben
Dieses Baugrundstück mit 748 m² befindet sich in einer besonders gefragten Mikrolage von Vodice. Das Umfeld ist ruhig. Promenade und Strand sind schnell erreichbar, gleichzeitig bleibt die Umgebung angenehm abgeschirmt. Zum neu renovierten Strand Vodice, Tribunj sind es nur 300 m. Das Zentrum von Vodice erreichen Sie nach rund 1.000 m. Die Lage ist sonnig, naturnah und bietet eine schöne Aussicht. Versorgungsanschlüsse sind bereits vorhanden, der Stromanschluss befindet sich im Erdgeschoss. Das erleichtert den Projektstart und spart Zeit.