Version: 8.25.1Navigation überspringen
96.000 €
4 Zimmer  •  113,8 m²  •  1.345 m² Grundstück
Immowelt logo

Einfamilienhaus zum Kauf
96000 €
844 €/m²
4 Zimmer  •  113,8 m²  •  1.345 m² Grundstück

Wohnen auf einer Ebene, überdachte Terrasse, Garage, Garten

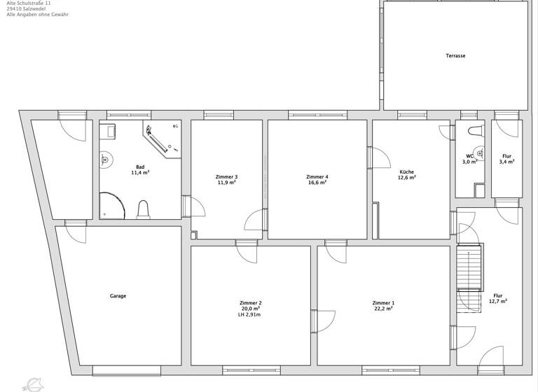
Das Einfamilienhaus befindet sich in Pretzier und wurde in Massivbauweise errichtet. Es bietet auf ca. 113,8 m² Wohnfläche eine funktionale Raumaufteilung auf einer Ebene. Das großzügige Grundstück mit 1.345 m² eröffnet vielfältige Nutzungsmöglichkeiten - von Gartenliebhaberei bis hin zur Tierhaltung oder weiteren Nebennutzungen.

Im Erdgeschoss stehen insgesamt vier Zimmer zur Verfügung. Die Deckenhöhe von ca. 2,91 m sorgt für ein angenehmes Raumgefühl und unterstreicht den großzügigen Charakter des Hauses. Ergänzt wird das Raumangebot durch eine Küche mit angrenzendem WC sowie ein Badezimmer mit Eckbadewanne und Dusche.

Der Dachboden ist derzeit nicht ausgebaut und bietet zusätzliche Ausbaureserve. Das Haus ist zudem unterkellert. Auf dem Hof befinden sich eine überdachte Terrasse, mehrere Stallgebäude sowie eine Garage mit Vorraum. Über der Garage befindet sich eine Dachterrasse, die aktuell über ein Dachbodenfenster zugänglich ist.

Der große Garten mit Laube bietet viel Platz für Erholung und Freizeit im Grünen. Die Zufahrt zum Grundstück erfolgt über ein Tor über das Nachbargrundstück.

Es liegt ein Energieverbrauchsausweis vor. Der Endenergieverbrauch der Immobilie beträgt 70 kWh/(m²*a) und liegt in Energieeffizienzklasse B. Der wesentliche Energieträger ist Erdgas.

Merkmale

  • 1.345 m² Grundstück
  • Badezimmer: Badewanne, Bad mit Dusche
  • Terrasse
  • Gartenanteil, Garten
  • Garage
. Brennwerttherme (2019)
. Badezimmer mit Eckbadewanne und Dusche (2010)
. Dach (1997), Dachboden bisher nicht ausgebaut
. Isolierverglaste Fenster mit Rolladen (1998)
. Überdachte Terrasse im Hofbereich (1994)

Ein schneller Internetanschluss mit bis zu 250 MBit/s im Download und 40 MBit/s im Upload ist laut Telekom verfügbar - ideal für Homeoffice oder Streaming.

Grundrisse

Grundrisse
1 / 1

Realisiere Dein Projekt

Bausubstanz und Energie

Energieausweis

B
  • Baujahr1910
  • HeizungsartZentralheizung
  • EnergieträgerGas
Immowelt logo

Preisdetails

Kaufpreis
96000 €
843,59 €/m²
Provision für Käufer
Bitte beachte, das Angebot kann bei Vertragsabschluss die Zahlung einer Provision beinhalten. Weitere Informationen erhältst Du vom Anbieter.
Geschätzte Gesamtkosten
106.147 €1
Kaufpreis
96.000 €
Notarkosten (1,5%)
1.440 €
Grunderwerbsteuer (5%)
4.800 €
Provision für Käufer (3,57%)
3.427 €
Grundbucheintrag (0,5%)
480 €
1Der angezeigte Wert ist eine automatisch berechnete Schätzung von immowelt.
2Bei den Angaben handelt es sich um ortsübliche Werte. Individuelle Kosten können abweichen.

Lage

address-icon
Alte Schulstraße 11PretzierSalzwedel (29410)
Das Einfamilienhaus befindet sich in einem Wohngebiet im Salzwedeler Ortsteil Pretzier. Das Wohngebiet zeichnet sich durch eine ruhige, gepflegte Umgebung aus. Pretzier verfügt über eine gute lokale Infrastruktur: Bäcker, Friseur, Tankstelle, Arzt, Tierarzt sowie ein eigener Bahnhof. Eine Grundschule und ein Kindergarten sind ebenfalls direkt im Ort vorhanden.

Die Hanse- und Baumkuchenstadt Salzwedel mit weiterführenden Schulen, umfassenden Einkaufsmöglichkeiten und kulturellen Angeboten ist nur etwa 7km entfernt. Der staatlich anerkannte Kurort Arendsee mit seinem beliebten Badesee ist ebenfalls gut erreichbar und liegt nur ca. 25km entfernt - ideal für Ausflüge, Erholung und Wassersport in der Region.

Weitere Informationen zum Ort finden Sie unter: http://pretzier-altmark.de/

Weitere Informationen

Provision Käufer-Provision 3,57 % des Kaufpreises Sonstiges Bitte bewahren Sie die Privatsphäre der Eigentümer und betreten Sie das Grundstück nicht. Vereinbaren Sie ausschließlich mit unserem Büro Ihre Besichtigung. Wir freuen uns auf Sie! Dieses Objekt bieten wir im Alleinauftrag an.

In dem Kurzexposé sind nur die wichtigsten Eckdaten enthalten. Weitere Unterlagen liegen in unserem Büro bereit. Eventuelle Fragen können telefonisch bzw. bei einer Besichtigung besprochen werden. Zur Terminabsprache erreichen Sie unser Büro werktäglich von 09.00 Uhr bis 12.00 Uhr (dienstags bis 18.00 Uhr und donnerstags bis 15.00 Uhr). Besichtigungen sind auch am Wochenende möglich.

Unsere Angebote sind selbstverständlich freibleibend. Die genannten Angaben sind ohne Gewähr und basieren auf Informationen des Eigentümers/Auftraggebers. Wir übernehmen keine Gewähr für die Vollständigkeit, Richtigkeit und Aktualität dieser Angaben. Ein Zwischenverkauf bleibt vorbehalten.
Wir nehmen Abstand von den Finanzierungsberechnungen auf den Immobilienbörsen.

Unser komplettes Verkaufs- und Vermietungsangebot finden Sie auf unserer Homepage unter: www.robra-immobilien.de

Selbstverständlich vermitteln wir Ihnen auf Wunsch Ansprechpartner für eine Finanzierung und örtliche Handwerker.



Verbraucherinformation gemäß Verordnung (EU) Nr. 524/2013 zur Online-Streitbeilegung in Verbraucherangelegenheiten:
Die Europäische Kommission stellt eine Plattform zur Online-Streitbeilegung (OS) bereit, die Sie hier finden: http://ec.europa.eu/consumers/odr/
Holger Robra - Immobilien nimmt an außergerichtlichen Streitbeilegungsverfahren vor Verbraucherschlichtungsstellen nicht teil. Stichworte Sonstiges/Wohnen: Dachboden

Weitere Services

Lust auf eine Besichtigung?
Eine Frage zur Immobilie?
Nachricht hinzufügen
Mit der Nutzung der oben angegebenen Telefonnummer oder durch Klicken auf „Kontaktieren“ akzeptierst Du die Allgemeinen Nutzungsbedingungen, denen Du jederzeit widersprechen kannst. Weitere Informationen zum Datenschutz

Über den Anbieter

Goethestraße 55, 29410 Salzwedel
partner badge
6 Jahre Partnerschaft
Frau Saskia WendaDein Kontakt
Online-ID: 26TV9GXH7N64
Referenznummer: K360204
Holger Robra Immobilien
Holger Robra Immobilien
Bewertung: 4,8 von 5 Sternen
Nachricht hinzufügen
Mit der Nutzung der oben angegebenen Telefonnummer oder durch Klicken auf „Kontaktieren“ akzeptierst Du die Allgemeinen Nutzungsbedingungen, denen Du jederzeit widersprechen kannst. Weitere Informationen zum Datenschutz
Wie zufrieden bist du mit dieser Seite (nicht mit der Immobilie selbst)?