

SW Homestaging/Immobilienvermittlung
Frau Sonja Wolbert
Kontaktiere den Anbieter schriftlich, es ist keine Telefonnummer hinterlegt.
Preise & Kosten
Provision für Käufer
Der Käufer zahlt bei Vertragsabschluss eine Maklerprovision in Höhe von 5,95% inkl. der gesetzlichen MwSt. in Höhe von 19%.
Die Grundlage der Provision ist der beurkundete Kaufpreis.
Lage
Das Wohn- und Geschäftshaus befindet sich im Zentrum von Ibbenbüren.
In unmittelbarer Nähe befinden sich Einkaufsmöglichkeiten, Ärzte, etc. sowie öffentliche Verkehrsmittel.
Für Berufspendler ist zudem die A30 in wenigen Minuten erreichbar.
Das Renditeobjekt
Kategorie
Wohn- und Geschäftshaus
Baujahr
1927
Energie & Heizung
Warum sehe ich diese Anzeige? – Du siehst diese Anzeige basierend auf Ihrer Navigation auf unserer Website und den Suchkriterien, die du verwendet hast.
Energieausweistyp
Bedarfsausweis
Gebäudetyp
Wohngebäude
Baujahr laut Energieausweis
1900
Wesentliche Energieträger
Fernwärme
Gültigkeit
13.08.2021 bis 12.08.2031
Effizienzklasse
E
Endenergiebedarf
157,40 kWh/(m²·a)
Details
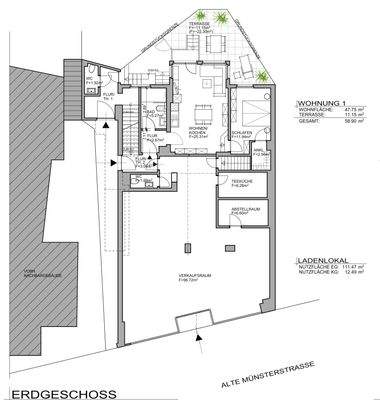
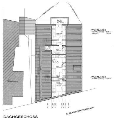
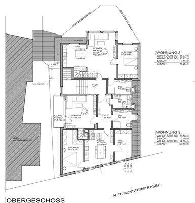
Objektbeschreibung
In zentraler Lage - der historischen Altstadt - befindet sich dieses wertbeständige und jüngst modernisierte Wohn- und Geschäftshaus mit drei Wohneinheiten sowie einer Gewerbeeinheit.
Alle Wohnungen verfügen über charmante Grundrisse mit Größen zwischen 59 m²,76 m² und 110 m² und sind sowohl für Singles, Paare oder...
Weitere Informationen
Sonstiges
Haben wir Ihr Interesse geweckt?
Für weitere Informationen und ein aussagekräftiges Exposé nehmen Sie gerne Kontakt zu uns auf.
Bitte haben Sie Verständnis, dass wir nur auf Anfragen mir vollständigen Kontaktangaben reagieren werden.
Alle Angaben sind ohne Gewähr und basieren ausschließlich auf...
Anbieter der Immobilie

SW Homestaging/Immobilienvermittlung
Frankfurter Heerstrasse 44, 49082 Osnabrück

Frau Sonja Wolbert
Dein Ansprechpartner
Kontaktiere den Anbieter schriftlich, es ist keine Telefonnummer hinterlegt.
Online-ID: 2l57v5s
Finde Angebote wie dieses
Hier geht es zu unserem Impressum, den Allgemeinen Geschäftsbedingungen, den Hinweisen zum Datenschutz und nutzungsbasierter Online-Werbung.