Version: 8.25.2Navigation überspringen
1.850.000 €
1.052 m² Lagerfläche
Immowelt logo

Lagerhalle zum Kauf
1850000 €
1.052 m² Lagerfläche

Vielseitige Gewerbehalle im Zentrum Kufstein zu Kaufen

Vielseitige Gewerbehalle mit Büro und Lager im Zentrum von Kufstein!

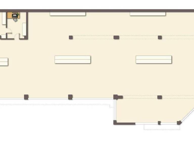
Im Herzen von Kufstein befindet sich diese großzügige Werkshalle mit Lagerflächen und optimaler LKW-Infrastruktur. Diese Gewerbeimmobilie bietet auf ca. 1050 Quadratmetern eine multifunktionale Nutzungsmöglichkeit für Unternehmen aus Industrie, Handwerk, Logistik oder Handel. Dank der zentralen Lage ist eine exzellente Anbindung an das Verkehrsnetz sowie an die umliegende Infrastruktur gewährleistet.

Flächenaufteilung:
- Werkshalle: Die großzügige Halle bietet ausreichend Platz für Produktions-, Montage- oder Werkstattarbeiten. Dank der hohen Deckenhöhe können auch größere Maschinen oder Regalsysteme problemlos untergebracht werden.
- Lagerflächen: Angrenzend an die Werkshalle befindet sich ein separates Lager, das ideal für die Lagerung von Materialien, Waren oder Rohstoffen geeignet ist.
-LKW-Laderampen: Die Immobilie verfügt über mehrere LKW-Laderampen, die einen reibungslosen Warenein- und -ausgang ermöglichen. Durch die ebenerdigen Rampen ist ein unkompliziertes Be- und Entladen gewährleistet.

Ausstattung:
- Werkshalle mit Büro: 656 m² Nutzfläche
- Deckenhöhe: 4,73 Meter hohe Werkshalle
- UG-Lager: 395 m² Nutzfläche
- Lichtverhältnisse: Große Fenster und ausreichend Beleuchtung sorgen für eine helle und angenehme Arbeitsatmosphäre.
- Stromversorgung: Leistungsstarke Stromanschlüsse sind für Maschinen und Geräte vorhanden.
- Bodenbelag: Robuster Industrieboden, geeignet für hohe Belastungen.
- Laderampen: Zwei Rampen für LKWs verschiedener Größen.

Lage:
Die Immobilie befindet sich in einer erstklassigen Lage im Zentrum von Kufstein. Das Objekt ist sowohl über den Straßenverkehr als auch über die Autobahn ideal erreichbar. Die Nähe zur österreichisch-deutschen Grenze bietet strategische Vorteile für logistik- und exportorientierte Unternehmen. Auch der Bahnhof ist in wenigen Minuten erreichbar, was eine hervorragende Anbindung an den öffentlichen Nahverkehr ermöglicht.

Vorteile auf einen Blick:
- Zentrale Lage im Herzen von Kufstein
- Großzügige Lager- und Produktionsfläche
- Mehrere LKW-Laderampen für schnellen Warentransport
- Flexible Nutzungsmöglichkeiten für verschiedene Branchen
- Sehr gute Verkehrsanbindung (Autobahn, öffentlicher Nahverkehr)

Diese Immobilie bietet ideale Voraussetzungen für Unternehmen, die eine funktionale, zentral gelegene Gewerbeeinheit suchen. Nutzen Sie diese Gelegenheit, um Ihr Geschäft im Zentrum von Kufstein zu etablieren. Kontaktieren Sie uns für eine Besichtigung oder weitere Informationen!

Infrastruktur / Entfernungen

Gesundheit
Arzt <500m
Apotheke <500m
Krankenhaus <2.000m

Kinder & Schulen
Schule <500m
Kindergarten <500m
Höhere Schule <2.000m
Universität <1.000m

Nahversorgung
Supermarkt <500m
Bäckerei <500m
Einkaufszentrum <500m

Sonstige
Bank <500m
Geldautomat <500m
Post <500m
Polizei <500m

Verkehr
Bus <500m
Autobahnanschluss <2.000m
Bahnhof <1.000m
Flughafen <3.500m

Angaben Entfernung Luftlinie / Quelle: OpenStreetMap

Merkmale

  • Bezug: ab sofort

Grundrisse

Grundrisse
1 / 2

Bausubstanz und Energie

Heizwärmebedarf (HWB)

E

Gesamtenergieeffizienz (fGEE)

D
  • Baujahr1973
  • Zustand der ImmobilieGepflegt
Immowelt logo

Preisdetails

Kaufpreis
1850000 €
Provision für Käufer
3% des Kaufpreises zzgl. 20% USt.

Lage

address-icon
Kufstein (6330)

Weitere Informationen

Stichworte Nutzfläche: 1.052,00 m², Bundesland: Tirol, 2 Etagen

Weitere Services

Lust auf eine Besichtigung?
Eine Frage zur Immobilie?
Nachricht hinzufügen
Mit der Nutzung der oben angegebenen Telefonnummer oder durch Klicken auf „Kontaktieren“ akzeptierst Du die Allgemeinen Nutzungsbedingungen, denen Du jederzeit widersprechen kannst. Weitere Informationen zum Datenschutz

Über den Anbieter

Bahnhofstraße 11, 6300 WÖRGL
Herr Alexander StreicherDein Kontakt
Online-ID: 26MDHDGK2TUR
Referenznummer: OBGC20260223180628221c61d226230
Wie zufrieden bist du mit dieser Seite (nicht mit der Immobilie selbst)?