Version: 8.22.4Navigation überspringen
879.000 €
5 Zimmer  •  147,7 m²
Immowelt logo

Doppelhaushälfte zum Kauf - Erstbezug
879000 €
5.950 €/m²
5 Zimmer  •  147,7 m²

Vom Licht durchflutet, von Raum umgeben - exklusive DH-Hälfte für urbane Genießer

Exklusive Designer-Doppelhaushälften mit Garten & Dachterrasse in urbaner Ruhelage - 1210 Wien

STATUS (Rohbau fertiggestellt)

In einer der attraktivsten Wohngegenden des 21. Bezirks entstehen zwei moderne, architektonisch durchdachte Designerhäuser - stilvoll geplant für Menschen mit gehobenem Anspruch. Großzügige Freiflächen, lichtdurchflutete Räume und durchdachte Grundrisse vereinen sich mit einer hervorragenden Lage in stadtnaher Ruhelage - perfekt für Familien, Berufstätige und alle, die Lebensqualität mit Stadtkomfort kombinieren möchten.

Überzeugen Sie sich selbst, vereinbaren Sie einen unverbindlichen Beratungstermin. Wir freuen uns sehr auf ein persönliches Gespräch mit Ihnen!

 

Beschreibung der Doppelhaushälfte

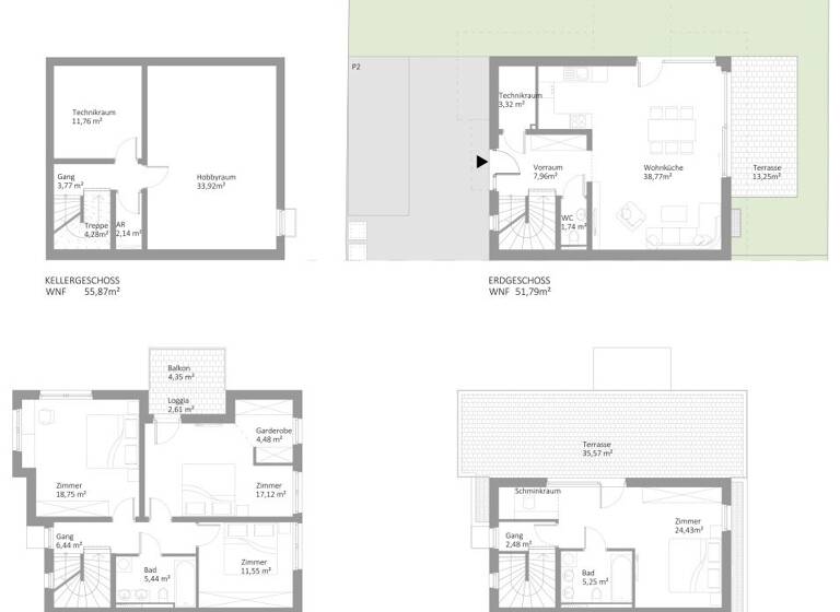
Erdgeschoss - Raum für Begegnung

Offener Wohnsalon mit Zugang zum Garten, elegante Küche mit großzügiger Gestaltung, raumhohe Fensterfront zur Terrasse - der ideale Treffpunkt für Familie und Gäste.

Obergeschoss - Privatsphäre & Geborgenheit

Drei helle Zimmer, ein Balkon, ein Schrankraum sowie ein stilvolles Bad mit Wanne - hier entsteht ein Ort zum Zurückziehen und Wohlfühlen.

Dachgeschoss - Ihr exklusives Refugium

Mit ca. 36 m² Wohnfläche, eigenem Bad, Kosmetikbereich und einer großflächigen Terrasse mit Weitblick bietet dieses Geschoss ein besonderes Highlight für entspannte Abende in der Abendsonne - ganz privat.

Kellergeschoss - Mehr Raum für Ideen

Ca. 55 m² zusätzliche Fläche für Hobbies, Lagerung oder Fitness - inkl. Technik- & Abstellraum.

 

Eine schlüsselfertige Ausführung ist auf Wunsch gerne möglich  

Die Aufschließungskosten sind bereits im Kaufpreis inkludiert.

 

Ausstattung & Highlights:

* Design trifft Funktion - moderne Architektur mit klaren Linien
* Große Freiflächen: Garten, Balkon, Dachterrasse
* Elektrische Raffstores & Rollläden
* Fußbodenheizung & Deckenkühlung für ganzjährigen Komfort
* Luft-Wasser-Wärmepumpe - energieeffizient & zukunftssicher
* Leerverrohrung für PV-Anlage bereits vorbereitet
* Belagsfertig oder schlüsselfertig - ganz nach Ihren Wünschen
* Massivbauweise in Topqualität durch erfahrene Bauträger
* gute Infrastruktur und Verkehrsanbindung
* familienfreundliche Umgebung
* maximale Wohlfühlatmosphäre in lichtdurchfluteten, sonnigen Räumen
* Belagsfertige Ausführung bei Übergabe
* auf Wunsch kann Ihr Haus auch schlüsselfertig übergeben werden

 

Lage, Infrastruktur & Mobilität - Stadt. Natur. Zuhause.

Diese exklusiven Doppelhaushälften befinden sich in einem ruhigen, begrünten Teil des 21. Bezirks - eine Gegend, die sich durch hohe Lebensqualität, beste Infrastruktur und ein familienfreundliches Umfeld auszeichnet.

Freizeit & Naherholung:

* Nur wenige Minuten zu beliebten Erholungsgebieten wie dem Marchfeldkanal, den Donauauen, dem Stammersdorfer Heurigenviertel oder dem Bisamberg
* Vielfältige Freizeitangebote: Radwege, Spazierwege, Reitställe, Tennis- & Fußballplätze sowie Spielplätze in der Umgebung
* Für Familien besonders attraktiv: grüne Parks, ruhige Wohnstraßen und nahegelegene Kindergärten, Schulen & Sportanlagen

Optimale Verkehrsanbindung:

* Buslinien und Straßenbahnlinien (z.?B. Linie 30/31) in fußläufiger Nähe
* U1 & U6 in wenigen Minuten erreichbar - perfekte Anbindung ans Stadtzentrum
* Schnellstraßenanschluss (S2, A22, B3) in kurzer Fahrdistanz - ideal auch für Pendler:innen oder Wochenendausflüge

Sehr gute Infrastruktur:

* Vielfältige Einkaufsmöglichkeiten (Supermärkte, Bäckereien, Apotheke) in unmittelbarer Nähe
* Nahversorgung durch zahlreiche Restaurants, Cafés, Ärztezentren, Drogerien etc.
* Zahlreiche Bildungseinrichtungen wie Volksschulen, Mittelschulen und Musikschulen befinden sich im direkten Umkreis

Fazit: Die perfekte Kombination aus Ruhe, Natur, urbaner Nähe und hoher Alltagspraktikabilität.

 

Vermerk: Wir weisen auf ein wirtschaftliches Naheverhältnis zum Abgeber hin. Alle Abbildungen dienen der Visualisierung und sind beispielhaft. Abweichungen in Planung und Ausführung - insbesondere aufgrund behördlicher Vorgaben, technischer Entwicklungen oder Lieferengpässen - sind vorbehalten. Die angegebene Ausstattung entspricht dem aktuellen Planungsstand. Einrichtungsgegenstände sind nicht Teil des Kaufpreises. Alle Angaben ohne Gewähr. Für die Richtigkeit und Vollständigkeit der Informationen, die uns vom Eigentümer zur Verfügung gestellt wurden, übernehmen wir keine Haftung.

Wir weisen darauf hin, dass zwischen dem Vermittler und dem zu vermittelnden Dritten ein familiäres oder wirtschaftliches Naheverhältnis besteht.

Der Vermittler ist als Doppelmakler tätig.

Infrastruktur / Entfernungen

Gesundheit
Arzt <500m
Apotheke <500m
Klinik <1.500m
Krankenhaus <1.500m

Kinder & Schulen
Schule <500m
Kindergarten <500m
Universität <1.500m
Höhere Schule <3.000m

Nahversorgung
Supermarkt <500m
Bäckerei <500m
Einkaufszentrum <1.500m

Sonstige
Geldautomat <500m
Bank <500m
Post <500m
Polizei <1.000m

Verkehr
Bus <500m
U-Bahn <2.500m
Straßenbahn <500m
Bahnhof <1.500m
Autobahnanschluss <2.000m

Angaben Entfernung Luftlinie / Quelle: OpenStreetMap

Merkmale

  • Balkon
  • Terrasse
  • Badewanne
  • Loggia

Grundrisse

Grundrisse
1 / 1

Realisiere Dein Projekt

Bausubstanz und Energie

Heizwärmebedarf (HWB)

B

Gesamtenergieeffizienz (fGEE)

A+
  • Baujahr2024
  • Zustand der ImmobilieNeubau, Erstbezug
  • HeizungsartFußbodenheizung
  • EnergieträgerLuft-/Wasser-Wärmepumpe
Immowelt logo

Preisdetails

Kaufpreis
879000 €
5.950,04 €/m²
Provision für Käufer
3% des Kaufpreises zzgl. 20% USt.

Lage

address-icon
Wien (1210)

Weitere Informationen

Stichworte Ost-Süd-Süd-Ost-Balkon/Terrasse, Nutzfläche: 476,05 m², Freifläche: 272,45 m², Anzahl der Badezimmer: 2, Anzahl der separaten WCs: 3, Anzahl Balkone: 1, Anzahl Terrassen: 2, Anzahl Loggias: 1, Balkon-Terrassen-Fläche: 55,78 m², Gartenfläche: 216,67 m², Kellerfläche: 55,87 m², Bundesland: Wien, 3 Etagen, Wohnungsnr.: 2 Sonstiges: Neubaustandard

Weitere Services

Lust auf eine Besichtigung?
Eine Frage zur Immobilie?
Nachricht hinzufügen
Mit der Nutzung der oben angegebenen Telefonnummer oder durch Klicken auf „Kontaktieren“ akzeptierst Du die Allgemeinen Nutzungsbedingungen, denen Du jederzeit widersprechen kannst. Weitere Informationen zum Datenschutz

Über den Anbieter

Elisabethstraße 22/ Top 2, 1010 WIEN
partner badge
3 Jahre Partnerschaft
Frau Beatrix FötschDein Kontakt
Online-ID: 2llc65f
Referenznummer: OBGC20250626114615428d1ad5fcbdb
Bero Immobilien GmbH
Bero Immobilien GmbH
Nachricht hinzufügen
Mit der Nutzung der oben angegebenen Telefonnummer oder durch Klicken auf „Kontaktieren“ akzeptierst Du die Allgemeinen Nutzungsbedingungen, denen Du jederzeit widersprechen kannst. Weitere Informationen zum Datenschutz
Wie zufrieden bist du mit dieser Seite (nicht mit der Immobilie selbst)?