Version: 8.25.1Navigation überspringen
329.520 €
5 Zimmer  •  126,9 m²  •  726 m² Grundstück
Immowelt logo

Bungalow zum Kauf
329520 €
2.597 €/m²
5 Zimmer  •  126,9 m²  •  726 m² Grundstück

Komfort auf einer Ebene - Winkelbungalow mit ScanHaus

Ihr Traumhaus - Mit ScanHaus sorgenfrei in die Zukunft

Der Bau eines Eigenheims ist eine der wichtigsten Entscheidungen im Leben. Doch wir wissen: So groß die Vorfreude ist, so viele Fragen und Unsicherheiten begleiten diesen Schritt. Wird alles nach Plan verlaufen? Bleiben die Kosten im Rahmen? Und vor allem - kann ich meinem Baupartner vertrauen?

Ein Hausbau kann überwältigend wirken, doch wir von ScanHaus verstehen Ihre Sorgen. Wir haben bereits Tausenden Familien und Paaren geholfen, ihren Traum vom Eigenheim zu verwirklichen - sicher, stressfrei und genau so, wie sie es sich gewünscht haben.

Warum Sie mit ScanHaus richtig bauen
- Klare Kosten, keine Überraschungen: Mit einer transparenten Gesamtkostenplanung sorgen wir dafür, dass Sie von Anfang an sicher planen können.
- Planungssicherheit: Dank unseres Bauzeitenplans können Sie sich darauf verlassen, dass Ihr Haus in nur 10 bis 12 Wochen bezugsfertig ist - pünktlich und ohne Verzögerungen.
- Finanziell clever: Wir unterstützen Sie dabei, Fördermittel optimal zu nutzen, damit Sie mehr in die eigentumsbildende Tilgung investieren können, anstatt in Zinsen.
- Maximale Sicherheit: Unser Prinzip "Erst BAUEN - dann ZAHLEN" minimiert Ihr finanzielles Risiko.
- Sorgenfreier Ablauf: Wir kümmern uns um alle Details und halten damit den Aufwand für Sie so gering wie möglich.
Ein Zuhause, das zu Ihrem Leben passt
- Für junge Familien: Wir schaffen Raum für Kinder, Platz zum Spielen und Möglichkeiten für gemeinsame Erlebnisse - ein Zuhause, das mit Ihrer Familie wächst und Stabilität für die Zukunft bietet.
- Für Paare mittleren Alters: Unsere Bungalows bieten Komfort und Barrierefreiheit, ideal als Altersruhesitz oder zukunftssichere Investition.

Mit ScanHaus bauen Sie nicht nur ein Haus, sondern ein Zuhause, das perfekt auf Ihre Lebenssituation abgestimmt ist - sicher, effizient und nachhaltig.

Lassen Sie uns gemeinsam diesen Weg gehen. Bei uns sind Sie in guten Händen - von der ersten Planung bis zum Einzug.

Merkmale

  • 726 m² Grundstück
  • Gäste-WC
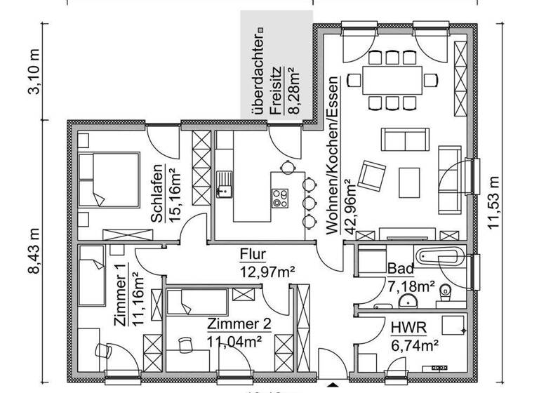
Die Variante B unterscheidet sich im Vergleich zur Variante A des SH 115 WB XXL durch eine überdachte Freifläche. Die Anordnung der 5 Zimmer ist bei beiden Varianten grundverschieden - ein genaues Studieren lohnt sich. Beiden gemein ist der überdachte Hauseingang als auch das beliebte Gäste-WC - alles auf 127 m² Wohnfläche.

Es handelt sich hierbei um ein projektiertes, noch nicht fertiggestelltes Haus

EH 40 (Hausserie):
inkl. Bodenplatte
inkl. Luft/Wasserwärmepumpe
inkl. Fußbodenheizung
inkl. elektr. Handtuchheizkörper
inkl. Rollläden
inkl. Architektenleistungen, Bauantrag
inkl. Schallschutzmaßnahmen in Form von dezentraler Lüftungsanlage, Schallschutzfenster und Schallschutzrollladeneinlagen

Preisinformation
Der Gesamtpreis setzt sich wie folgt zusammen:
. Grundstück mit 726 m²
. SH 115 WB XXL Variante B

KfW förderfähig, nähere Informationen erhalten Sie von Ihrem Berater.

Grundrisse

Grundrisse
1 / 1

Realisiere Dein Projekt

Bausubstanz und Energie

Möchtest du Details zum Energieverbrauch?info_energy_calculation-icon
  • Zustand der ImmobilieProjektiert
  • HeizungsartFußbodenheizung
  • EnergieträgerLuft-/Wasser-Wärmepumpe
Immowelt logo

Preisdetails

Kaufpreis
329520 €
2.596,69 €/m²
Provision für Käufer
Bitte beachte, das Angebot kann bei Vertragsabschluss die Zahlung einer Provision beinhalten. Weitere Informationen erhältst Du vom Anbieter.
Geschätzte Gesamtkosten
364.351 €1
Kaufpreis
329.520 €
Notarkosten (1,5%)
4.943 €
Grunderwerbsteuer (5%)
16.476 €
Provision für Käufer (3,57%)
11.764 €
Grundbucheintrag (0,5%)
1.648 €
1Der angezeigte Wert ist eine automatisch berechnete Schätzung von immowelt.
2Bei den Angaben handelt es sich um ortsübliche Werte. Individuelle Kosten können abweichen.

Lage

address-icon
NempitzBad Dürrenberg (06231)
Der Anbieter hat die genaue Adresse nicht freigegeben
Das Einfamilienhaus befindet sich in einer ruhigen, ländlich geprägten Wohnlage im Bereich der Gemarkung Nempitz, einem Ortsteil von Bad Dürrenberg. Die Umgebung ist von gewachsenen Strukturen, viel Grün und einer angenehmen Distanz zum städtischen Trubel geprägt - ideal für alle, die naturnah wohnen und zugleich gut angebunden sein möchten.

Das Zentrum von Bad Dürrenberg ist in wenigen Minuten erreichbar (ca. 6,4 km) und bietet eine solide Nahversorgung sowie weitere infrastrukturelle Angebote. Familien profitieren von kurzen Wegen zu Bildungs- und Betreuungseinrichtungen: Ein Kindergarten liegt in etwa 3,2 km Entfernung, die Grundschule in ca. 2,6 km. Weiterführende Schulen wie Real- und Gymnasium sind ebenfalls gut erreichbar (jeweils ca. 6,7 km).

Ein besonderer Pluspunkt ist die verkehrsgünstige Lage: Die nächste Autobahnanbindung befindet sich in nur rund 0,6 km Entfernung. Damit eignet sich der Standort auch hervorragend für Berufspendler, die eine schnelle Verbindung in die umliegenden Städte und Wirtschaftsregionen schätzen.

Weitere Informationen

Sonstiges Hinweis:
Bitte haben Sie Verständnis dafür, dass wir Ihre Anfragen nur bearbeiten können, wenn Sie uns vollständige Daten übermitteln wie Name, Anschrift, E-Mail und telefonische Erreichbarkeit.


Sonstiges:
ScanHaus Marlow ist nicht der Eigentümer des im Angebotspreis enthaltenen Grundstücks. Dieses wird von einem externen Anbieter veräußert.
Bauen Sie dieses, oder ein anderes Scanhaus auf diesem Grundstück. Sie können aus über 80 verschiedenen Typen Ihr Traumhaus auswählen.
Ich bitte Sie jedoch um Verständnis, dass wir ohne persönliches Gespräch keine Grundstücksangaben herausgeben können. Gerne bauen wir Ihnen Ihr Scanhaus auch auf Ihrem Grundstück.

Die in dieser Anzeige dargestellten Abbildungen enthalten zum Teil aufpreispflichtige Sonderausstattungen. Stichworte Anzahl der Schlafzimmer: 4, Anzahl der Badezimmer: 1, Anzahl der separaten WCs: 1, 1 Etagen, Distanz zum Kindergarten: 3.20, Distanz zur Grundschule: 2.60, Distanz zur Realschule: 6.70, Distanz zur nächsten Einkaufsmöglichkeit: 4.60, Distanz zum Gymnasium: 6.70, Distanz zum Flughafen: 14.39, Distanz zum Hauptbahnhof: 1.92, Distanz zur Autobahn: 0.60, Distanz zum Bus: 2.33, Distanz zur nächsten Gaststätte: 0.46, Distanz vom Zentrum: 6.40

Weitere Services

Lust auf eine Besichtigung?
Eine Frage zur Immobilie?
Nachricht hinzufügen
Mit der Nutzung der oben angegebenen Telefonnummer oder durch Klicken auf „Kontaktieren“ akzeptierst Du die Allgemeinen Nutzungsbedingungen, denen Du jederzeit widersprechen kannst. Weitere Informationen zum Datenschutz

Über den Anbieter

Gohliser Straße 11, 04105 Leipzig
partner badge
6 Jahre Partnerschaft
Herr Tobias BehrendtDein Kontakt
Online-ID: 26AHYQ1MKB5D
Referenznummer: 816_2_SH115WBXXL_VB
Immobilienberatung Behrendt
Immobilienberatung Behrendt
Bewertung: 4,8 von 5 Sternen
Nachricht hinzufügen
Mit der Nutzung der oben angegebenen Telefonnummer oder durch Klicken auf „Kontaktieren“ akzeptierst Du die Allgemeinen Nutzungsbedingungen, denen Du jederzeit widersprechen kannst. Weitere Informationen zum Datenschutz
Wie zufrieden bist du mit dieser Seite (nicht mit der Immobilie selbst)?