Version: 8.25.1Navigation überspringen
1.000 €
3,5 Zimmer  •  140 m²  •  frei ab 01.05.2026
Immowelt logo

Wohnung zur Miete
1.000 €
3,5 Zimmer  •  140 m²  •  frei ab 01.05.2026

Tolle Wohnung in Aussichtslage zur Miete gesucht?

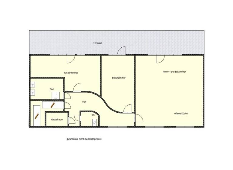
Diese großzügige Etagenwohnung in Gruibingen überzeugt mit einer durchdachten Raumaufteilung, und einer Wohnfläche von ca. 140 m². Mit insgesamt 3,5 Zimmern bietet sie viel Platz für Paare, anspruchsvolle Singles oder eine kleine Familie, die Wert auf Komfort und ein angenehmes Wohnambiente legen.

Die Wohnung verfügt über zwei gut geschnittene Schlafzimmer sowie ein großes Badezimmer. Die Böden sind mit pflegeleichten Vinyl- und Fliesen ausgestattet und unterstreicht den zeitlosen, gepflegten der Räume. Eine vorhandene voll ausgestattete Einbauküche ermöglicht einen unkomplizierten Einzug und bietet eine praktische Basis für den Alltag.

Eine riesige Terrasse erweitert den Wohnbereich nach draußen und schafft zusätzlichen Raum zum Entspannen. Wertvolle Abstell- und Lagermöglichkeiten stehen zusätzlich zur Verfügung.

Der Energieausweis befindet sich in Vorbereitung.

Die Wohnung ist ab dem 01.05.2026 verfügbar. Ideal für alle, die in Gruibingen eine großzügige Mietwohnung mit guter Ausstattung und solidem Wohnkomfort suchen.

Merkmale

  • frei ab 01.05.2026
  • Einbauküche
  • Badezimmer: Bad mit Dusche, Bad mit Fenster
  • Keller
  • Bodenbelag: Fliesen
  • Balkon
  • Terrasse
- Holzisolierglasfenster mit Rollläden (teilweise elektrisch)
- Öl Zentralheizung
- voll ausgestattete Einbauküche
- große offene Wohn-Essküche
- große Terrasse mit garantiertem Ausblick
- Badezimmer mit bodentiefer, großer Dusche und Waschmaschinenanschluss
- sep. WC
- ausreichend Nebenflächen

Grundrisse

Grundrisse
1 / 1

Realisiere Dein Projekt

Bausubstanz und Energie

Möchtest du Details zum Energieverbrauch?info_energy_calculation-icon
  • HeizungsartZentralheizung
  • EnergieträgerÖl
Immowelt logo

Mietkosten

Warmmiete
1.200 €
Kaltmiete
7,14 €/m²
1.000 €
Nebenkosten
200 €
Kaution
2000 €

Lage

address-icon
Gruibingen (73344)
Der Anbieter hat die genaue Adresse nicht freigegeben
Gruibingen, auf 565 m ü. NN im Winkelbachtal gelegen, finden Sie hier eine interessante und abwechslungsreiche Landschaft. Bis auf die bebauten Bereiche steht die gesamte Gemarkung unter Landschaftsschutz. Die herrlichen Orchideenstandorte sind weit über die Grenzen Baden-Württembergs bekannt. Banken, Bäcker, Metzger und eine Grundschule befinden sich am Ort und Sie finden alles, was Sie zum täglichen Leben brauchen. Zudem liegt die Gemeinde Gruibingen sehr verkehrsgünstig an der Autobahn A8 in Richtung Stuttgart und München.

Weitere Informationen

Sonstiges Da wir Objektangaben nicht selbst ermitteln, übernehmen wir hierfür keine Gewähr. Dieses Exposé ist nur für Sie persönlich bestimmt. Eine Weitergabe an Dritte ist an unsere ausdrückliche Zustimmung gebunden. Alle Gespräche sind über unser Büro zu führen. Bei Zuwiderhandlung behalten wir uns Schadenersatz ausdrücklich vor. Stichworte Anzahl der Schlafzimmer: 2, Anzahl der Badezimmer: 1, Anzahl der separaten WCs: 1, Anzahl Balkone: 1, Anzahl Terrassen: 1

Weitere Services

Lust auf eine Besichtigung?
Eine Frage zur Immobilie?
Mit einer persönlichen Nachricht hast du bessere Chancen auf eine Antwort.
Mit der Nutzung der oben angegebenen Telefonnummer oder durch Klicken auf „Kontaktieren“ akzeptierst Du die Allgemeinen Nutzungsbedingungen, denen Du jederzeit widersprechen kannst. Weitere Informationen zum Datenschutz

Über den Anbieter

Stuttgarter Straße 75, 73312 Geislingen an der Steige
partner badge
6 Jahre Partnerschaft
Firma Immobilien Buck GmbHDein Kontakt

Weitere Unterlagen

Online-ID: 268QXLYWPPBC
Referenznummer: 992M
Immobilien Buck GmbH
Immobilien Buck GmbH
Bewertung: 4,3 von 5 Sternen
Mit einer persönlichen Nachricht hast du bessere Chancen auf eine Antwort.
Mit der Nutzung der oben angegebenen Telefonnummer oder durch Klicken auf „Kontaktieren“ akzeptierst Du die Allgemeinen Nutzungsbedingungen, denen Du jederzeit widersprechen kannst. Weitere Informationen zum Datenschutz
Wie zufrieden bist du mit dieser Seite (nicht mit der Immobilie selbst)?