Version: 8.25.1Navigation überspringen
Living Fertighaus GmbH - Simon Schreiber
639.566 €
6 Zimmer  •  110,5 m²  •  700 m² Grundstück

Einfamilienhaus zum Kauf
639566 €
5.791 €/m²
6 Zimmer  •  110,5 m²  •  700 m² Grundstück

LivingHaus: Dein individuelles Traumhaus in ruhiger Walnähe

Dieses traumhafte Fertighaus von LivingHaus stellt ein wahres Meisterwerk der Architektur dar, das individuell auf die Wünsche und Vorstellungen seiner Bewohner abgestimmt ist. Mit einer großzügigen Wohnfläche von 110,45 m² und insgesamt 6 Zimmern, darunter 3 Schlafzimmer und ein Badezimmer, bietet es genügend Platz für dich und deine Familie. Große Fenster lassen viel Tageslicht in den Wohn- und Essbereich strömen und schaffen eine einladende Atmosphäre. Bei LivingHaus profitierst du von zahlreichen Zusatzleistungen, die dein Bauprojekt noch einfacher und stressfreier gestalten. Die Traumküche wird passgenau auf deinen Grundriss abgestimmt und ist mit modernster Technik sowie cleveren Stauraumlösungen ausgestattet. Sie wird rechtzeitig zum Einzug geliefert, sodass du umgehend mit dem Kochen starten kannst. Mit dem LivingHaus Bau-Cockpit behältst du stets den Überblick über dein Bauprojekt. Die digitale App ermöglicht dir den Zugriff auf alle relevanten Informationen, von Zeitplänen bis hin zur Dokumentenverwaltung, und sorgt für einen reibungslosen Bauablauf. Das I-KON - Intelligentes Bauen Konzept bietet dir die Möglichkeit, ein energieeffizientes und umweltfreundliches Zuhause zu schaffen. Dein Haus wird als Effizienzhaus 55 klassifiziert, was bedeutet, dass es nur 55 % der Energie eines Standardhauses benötigt. Mit dem Zuhause-Darlehen kannst du bis zu 250.000 EUR zu besonders attraktiven Konditionen finanzieren. Das Zuhause-Paket umfasst eine hochwertige Grundausstattung, die moderne Böden, edle Türen und stilvolle Sanitäranlagen beinhaltet. Und wenn du selbst Hand anlegen möchtest, unterstützt dich das DIY-Ausbau-Coaching, das dir in nur drei Tagen wertvolle Tipps und Tricks für den Innenausbau deines Hauses vermittelt. So entsteht nicht nur ein schickes, modernes Zuhause, sondern auch ein Ort, an dem du deine individuellen Vorstellungen und Ideen verwirklichen kannst.

Merkmale

  • 700 m² Grundstück
  • Einbauküche
  • Badewanne
  • Gäste-WC
Die Ausstattung deines zukünftigen LivingHaus ist hochwertig und durchdacht. Beginne mit der maßgeschneiderten Traumküche, die sowohl funktional als auch ästhetisch überzeugt. Das Zuhause-Paket beinhaltet moderne Böden, stilvolle Türen und edle Sanitäranlagen, sodass du alles in einem Rutsch erhältst. Die intelligente I-KON-Technologie sorgt dafür, dass dein Haus energieeffizient ist und die Umwelt schont. Dein Fertighaus kommt zudem mit einer soliden Grundausstattung, die alle wichtigen Materialien für den Innenausbau umfasst. Bei LivingHaus profitierst du von einem hohen Vorfertigungsgrad, der den Bauprozess effizient gestaltet. Mit der 18-monatigen Festpreisgarantie und hervorragenden Bauversicherungen bist du von Anfang an abgesichert. So kannst du sicher sein: Dein "Wie ich es will Fertighaus" wird exakt nach deinen Vorstellungen realisiert.

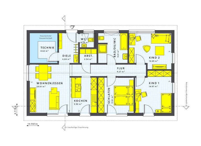
Grundrisse

Grundrisse
1 / 1

Realisiere Dein Projekt

Bausubstanz und Energie

Energieausweis

A+
  • Baujahr2027
  • Zustand der ImmobilieProjektiert
  • HaustypKfW 55

Preisdetails

Kaufpreis
639566 €
5.790,55 €/m²
Provision für Käufer
Bitte beachte, das Angebot kann bei Vertragsabschluss die Zahlung einer Provision beinhalten. Weitere Informationen erhältst Du vom Anbieter.
Geschätzte Gesamtkosten
716.762 €1
Kaufpreis
639.566 €
Notarkosten (1,5%)
9.593 €
Grunderwerbsteuer (6,5%)
41.572 €
Provision für Käufer (3,57%)
22.833 €
Grundbucheintrag (0,5%)
3.198 €
1Der angezeigte Wert ist eine automatisch berechnete Schätzung von immowelt.
2Bei den Angaben handelt es sich um ortsübliche Werte. Individuelle Kosten können abweichen.

Lage

address-icon
Mölln (23879)
Der Anbieter hat die genaue Adresse nicht freigegeben
Mölln ist ein idyllischer Ort, der durch seine hervorragende Anbindung und die ruhige, naturnahe Lage besticht.

In unmittelbarer Nähe findest du alles, was du für das tägliche Leben benötigst. Schulen und Kindergärten sind gut erreichbar und bilden eine solide Basis für die Bildung deiner Kinder.

Die Grundschule in Mölln erhält gute Bewertungen und bietet eine aufmerksame Betreuung.
Für die jüngeren Familienmitglieder gibt es mehrere Kindergärten in der Umgebung, die ein breites Angebot an Betreuung und Förderung bieten.

Einkaufsmöglichkeiten sind ebenfalls in der Nähe: Supermärkte wie Edeka und Rewe sind nur wenige Minuten entfernt und bieten ein umfangreiches Sortiment.

Zudem gibt es in Mölln einige kleine Geschäfte und Bäckereien, die das Herz der Gemeinde ausmachen.

Ärzte und Apotheken sind ebenfalls vor Ort, sodass du jederzeit schnell medizinische Hilfe in Anspruch nehmen kannst.

Die Umgebung von Mölln bietet zudem zahlreiche Freizeitmöglichkeiten für Naturliebhaber. Ob Wanderungen im Grünen oder Aktivitäten im nahegelegenen Wald, hier findest du eine tolle Vielfalt an Erholungsmöglichkeiten.

Für Pendler ist die Anbindung über die B207 an die Autobahn A1 und A20 gen Osten optimal, sodass du schnell in die größeren Städte der Umgebung gelangst. Der öffentliche Nahverkehr ist gut ausgebaut, Busverbindungen bringen dich bequem zu den nächstgelegenen Bahnhof in Mölln und weiterführend..

Mölln vereint somit die Vorzüge des ländlichen Lebens mit einer hervorragenden Erreichbarkeit von städtischen Annehmlichkeiten und ist der perfekte Ort für Familien, die ein harmonisches Zusammenspiel aus Ruhe und Aktivität suchen.

Weitere Informationen

Sonstiges Das hier angebotene Grundstück ist im oben genannten Preis enthalten und wird ohne zusätzliche Provision an einen Living Haus-Bauherren bereitgestellt. Zusätzliche Baunebenkosten müssen noch hinzugefügt werden, hierbei beraten wir Sie gerne. Wir bieten auch interessante Finanzierungsmöglichkeiten inklusive Beantragung aller Fördermittel! Die Hausabbildungen sowie die Bilder der Inneneinrichtung zeigen möglicherweise Extras, die nicht im angegebenen Kaufpreis enthalten sind. Gute Beratung ist der Anfang von allem. Daher analysieren wir gemeinsam mit Ihnen Ihre Vorstellungen, Wünsche und Bedürfnisse, um so das passende Living Haus für Sie und Ihre Familie zu finden. Interessiert? Kontaktieren Sie mich und vereinbaren Sie noch heute einen kostenlosen und unverbindlichen Beratungstermin unter 0178-168 3993. Stichworte Nutzfläche: 110,45 m², Anzahl der Schlafzimmer: 3, Anzahl der Badezimmer: 1, 1 Etagen

Weitere Services

Lust auf eine Besichtigung?
Eine Frage zur Immobilie?
Nachricht hinzufügen
Mit der Nutzung der oben angegebenen Telefonnummer oder durch Klicken auf „Kontaktieren“ akzeptierst Du die Allgemeinen Nutzungsbedingungen, denen Du jederzeit widersprechen kannst. Weitere Informationen zum Datenschutz

Über den Anbieter

Mecklenburger Landstr. 80, 23570 Lübeck
Herr Simon Schreiber
Herr Simon SchreiberDein Kontakt
Online-ID: 26LUPKLUWY45
Referenznummer: 30726-1135
Living Fertighaus GmbH - Simon Schreiber
title
Living Fertighaus GmbH - Simon Schreiber
Nachricht hinzufügen
Mit der Nutzung der oben angegebenen Telefonnummer oder durch Klicken auf „Kontaktieren“ akzeptierst Du die Allgemeinen Nutzungsbedingungen, denen Du jederzeit widersprechen kannst. Weitere Informationen zum Datenschutz
Wie zufrieden bist du mit dieser Seite (nicht mit der Immobilie selbst)?