Version: 8.24.0Navigation überspringen
Deutsche Industriebau GmbH
Mietkosten auf Anfrage
1.000 m² Bürofläche

Bürofläche zur Miete • provisionsfrei
Mietkosten auf Anfrage
1.000 m² Bürofläche

1.000m² Gewerbeimmobilie für betreutes Wohnen – repräsentative Lage in Warstein!

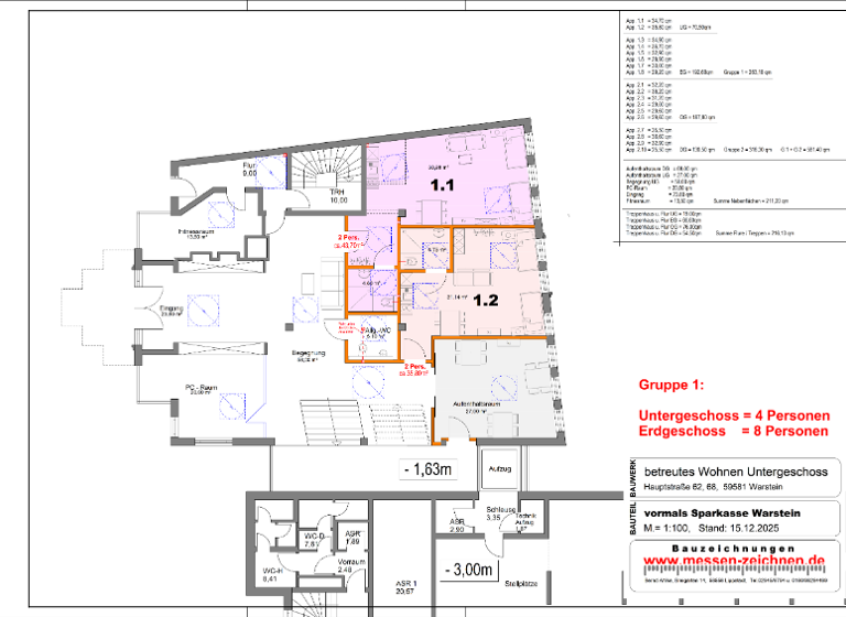
Ehemaliges Bürogebäude in repräsentativer Lage von Warstein Exklusiv für betreutes Wohnen (Fertigstellung spätestens 2027) In zentraler und repräsentativer Lage von Warstein steht ein ehemaliges Bürogebäude zur Neupositionierung bereit. Das Objekt bietet hervorragende Voraussetzungen für die Nutzung als Einrichtung für betreutes Wohnen und wird dem zukünftigen Mieter spätestens ab dem Jahr 2027 exklusiv für dieses Nutzungskonzept zur Verfügung gestellt. Das Gebäude erstreckt sich über vier vollwertige Geschosse und überzeugt durch seine klare Struktur, gute Erschließbarkeit sowie flexible Grundrissgestaltung. Für alle Etagen liegt bereits ein durchdachtes architektonisches Gesamtkonzept vor, das gezielt auf die Anforderungen des betreuten Wohnens ausgerichtet ist. Die vorhandenen Architektenpläne ermöglichen eine zügige und planungssichere Umsetzung. Der Vermieter zeigt sich ausgesprochen investitionsbereit und ist offen dafür, das Nutzungskonzept gemeinsam mit dem zukünftigen Betreiber umzusetzen. Sämtliche erforderlichen Umbaumaßnahmen – inklusive funktionaler, baulicher und gestalterischer Anpassungen – können nach Abstimmung realisiert werden. Dadurch erhält der Mieter die Möglichkeit, ein maßgeschneidertes Objekt zu übernehmen, das optimal auf betriebliche Abläufe, Bewohnerbedürfnisse und gesetzliche Anforderungen abgestimmt ist. Die Lage des Gebäudes verbindet städtische Präsenz mit guter Erreichbarkeit, was sowohl für Bewohner als auch für Mitarbeitende und Besucher einen deutlichen Mehrwert darstellt. Die Umgebung bietet eine solide Infrastruktur und schafft ideale Voraussetzungen für ein hochwertiges, zukunftsorientiertes Betreuungskonzept. Dieses Objekt richtet sich insbesondere an Träger, Betreiber oder Investoren, die einen langfristigen Standort für betreutes Wohnen suchen und Wert auf Gestaltungsfreiheit, Planungssicherheit und eine partnerschaftliche Zusammenarbeit mit dem Vermieter legen.

Grundrisse

Grundrisse
1 / 5

Realisiere Dein Projekt

Bausubstanz und Energie

Energieausweis

Ein Energieausweis ist für diesen Gebäudetyp nicht notwendig.
  • HeizungsartZentralheizung
MediumRectangleTop

Mietkosten

Miete auf Anfrage
Provision für Mieter
provisionsfrei
Kaution
keine Angabe

Lage

address-icon
Hauptstraße 68Warstein (59581)
Direkt in Verkehrsgünstiger und zentraler Lage bilden die Büroflächen ein Zentrales Geschäftszentrum in Warstein. Das direkte Umfeld besteht aus Wohn- und Geschäftshäusern mit weiteren Synergiepotenzialen. Warstein ist eine Mittelstadt mit 26.000 Einwohnern in Südwestfalen. Wirtschaftlich- ein Standort mit bedeutenden Unternehmen aus den Branchen Elektroindustrie, Stahl- und Kunststoffverarbeitung, Maschinenbau, Rohgummiverarbeitung, Kalksteinabbau und Nahrungs-/ Genussmittel. Für die Innenstadt liegen sowohl ein Einzelhandelskonzept wie auch ein integriertes Handlungskonzept vor. Umgebung: Direkte Anbindung an die B55 und B516 , die A46 erreichen Sie in 11km und die A44 in 17km. Der Hauptbahnhof Meschede liegt ca. 14km entfernt und der Airport Paderborn-Lippstadt ist nur 30km entfernt.

Weitere Informationen

Sonstiges Info: Anzahl Etagen: 4 Modernisierungsarbeiten können gerne individuell abgestimmt werden. Parkplätze und Tiefgaragenstellplätze stehen ausreichend zur Verfügung. Alle Etagen sind über einen Personenaufzug begehbar.

Weitere Services

Lust auf eine Besichtigung?
Eine Frage zur Immobilie?
Nachricht hinzufügen
Mit der Nutzung der oben angegebenen Telefonnummer oder durch Klicken auf „Kontaktieren“ akzeptierst Du die Allgemeinen Nutzungsbedingungen, denen Du jederzeit widersprechen kannst. Weitere Informationen zum Datenschutz

Über den Anbieter

Am Siek 24-26, 59557 Lippstadt
partner badge
Partnerschaft
Team ImmobilienabteilungDein Kontakt
Online-ID: 2nk6w5m
Deutsche Industriebau GmbH
Deutsche Industriebau GmbH
Bewertung: 4 von 5 Sternen
Nachricht hinzufügen
Mit der Nutzung der oben angegebenen Telefonnummer oder durch Klicken auf „Kontaktieren“ akzeptierst Du die Allgemeinen Nutzungsbedingungen, denen Du jederzeit widersprechen kannst. Weitere Informationen zum Datenschutz
MediumRectangleTop
MediumRectangleBottom
MediumRectangleTop
Wie zufrieden bist du mit dieser Seite (nicht mit der Immobilie selbst)?