Version: 8.24.0Navigation überspringen
ohne-makler.net - Immobilien selbst vermarkten
1.074 €
93 m² Lagerfläche

Lagerhalle zur Miete • provisionsfrei
1.074 €
93 m² Lagerfläche

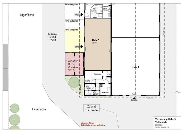
Vielseitig nutzbare Gewerbehalle (ca. 93 m²) mit Rolltor - flexibel nutzbar

Zur Vermietung steht eine Gewerbehalle mit ca. 93 m², die sich durch ihre vielseitigen Nutzungsmöglichkeiten ideal für Lager, Handwerk, Werkstatt oder kleinere Produktionsbetriebe eignet.

Die Halle verfügt über ein Rolltor und eine separate Toilettennutzung. Umbauten oder Anpassungen der Fläche sind nach Absprache möglich, sodass die Halle individuell an die Bedürfnisse des Mieters angepasst werden kann.

Zusätzlich können weitere Frei- und Stellflächen bei Bedarf zugemietet werden.

Merkmale

  • Bezug: nach Absprache
Bemerkungen:
Die Ausstattung und mögliche Um- oder Einbauten nach Absprache.

Grundrisse

Grundrisse
1 / 3

Realisiere Dein Projekt

Bausubstanz und Energie

Energieausweis

Endenergiebedarf (Wärme)

Endenergiebedarf (Strom)

  • Baujahr1990
  • HeizungsartZentralheizung
  • EnergieträgerGas
MediumRectangleTop

Mietkosten

Nettomiete
1.074 €
Nebenkosten
240 €
Heizkosten
in Warmmiete enthalten
Provision für Mieter
provisionsfrei; keine Provision, courtagefrei
Kaution
3500 €
Weitere Preisinformationen
Nettokaltmiete: 1.074,00 EUR

Lage

address-icon
AstheimTrebur (65468)
Der Anbieter hat die genaue Adresse nicht freigegeben
Die Gewerbehalle befindet sich in Trebur-Astheim, in einem etablierten Gewerbegebiet mit überwiegend gewerblicher Nutzung. Der Standort zeichnet sich durch eine verkehrsgünstige und zugleich ruhige Lage aus.

Trebur-Astheim liegt strategisch günstig im Rhein-Main-Gebiet und bietet eine gute Anbindung an die umliegenden Städte wie Rüsselsheim, Mainz, Wiesbaden und Frankfurt am Main. Die Autobahnen A60, A67 und A671 sind in kurzer Fahrzeit erreichbar und ermöglichen eine schnelle regionale sowie überregionale Erreichbarkeit.

Das Umfeld eignet sich ideal für Handwerks-, Lager-, Werkstatt- oder Dienstleistungsbetriebe. Die Zufahrt ist problemlos möglich, auch für Lieferverkehr. Öffentliche Verkehrsmittel befinden sich in der näheren Umgebung.

Weitere Informationen

Sonstiges Heizungsart: Zentralheizung
Energieträger: Gas

Zusätzlich kann ein Bürocontainer mit Wasser- und Stromanschluss, der direkt an der Halle steht, dazu angemietet werden. Weitere Freiflächen und/oder Stellplätze sind ebenfalls ergänzend anmietbar.

Makleranfragen nicht erwünscht. Nach § 7 UWG sind unaufgeforderte Kontaktaufnahmen durch Makler ohne ausdrückliche Einwilligung des Empfängers verboten!

ohne-makler (OM) ist weder Anbieter noch Vermittler der Immobilie. OM betreibt eine Plattform für Immobilieneigentümer, die unter anderem die gleichzeitige Veröffentlichung einzelner Inserate auf mehreren Immobilienportalen ermöglicht. Die Inhalte dieser Inserate werden ausschließlich von Dritten verantwortet. Für die Richtigkeit, Vollständigkeit oder Rechtmäßigkeit der Angaben übernimmt OM keine Haftung. Hinweise auf mögliche Rechtsverstöße können jederzeit gemeldet werden und werden nach Prüfung umgehend bearbeitet. Stichworte Lagerfläche: 93,00 m², Gesamtfläche: 109,00 m², Freifläche: 16,00 m², Bundesland: Hessen, Zustand nach Vereinbarung

Weitere Services

Lust auf eine Besichtigung?
Eine Frage zur Immobilie?
Nachricht hinzufügen
Mit der Nutzung der oben angegebenen Telefonnummer oder durch Klicken auf „Kontaktieren“ akzeptierst Du die Allgemeinen Nutzungsbedingungen, denen Du jederzeit widersprechen kannst. Weitere Informationen zum Datenschutz

Über den Anbieter

Humboldtstr. 25 A, 21509 Glinde
partner badge
Partnerschaft
Privat von Kay DörhöferDein Kontakt
Keine Telefonnummer hinterlegt
Keine Telefonnummer hinterlegt
Online-ID: 2mqaw5r
Referenznummer: 415050
ohne-makler.net - Immobilien selbst vermarkten
ohne-makler.net - Immobilien selbst vermarkten
Nachricht hinzufügen
Mit der Nutzung der oben angegebenen Telefonnummer oder durch Klicken auf „Kontaktieren“ akzeptierst Du die Allgemeinen Nutzungsbedingungen, denen Du jederzeit widersprechen kannst. Weitere Informationen zum Datenschutz
MediumRectangleTop
MediumRectangleBottom
MediumRectangleTop
Wie zufrieden bist du mit dieser Seite (nicht mit der Immobilie selbst)?