Version: 8.25.1Navigation überspringen
ohne-makler.net - Immobilien selbst vermarkten
499.000 €
58 m²

Sonstiges zum Kauf - Erstbezug • provisionsfrei
499000 €
58 m²

Exklusive Wohnyacht mit Liegeplatz auf Usedom - Premium Hausboot, Ferienimmobilie - Rendite 7%

Sun Island 58 - die exklusive Wohnyacht (Premium-Hausboot) mit Liegeplatz auf Usedom:

- nachhaltig, komfortabel, autark, charterfertig -

Erfüllen Sie sich den Traum vom Leben auf dem Wasser: Wir bieten Ihnen eine hochwertige Stahl-Wohnyacht (Made in Germany) der Kategorie C (küstennah) - voll charterfertig ausgestattet und ideal für private Nutzung oder professionelle Vercharterung.

Nutzen Sie den IAB und erzielen Sie eine sehr hohe Rendite. #Steueroptimierung #hoheRendite #Kapitalanlage #Eigennutzen

Der Stahlrumpf von 5x15m kann auch mit weiteren Aufbau-Modellen ausgeführt werden (Nautic 55 und Calimero 43).

Merkmale

  • Bezug: nach Absprache
  • Einbauküche
  • Bad mit Dusche
  • offener Kamin
  • Balkon
  • Terrasse
  • Sauna
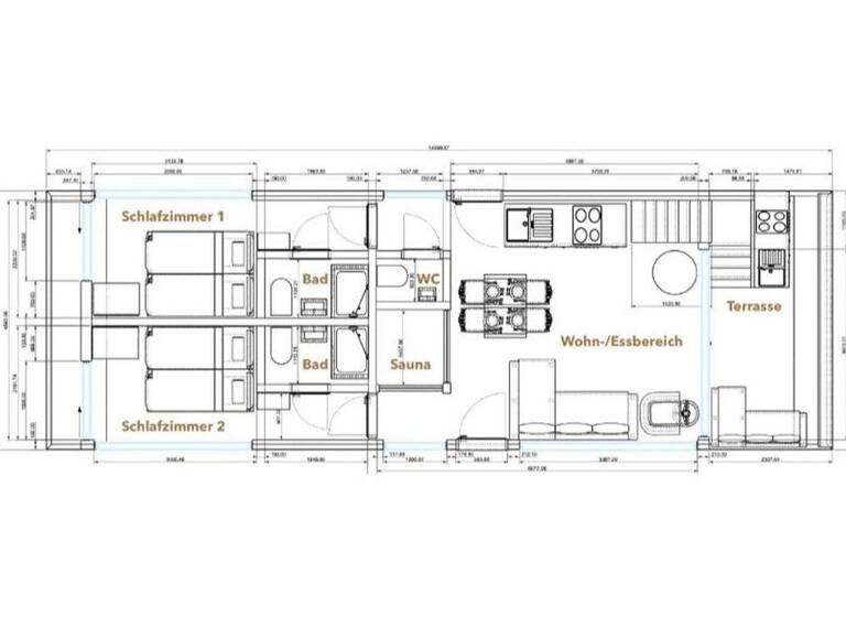
Terrasse, Dachterrasse, Duschbad, Sauna, Einbauküche, Gäste-WC, Kamin

Bemerkungen:
Highlights auf einen Blick:
- Sauna, Kamin, En-Suite-Bäder
- Nachhaltiger Stahlrumpf und robuste Stahlstruktur des Aufbaus für eine lebenslange wartungsarme Haltbarkeit
- Exklusive, strapazierfähige Innenausstattung für langjährige Nutzung
- BIO-Kläranlage & Trinkwasseraufbereitung - autark und umweltfreundlich
- Heizung & Klimaanlage mit moderner Wärmepumpentechnik
- Leiser kraftvoller Elektroantrieb mit 2x 16,4 KW Leistung (auf 48V Basis)
- Großzügiger Batteriespeicher mit hoher Kapazität: Ideal für komfortables Wohnen, Ganzjahresnutzung und Charterbetrieb

Grundrisse

Grundrisse
1 / 1

Realisiere Dein Projekt

Bausubstanz und Energie

Energieausweis

Ein Energieausweis ist für diesen Gebäudetyp nicht notwendig.
  • Baujahr2026
  • Zustand der ImmobilieErstbezug
  • HeizungsartFußbodenheizung
  • EnergieträgerSolar
MediumRectangleTop

Preisdetails

Kaufpreis
499000 €
Provision für Käufer
provisionsfrei; keine Provision, courtagefrei
Geschätzte Gesamtkosten
499.000 €1
Kaufpreis
499.000 €
1Der angezeigte Wert ist eine automatisch berechnete Schätzung von immowelt.

Lage

address-icon
Zinnowitz (17454)
Der Anbieter hat die genaue Adresse nicht freigegeben
Wir halten Ihnen einen attraktiven Liegeplatz auf der Sonneninsel Usedom (nahe Zinnowitz) bereit. Er ist für eine 12-monatige Ganzjahrescharter geeignet und befindet sich an der längsten Binnen-Seebrücke Deutschlands.
- Langfristig anmietbar (z. B. 10 Jahre)
- Voll ausgestattete Marina mit allen charterrelevanten Dienstleistungen vor Ort

Auf Wunsch übernehmen wir den Rundum-Service für Sie:
Vermarktung & Buchungsmanagement
Reinigung & Gästebetreuung
Technische Instandhaltung & Service

Weitere Informationen

Sonstiges Heizungsart: Fußbodenheizung
Energieträger: Solar

Interesse geweckt? ?Gerne beantworten wir Ihre Fragen und beraten Sie persönlich zu Ausstattung, Nutzungsmöglichkeiten und Charterkonzepten.
Kontaktieren Sie uns - wir freuen uns auf Sie!

Makleranfragen nicht erwünscht. Nach § 7 UWG sind unaufgeforderte Kontaktaufnahmen durch Makler ohne ausdrückliche Einwilligung des Empfängers verboten!

ohne-makler (OM) ist weder Anbieter noch Vermittler der Immobilie. OM betreibt eine Plattform für Immobilieneigentümer, die unter anderem die gleichzeitige Veröffentlichung einzelner Inserate auf mehreren Immobilienportalen ermöglicht. Die Inhalte dieser Inserate werden ausschließlich von Dritten verantwortet. Für die Richtigkeit, Vollständigkeit oder Rechtmäßigkeit der Angaben übernimmt OM keine Haftung. Hinweise auf mögliche Rechtsverstöße können jederzeit gemeldet werden und werden nach Prüfung umgehend bearbeitet. Stichworte Gesamtfläche: 75,00 m², Anzahl der separaten WCs: 1, Anzahl Balkone: 1, Anzahl Terrassen: 1, Bundesland: Mecklenburg-Vorpommern

Weitere Services

Lust auf eine Besichtigung?
Eine Frage zur Immobilie?
Nachricht hinzufügen
Mit der Nutzung der oben angegebenen Telefonnummer oder durch Klicken auf „Kontaktieren“ akzeptierst Du die Allgemeinen Nutzungsbedingungen, denen Du jederzeit widersprechen kannst. Weitere Informationen zum Datenschutz

Über den Anbieter

Humboldtstr. 25 A, 21509 Glinde
partner badge
Partnerschaft
Angebot von Matthias WittigDein Kontakt
Keine Telefonnummer hinterlegt
Keine Telefonnummer hinterlegt
Online-ID: 262VBR2QSECG
Referenznummer: 421685
ohne-makler.net - Immobilien selbst vermarkten
ohne-makler.net - Immobilien selbst vermarkten
Nachricht hinzufügen
Mit der Nutzung der oben angegebenen Telefonnummer oder durch Klicken auf „Kontaktieren“ akzeptierst Du die Allgemeinen Nutzungsbedingungen, denen Du jederzeit widersprechen kannst. Weitere Informationen zum Datenschutz
MediumRectangleTop
MediumRectangleBottom
MediumRectangleTop
Wie zufrieden bist du mit dieser Seite (nicht mit der Immobilie selbst)?