Version: 8.25.1Navigation überspringen
925.000 €
5 Zimmer  •  150 m²  •  785 m² Grundstück
Immowelt logo

Villa zum Kauf
925000 €
6.167 €/m²
5 Zimmer  •  150 m²  •  785 m² Grundstück

Berlin Lübars: Ihr neues Zuhause wartet - unser exklusives Hausbauangebot

Wir machen aus Wohnraum Lebensraum.
Sie haben an sich selbst sowie an die Qualität und Leistung Ihres Baupartners einen hohen Anspruch? Ihr neues Avos Haus ist weit mehr als nur ein umbauter Raum zum Wohnen! Wir verstehen jedes unserer geplanten und gebauten Häuser als den individuellen Lebensraum für Sie und Ihre Familie. Mit höchsten Ansprüchen an den Ausdruck der eigenen Persönlichkeit in Ihrer neuen Lebens- und Wohnwelt.

Merkmale

  • 785 m² Grundstück
Wir bauen Ihr Haus ausschließlich mit Markenmaterialien und statten es nur mit Markenartikeln aus. "Schlüsselfertig bedeutet für Sie, dass Sie den Freiraum haben die Maler.- und Tapezierarbeiten, sowie die Bodenbelagsarbeiten in Eigenleistung zu erbringen. ( gut für eine Finanzierung als Eigenkapital-Ersatz).
Die Fenster sind Markenartikel, die Haustür ist Mehrfach-Verriegelt mit einem umlaufenden Sicherheits-Stahlrahmen in der Zarge. Von der Dusche und der Badewanne über die hochwertigen Armaturen, sowie der umfangreichen Elektroausstattung, ist schon alles enthalten. Eine Fliesenausstattung im Bad und Küche ist ebenfalls enthalten. Weiteres finden Sie in unserer Bauleistungsbeschreibung.

Hier noch eine kleine Zusammenfassung der enthaltenen Leistungen:
+ verbindliche Festpreisgarantie
+ Architektenleistung und Projektstatik
+ Wärmeschutzverbundsystem nach EneV
+ Fussbodenheizung
+ Luftwärmepumpe
+ Außenputz mit zusätzlichem Fassadenanstrich
+ Ansprechpartner vor Ort (AVOS Vor-Ort-Service)



Der Preis bezieht sich auf den beigefügten Grundriss (inklusive Grundstück).
Selbstverständlich können wir den Grundriss ganz nach Ihren Wünschen und Bedürfnissen anpassen.

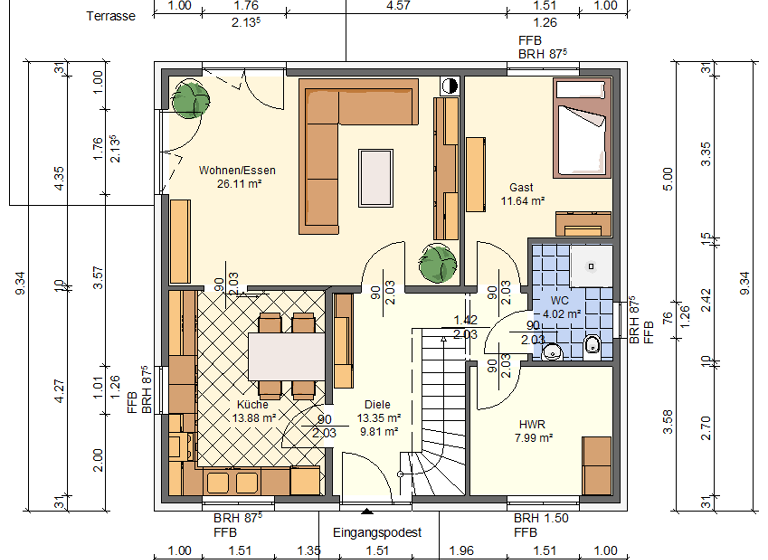
Grundrisse

Grundrisse
1 / 2

Realisiere Dein Projekt

Bausubstanz und Energie

Möchtest du Details zum Energieverbrauch?info_energy_calculation-icon
Immowelt logo

Preisdetails

Kaufpreis
925000 €
6.166,67 €/m²
Provision für Käufer
20706,00 € inkl. MwSt. inkl. MwSt.
Weitere Preisinformationen

Unsere Dienstleistungen:
Einfamilienhausbau
Wohnungsbau
Ausbau / Sanierung / Renovierung
Baubetreuung
Finanzierung
Immobilienbewertung
Immobilienverwaltung
Projektentwicklung
Versicherung
Geschätzte Gesamtkosten
1.019.720 €1
Kaufpreis
925.000 €
Notarkosten (1,5%)
13.875 €
Grunderwerbsteuer (6%)
55.500 €
Provision für Käufer (2,24%)
20.720 €
Grundbucheintrag (0,5%)
4.625 €
1Der angezeigte Wert ist eine automatisch berechnete Schätzung von immowelt.
2Bei den Angaben handelt es sich um ortsübliche Werte. Individuelle Kosten können abweichen.

Lage

address-icon
TegelBerlin (13469)
Der Anbieter hat die genaue Adresse nicht freigegeben
Blankenburg liegt im Berliner Gletschertal auf dem Barnimrücken. Nachbargemeinden sind Buchholz, Heinersdorf, Karow. Ein Teil des Landkreises gehört zum Naturpark Berlin-Brandenburg-Barnim.

Das gut erhaltene Dorfgrün samt Kirche und den umliegenden Einfamilienhäusern zeichnet Blankenburg als Stadtrandsiedlung aus. Zahlreiche Gebäude rund um die Alt-Blankenburg-Straße stehen einzeln oder als Gebäudegruppe unter Denkmalschutz. Von besonderem Interesse für den Landkreis ist das Gebäude des Pflegeheims der Albert-Schweitzer-Stiftung. Mit 84 Hektar ist der ehemalige Gutshof Blankenburg einer der größten zusammenhängenden Gärten Deutschlands und spiegelt den Charakter Blankenburgs wider. 2005 wurde es zu einer Freizeitanlage umgebaut. Mieter und Eigentümer sind Mitglieder des 1991 gegründeten Vereins der Freunde der Blankenberger Mühlengärten und Siedler. Im Nordosten des Bezirks liegt der Blankenburger Friedhof, dem ein Gedenkwald für die Opfer von Krieg und Gewaltherrschaft nach dem Berliner Friedhofsgesetz vorgelagert ist.
Von 1982 bis 2001 gab es in der Alt-Blankenburg 33 ein Hundemuseum. Es wurde von einem Ehepaar im Stadtteil gegründet und über mehrere Jahre systematisch aufgebaut. 1992 wurde die Anlage in das Guinness-Buch der Rekorde aufgenommen.
Am südöstlichen Rand des Bezirks lag die Außenstelle der Hochschule für Technik und Wirtschaft Berlin (HTW), die 2009 auf den Campus Oberschöneweide umzog. Vorgängerinstitution des Standorts war die Technische Universität Berlin-Wartenberg. Das seit Jahren leer stehende Gebäude wurde 2016 abgerissen. Im Osten liegt das Golf Resort Berlin Pankow, einer der drei Berliner Golfplätze.
Die Berliner Wasserbetriebe haben im Mai 2007 einen Rückhaltebodenfilter an der Heinersdorfer Straße in Betrieb genommen. Sie reinigt das Abwasser der 560.000 m² großen Straßen Karower Damm und Blankenburger Plasterweg und leitet das gereinigte Regenwasser nach Panke.

Weitere Informationen

Sonstiges Wir heißen Sie herzlich in unserem Büro Willkommen. Besuchen Sie uns in der
Franzstraße 4a
16540 Hohen Neuendorf

Wir sind 7 Tage in der Woche für Sie erreichbar.
Montag - Freitag 08:00 - 18:00 Uhr
Samstag - Sonntag nach Terminvereinbarung
Es ist auch möglich, außerhalb der Geschäftszeiten jederzeit einen Termin mit uns zu vereinbaren. Rufen Sie uns einfach unter der Nummer
03303-216821 an oder schreiben Sie uns eine Mail an die folgende E-Mailadresse: info@avos-berlin.de

Wir freuen uns auf Ihre Mail, Ihren Anruf oder Ihren Besuch.

Ihr AVOS-Team

Irrtümer vorbehalten. Abbildungen enthalten Sonderausstattungen.

Weitere Services

Lust auf eine Besichtigung?
Eine Frage zur Immobilie?
Nachricht hinzufügen
Mit der Nutzung der oben angegebenen Telefonnummer oder durch Klicken auf „Kontaktieren“ akzeptierst Du die Allgemeinen Nutzungsbedingungen, denen Du jederzeit widersprechen kannst. Weitere Informationen zum Datenschutz

Über den Anbieter

Franzstrasse 4a, 16540 Hohen Neuendorf
partner badge
Partnerschaft
Herr Thomas KliemDein Kontakt
Online-ID: 247CSQ5ESN1G
Referenznummer: ger_SV_150
AVOS Hausbau GmbH
AVOS Hausbau GmbH
Bewertung: 4,8 von 5 Sternen
Nachricht hinzufügen
Mit der Nutzung der oben angegebenen Telefonnummer oder durch Klicken auf „Kontaktieren“ akzeptierst Du die Allgemeinen Nutzungsbedingungen, denen Du jederzeit widersprechen kannst. Weitere Informationen zum Datenschutz
Wie zufrieden bist du mit dieser Seite (nicht mit der Immobilie selbst)?