Version: 8.24.1Navigation überspringen
630.000 €
10 Zimmer  •  215 m²  •  991 m² Grundstück
Immowelt logo

Mehrfamilienhaus zum Kauf
630000 €
2.930 €/m²
10 Zimmer  •  215 m²  •  991 m² Grundstück

EFH mit ELW und Ausbaupotential

Entdecken Sie Ihr neues Zuhause in der idyllischen Ortschaft Buttenheim! Dieses gepflegte Einfamilienhaus bietet Ihnen alles, was das Herz begehrt. Die Immobilie aus dem Jahr 1985 überzeugt durch ihren großzügigen Grundriss und ist ideal für Familien, die Wert auf Raum und Komfort legen.

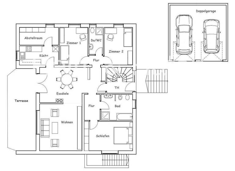
Auf einem weitläufigen Grundstück von ca. 991 m² erstreckt sich dieses wunderbare Haus über zwei Etagen und bietet eine Gesamtwohnfläche von ca. 215 m², diese in die Hauptwohnung (EG) mit ca 160m² und der Einliegerwohnung (KG) mit ca 55m² aufgeteilt sind. In diesen großzügigen zwei Wohneinheiten erwarten Sie insgesamt 10 Zimmer, darunter 4 Schlafzimmer und 3 Badezimmer, sowie Küche mit großer Speisekammer die Ihnen und Ihrer Familie reichlich Platz zur Entfaltung bieten. Eine Raumzusammenführung der Küche mit der Speisekammer ist mit nur geringem Aufwand möglich.. Die zusätzliche Einliegerwohnung bietet Flexibilität für Gäste, zusätzliche Einkünfte oder kann als Büro/Praxis genutzt werden.
Zusätzlich ist das Dachgeschoss bereits vorbereitet für einen geplanten Ausbau. Hier erhalten sie dadurch noch weitere ca.100qm Wohnfläche, diese sie entweder vermieten oder eigennutzen können.
Auch ebenfalls ist die Nutzung als Mehrgenerationenhaus schon jetzt möglich.

Ein Highlight des Hauses ist der zentral in der Wohnung gelegene Kamin, der an kalten Tagen für wohlige Wärme sorgt und zum Verweilen einlädt. Im Sommer können Sie die Sonne auf ihrer ca. 20qm großen Terrasse genießen und zum gemütlichen Grillabend einladen.
Für zusätzlichen Stauraum sorgen die 3 Nutzkellerräume mit ~38qm Fläche.

Das GARANT Massivhaus zeichnet sich durch seine sehr gute Bausubstanz und seine gepflegte Gesamtstruktur aus.

Der Einzug ist ab sofort möglich, sodass Sie keine Zeit verlieren müssen, um dieses wunderbare Zuhause Ihr Eigen zu nennen. Nutzen Sie die Gelegenheit und vereinbaren Sie noch heute einen Besichtigungstermin.
Ihr neues Heim in Buttenheim wartet auf Sie

Merkmale

  • Bezug: ab sofort
  • 991 m² Grundstück
  • Keller
  • 3 Stellplätze: 2 Außen-Stellplätze
  • Terrasse
  • offener Kamin

Grundrisse

Grundrisse
1 / 3

Realisiere Dein Projekt

Bausubstanz und Energie

Energieausweis

D
  • Baujahr1985
  • Zustand der ImmobilieGepflegt
  • HeizungsartZentralheizung: Fußbodenheizung
  • EnergieträgerÖl
Immowelt logo

Preisdetails

Kaufpreis
630000 €
2.930,23 €/m²
Provision für Käufer
3,57 inkl. MwSt.
Weitere Preisinformationen
2 Stellplätze
Geschätzte Gesamtkosten
687.141 €1
Kaufpreis
630.000 €
Notarkosten (1,5%)
9.450 €
Grunderwerbsteuer (3,5%)
22.050 €
Provision für Käufer (3,57%)
22.491 €
Grundbucheintrag (0,5%)
3.150 €
1Der angezeigte Wert ist eine automatisch berechnete Schätzung von immowelt.
2Bei den Angaben handelt es sich um ortsübliche Werte. Individuelle Kosten können abweichen.

Lage

address-icon
Buttenheim (96155)
Der Anbieter hat die genaue Adresse nicht freigegeben
Das angebotene Einfamilienhaus befindet sich in einer ruhigen, aber zentralen Lage in Buttenheim, einer charmanten Gemeinde im oberfränkischen Landkreis. Umgeben von malerischen Landschaften, bietet dieser Standort eine harmonische Verbindung von Ruhe und natürlicher Schönheit. Buttenheim ist bekannt für seine gepflegte, ländliche Atmosphäre und seine Nähe zur Natur, wodurch es besonders für Familien und Naturliebhaber attraktiv ist.

Dank der hervorragenden Verkehrsanbindung sind wichtige Städte der Region, wie Bamberg, Erlangen und Nürnberg, gut erreichbar, was berufliche Pendler zu schätzen wissen. Die Gemeinde selbst verfügt über grundlegende Infrastrukturen wie Schulen, Einkaufsmöglichkeiten und Freizeiteinrichtungen, die den Alltag erleichtern und bereichern.

Das Umfeld zeichnet sich durch eine freundliche Nachbarschaft aus, in der das Gemeinschaftsgefühl gelebt wird. Für Erholung und Freizeitgestaltung stehen zahlreiche Wander- und Radwege zur Verfügung, die zu Entdeckungen in der umliegenden Natur einladen. Dies ist der perfekte Ort für all jene, die ein Leben abseits des Großstadttrubels führen möchten, ohne auf die Vorteile urbaner Anbindungen verzichten zu müssen.


Fußläufig finden Sie alles für ihren täglichen Bedarf:
- 500m Supermarkt
- 350m Post
- 400m Restaurants

sowie in kürzester Lage:
- 350m zur Bushaltestelle
- 540m zum Kindergarten
- 800m zur A73
- 800m Bahnhof

Weitere Informationen

Sonstiges Sonntag, 14.12.2025 von 13:00 - 15:00 Uhr open House (offene Besichtigung)!

Um die Adresse zu erhalten, bitte eine Nachricht an info@heimundhafen.de oder über das Kontaktformular, dann werden wir Ihnen umgehend die Adresse des Objektes zukommen lassen. Stichworte Nutzfläche: 110,00 m², Anzahl der Schlafzimmer: 4, Anzahl der Badezimmer: 3, Anzahl Terrassen: 1, Anzahl der Wohneinheiten: 2, 2 Etagen, modernisiert: 2024 Sonstiges/Wohnen: Einliegerwohnung

Weitere Services

Lust auf eine Besichtigung?
Eine Frage zur Immobilie?
Nachricht hinzufügen
Mit der Nutzung der oben angegebenen Telefonnummer oder durch Klicken auf „Kontaktieren“ akzeptierst Du die Allgemeinen Nutzungsbedingungen, denen Du jederzeit widersprechen kannst. Weitere Informationen zum Datenschutz

Über den Anbieter

Hauptstraße 38, 91301 Forchheim
partner badge
Partnerschaft
Frau Sabine HofmannDein Kontakt

Weitere Unterlagen

Online-ID: 2lp2a5b
Referenznummer: 50-2025-17
Heim & Hafen Immobilien und Yachting
Heim & Hafen Immobilien und Yachting
Bewertung: 2,2 von 5 Sternen
Nachricht hinzufügen
Mit der Nutzung der oben angegebenen Telefonnummer oder durch Klicken auf „Kontaktieren“ akzeptierst Du die Allgemeinen Nutzungsbedingungen, denen Du jederzeit widersprechen kannst. Weitere Informationen zum Datenschutz
Wie zufrieden bist du mit dieser Seite (nicht mit der Immobilie selbst)?