Version: 8.24.0Navigation überspringen
Di Lorenzo Immobilien- und Sachverständigenbüro­
539.000 €
2.100 m² Grundstück

Grundstück zum Kauf
539000 €
257 €/m²
2.100 m² Grundstück

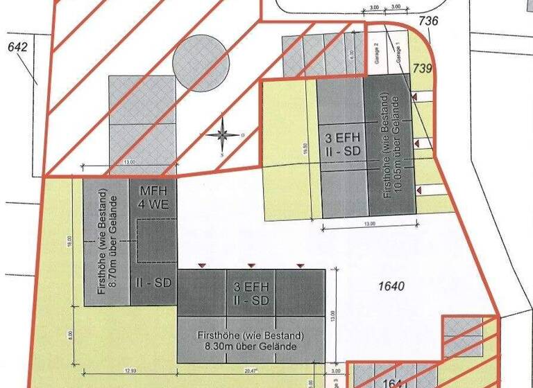
**Baugrundstück mit Bauvorbescheid für 6 EFH, 1 4-FH & 3 Garagen in beliebter Lage von Rheindahlen**

In ruhiger und dennoch zentraler Lage von Mönchengladbach-Rheindahlen bietet sich Ihnen eine seltene Gelegenheit:

Zum Verkauf steht ein großzügiges Grundstück mit einem bereits genehmigten Bauvorbescheid für 6 Einfamilienhäuser, ein Mehrfamilienhaus mit 4 Einheiten sowie 3 Garagen.

Im Einzelnen umfasst die Planung folgende Einheiten:

Die 6 Einfamilienhäuser sind zweigeschossig mit Satteldach geplant und verfügen über eine Größe von 6,82 x 13 Metern sowie 6,5 x 13 Metern.

Auch das Mehrfamilienhaus ist zweigeschossig mit Satteldach konzipiert und erstreckt sich über eine Fläche von 18 x 12,93 Metern.

Aktuell ist das Grundstück mit einem älteren Mehrfamilienhaus sowie Stallungen bebaut, welche im Rahmen der Umsetzung des neuen Bauvorhabens abgerissen werden müssten. Alternativ wäre eine Sanierung des Bestandsgebäudes (derzeitige JNK 18.356,40€) sowie ein Abriss der Stallungen und anschließender Neubebauung mit drei Einfamilienhäusern sowie einem 4- Familienhaus denkbar.

Individuelle Planungen können selbstverständlich in Abstimmung mit dem zuständigen Bauamt eingereicht werden.

Eine Parzellierung der einzelnen Grundstücke muss der Käufer vornehmen. Die hier angegebene Grundstücksgröße basiert demnach auf einer Circaangabe.
Der Verkäufer verkauft die Einheit nur im Ganzen mit aufstehendem Gebäude.

Dieses Angebot richtet sich sowohl an private Bauherren mit dem Wunsch nach einem Neubau in attraktiver Lage als auch an Bauträger, die ein durchgeplantes Projekt mit Entwicklungspotenzial realisieren und veräußern möchten.

Für weitere Informationen sowie für die Vereinbarung eines persönlichen Gesprächs stehen wir Ihnen sehr gerne jederzeit telefonisch zur Verfügung.

Merkmale

  • 2.100 m² Grundstück

Grundrisse

Grundrisse
1 / 2

Realisiere Dein Projekt

Bausubstanz und Energie

Der Anbieter hat keine Informationen zu Energieverbrauch oder Zustand der Immobilie bereit gestellt.
MediumRectangleTop

Preisdetails

Kaufpreis
539000 €
256,67 €/m²
Provision für Käufer
3,57 % inkl. 19 % MwSt.
Geschätzte Gesamtkosten
558.242 €1
Kaufpreis
539.000 €
Provision für Käufer (3,57%)
19.242 €
1Der angezeigte Wert ist eine automatisch berechnete Schätzung von immowelt.
2Bei den Angaben handelt es sich um ortsübliche Werte. Individuelle Kosten können abweichen.

Lage

address-icon
RheindahlenMönchengladbach (41179)
Der Anbieter hat die genaue Adresse nicht freigegeben
Diese Wohnlage überzeugt durch eine gelungene Verbindung aus naturnahem Wohnen und urbaner Erreichbarkeit. Der gepflegte Ortsteil Rheindahlen, bietet ein ruhiges und grünes Umfeld mit gleichzeitig sehr guter infrastruktureller Anbindung.

Besonders geschätzt wird die Lage von Familien: Bildungseinrichtungen wie Schulen und Kindergärten, Fachärzte, Supermärkte sowie das abwechslungsreiche Ortszentrum mit Fachgeschäften und diversen Gastronomiebetrieben sind ebenso schnell erreichbar wie zahlreiche öffentliche Angebote.

Die Kombination aus ländlichem Charme und stadtnaher Lage macht dieses Wohnumfeld besonders attraktiv für anspruchsvolle Ruhesuchende mit Sinn für Lebensqualität.

Weitere Informationen

Sonstiges HAFTUNGSAUSSCHLUSS:

Hinsichtlich der Angaben dieses Objektes sind wir maßgeblich auf die Auskünfte der Verkäufer, Vermieter, Verpächter, Architekten, Bauträger/-herren und Behörden angewiesen. Für die Richtig- und Vollständigkeit der Objektangaben/-unterlagen und ggf. deren (hand-)schriftliche Inhalte übernehmen wir, trotz sorgfältigster Überprüfung und Bearbeitung, keine Gewähr, daher werden uns gegenüber von vornherein spätere Schadensersatzansprüche aufgrund versäumter, fehlerhafter oder unvollständiger Objektangaben ausgeschlossen. Für Unterlagen, die durch uns erstellt wurden (z.B. Grundrisse, Flächenberechnungen, usw.) übernehmen wir keinerlei Gewähr und Haftung, trotz sorgfältigster Überprüfung und Bearbeitung. Wir können für die Bonität der jeweiligen Vertragspartner nicht haften. Die Grunderwerbssteuer, Notar- und Grundbuchkosten sind vom Käufer zu tragen. Auf Wunsch stehen wir Ihnen mit weiteren Informationen zum Objekt und zum Eigentümer gerne zur Verfügung. Die Besichtigung kann jederzeit nach Vereinbarung mit Di Lorenzo Immobilien- und Sachverständigenbüro erfolgen.

Weitere Services

Lust auf eine Besichtigung?
Eine Frage zur Immobilie?
Nachricht hinzufügen
Mit der Nutzung der oben angegebenen Telefonnummer oder durch Klicken auf „Kontaktieren“ akzeptierst Du die Allgemeinen Nutzungsbedingungen, denen Du jederzeit widersprechen kannst. Weitere Informationen zum Datenschutz

Über den Anbieter

Mülgaustr. 52, 41199 Mönchengladbach
partner badge
10 Jahre Partnerschaft
Frau Jil SchlaffenDein Kontakt
Online-ID: 2n7az5g
Referenznummer: 909-SJ
Di Lorenzo Immobilien- und Sachverständigenbüro­
Di Lorenzo Immobilien- und Sachverständigenbüro­
Bewertung: 4,7 von 5 Sternen
Nachricht hinzufügen
Mit der Nutzung der oben angegebenen Telefonnummer oder durch Klicken auf „Kontaktieren“ akzeptierst Du die Allgemeinen Nutzungsbedingungen, denen Du jederzeit widersprechen kannst. Weitere Informationen zum Datenschutz
MediumRectangleTop
MediumRectangleBottom
MediumRectangleTop
Wie zufrieden bist du mit dieser Seite (nicht mit der Immobilie selbst)?