Version: 8.25.1Navigation überspringen
728.106 €
6 Zimmer  •  163 m²  •  4.249 m² Grundstück
Immowelt logo

Einfamilienhaus zum Kauf • provisionsfrei
728105.8 €
4.467 €/m²
6 Zimmer  •  163 m²  •  4.249 m² Grundstück

Verwirklichen Sie Ihre Wohnwünsche mit einem Ausbauhaus von Kern-Haus!

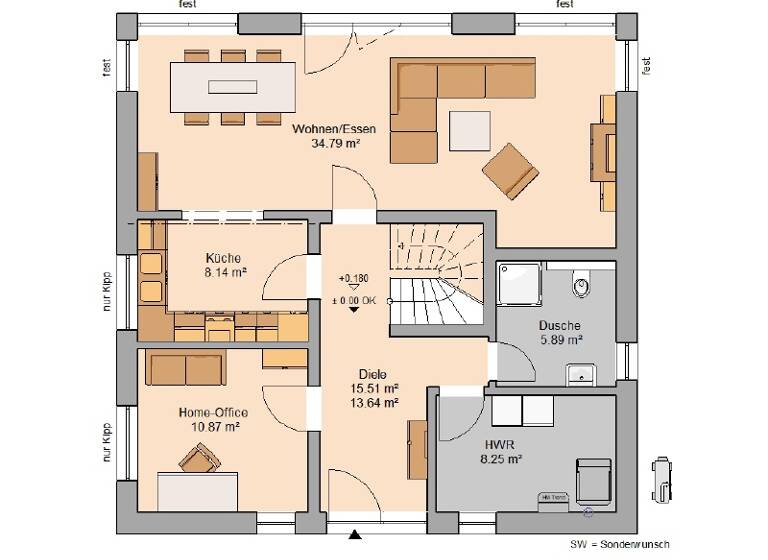
Die zeitlos moderne Stadtvilla Centro von Kern-Haus ist mit allem Wohnkomfort ausgestattet: helle, großzügige Räume bestimmen die Architektur. Auf ebener Erde befinden sich Küche, Wohn/Esszimmer und ein weiterer Raum, der als Home-Office oder Gästezimmer genutzt werden kann. Das Duschbad im Erdgeschoss ist besonders praktisch, wenn Gäste zu Besuch sind.

Im Obergeschoss sind die Individualräume angeordnet: Drei Kinderzimmer mit separatem Duschbad und das Domizil für die Eltern mit luxuriöser Ankleide als Zugang zum separatem Eltern-Bad bieten maximalen Wohnkomfort.

Die Außenansicht der Stadtvilla wird von symmetrischen, großen Fensterflächen und einer markanten Eckverglasung bestimmt. Ein Haus zum Wohlfühlen!

Dieses Haus wird nach Ihren individuellen Wünschen geplant und ausgestattet!

Merkmale

  • 4.249 m² Grundstück
  • Badewanne
  • Gäste-WC
  • 2 Stellplätze
6 Zimmer, Küche, Diele, 2 x Dusche, Flur, Bad, Ankleide, Hauswirtschaftsraum

Das gezeigte Traumhaus im Überblick:

+ Schlüsselfertiges Massivhaus im Sinne der Ausstattungsbeschreibung "Easy"
+ Inklusive Bodenplatte

Beste Markenausstattung in jedem Kern-Haus:

+ Zimmermannsmäßiger Dachstuhl aus Konstruktionsvollholz
+ Dacheindeckung mit Betondachsteinen von Braas
+ Hochwertiger Kunstharz-Außenputz für eine langlebige Fassade
+ Vollständige Badausstattung von Villeroy & Boch mit Badewanne und flacher Duschwanne
+ Fliesen von Villeroy & Boch in Bad und WC
+ Haustür mit 3-fach-Sicherheitsverriegelung
+ Erstklassige Innentüren der Marke Herholz
+ Fenster mit 3-Scheiben-Wärmeschutzverglasung und Rollläden
+ Stahl-Holz-Treppe mit individueller Farbgestaltungsmöglichkeit
+ Elektroausstattung inklusive Klingelanlage
+ Rauchmelder für Ihre Sicherheit
+ Alle Leistungen aus einer Hand
+ Alle Planungs- und Architektenleistungen
+ Einsatz regionaler Handwerksbetriebe
+ Individuelle Anpassung auf Ihre Bedürfnisse
+ Auf Wunsch mit Keller erhältlich
+ Auf Wunsch mit weiteren Energietechniken erhältlich

Grundrisse

Grundrisse
1 / 2

Realisiere Dein Projekt

Bausubstanz und Energie

Energieausweis

Der Anbieter hat keine Daten zum Energieausweis hinterlegt.
  • Baujahr2026
  • Zustand der ImmobilieNeubau, Projektiert
  • HeizungsartZentralheizung: Fußbodenheizung
Immowelt logo

Preisdetails

Kaufpreis
728105.8 €
4.466,91 €/m²
Provision für Käufer
provisionsfrei
Geschätzte Gesamtkosten
782.715 €1
Kaufpreis
728.106 €
Notarkosten (1,5%)
10.922 €
Grunderwerbsteuer (5,5%)
40.046 €
Grundbucheintrag (0,5%)
3.641 €
1Der angezeigte Wert ist eine automatisch berechnete Schätzung von immowelt.
2Bei den Angaben handelt es sich um ortsübliche Werte. Individuelle Kosten können abweichen.

Lage

address-icon
Weinböhla (01689)
Der Anbieter hat die genaue Adresse nicht freigegeben
In einer ruhigen und grünen Umgebung von Weinböhla erwartet Sie dieses attraktive Baugrundstück - ideal für den Bau eines Einfamilienhauses. Hier genießen Sie naturnahes Wohnen mit viel Platz zur individuellen Gestaltung. Das Grundstück bietet ein großzügiges Baufeld und wird durch einen charmanten Bereich mit Streuobstwiese und Trockengrasbiotop ergänzt. Diese natürliche Fläche bereichert das Grundstück mit ökologischer Vielfalt und sorgt für eine besondere Atmosphäre, ohne die Bebaubarkeit einzuschränken.

Alle Medien wie Wasser, Abwasser, Strom, Gas und Telekommunikation liegen bereits an und ermöglichen eine unkomplizierte Erschließung. Die Lage überzeugt durch eine hervorragende Anbindung an Dresden, Meißen und Radebeul sowie eine familienfreundliche Infrastruktur mit Schulen, Kitas und Einkaufsmöglichkeiten in unmittelbarer Nähe. Zudem laden zahlreiche Freizeit- und Erholungsmöglichkeiten wie Weinberge, Wander- und Radwege dazu ein, die Natur in vollen Zügen zu genießen. Der charmante Ortskern von Weinböhla bietet ein reges Vereinsleben und kulturelle Veranstaltungen, die das Leben in dieser Umgebung besonders lebenswert machen.

Hier finden Sie die perfekte Kombination aus Natur, Ruhe und guter Infrastruktur - ein Ort zum Wohlfühlen und Ankommen.

Weitere Informationen

Sonstiges Kern-Haus

Kern-Haus baut individuelle und massive Architektenhäuser zu einem attraktiven Preis-Leistungs-Verhältnis - und das bereits mit einer Erfahrung seit 1980.

Maximale Sicherheit bei Kern-Haus:
+ 10 Jahre Gewährleistung auf die wesentlichen Bauleistungen
+ Bis zu 24 Monate Festpreisbindung
+ 50 Jahre Gewährleistung auf das DuoTherm-Mauerwerk
+ Verbindliche Bauzeit
+ Zahlung nach Baufortschritt

Preise und Auszeichnungen von Kern-Haus:
- German Brand Award in den Jahren 2018 und 2021
- Hausbau Design Award: Sieger in den Jahren 2017, 2018, 2019, 2020, 2021, 2022 und 2023
- Deutscher Traumhauspreis: Sieger in den Jahren 2014, 2015, 2016 und 2018 und Silber 2017, 2020 und 2021
- Mittelstandspreis "Top 100" in den Jahren 2014, 2016, 2018, 2020 und 2022
- German Design Award im Jahr 2018

Weitere Informationen

Der gezeigte Preis versteht sich inklusive Grundstück und exklusive der Baunebenkosten.

Ihre Ansprechpartnerin Nicole Ulbricht vom Kern-Haus-Team in Dresden freut sich darauf Ihre Fragen zu beantworten. Jetzt anrufen: 0351 / 8391319

Kern-Haus in Dresden - https://www.kern-haus.de/dresden/

Weitere Architektenhäuser - https://www.kern-haus.de/haeuser Stichworte Stellplatz vorhanden, Anzahl der Schlafzimmer: 5, Anzahl der separaten WCs: 1

Weitere Services

Lust auf eine Besichtigung?
Eine Frage zur Immobilie?
Nachricht hinzufügen
Mit der Nutzung der oben angegebenen Telefonnummer oder durch Klicken auf „Kontaktieren“ akzeptierst Du die Allgemeinen Nutzungsbedingungen, denen Du jederzeit widersprechen kannst. Weitere Informationen zum Datenschutz

Über den Anbieter

Am Sandberg 2, 01468 Moritzburg
Frau Nicole Ulbricht
Frau Nicole UlbrichtDein Kontakt
Online-ID: 25E38TLZGRBL
Referenznummer: WDD 10357
Kern-Haus AG Niederlassung Dresden
title
Kern-Haus AG Niederlassung Dresden
Nachricht hinzufügen
Mit der Nutzung der oben angegebenen Telefonnummer oder durch Klicken auf „Kontaktieren“ akzeptierst Du die Allgemeinen Nutzungsbedingungen, denen Du jederzeit widersprechen kannst. Weitere Informationen zum Datenschutz
Wie zufrieden bist du mit dieser Seite (nicht mit der Immobilie selbst)?