Version: 8.24.0Navigation überspringen
1.180.000 €
638 m²  •  509 m² Grundstück
Immowelt logo

Mehrfamilienhaus zum Kauf • provisionsfrei • als Kapitalanlage geeignet
1180000 €
1.850 €/m²
638 m²  •  509 m² Grundstück

Investment Mehrfamilienhaus im Altstadtzentrum von Neuruppin

Zum Verkauf steht ein attraktives Stadthaus in begehrter Altstadtlage von Neuruppin. Das Eckgebäude befindet sich zentral an der Friedrich-Ebert-Straße / Ecke Friedrich-Engels-Straße und profitiert von einer sehr guten Sichtbarkeit sowie einer gefragten innerstädtischen Lage. Das Mehrfamilienhaus umfasst 7 Wohneinheiten mit Wohnflächen zwischen ca. 76 m² und 112 m². Die Immobilie wurde im Jahr 2012 umfassend saniert und befindet sich in einem gepflegten Zustand ohne Sanierungsstau. Die Wohnungen sind zuverlässig vermietet, die monatlichen Kaltmieteinnahmen liegen bei durchschnittlich ca. 8,98 €/m² und bieten eine rentable, stabile Ertragssituation. Ein Mieterwechsel ist derzeit nicht gegeben.

Merkmale

  • frei ab sofort
  • 509 m² Grundstück
  • offene Küche
  • Keller
  • Badezimmer: Badewanne, Bad mit Dusche, Bad mit Fenster
  • ausgebautes Dach
  • Bodenbelag: Fliesen, Laminat
  • Fenster: Holz

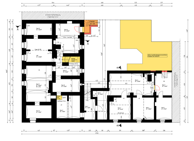
Grundrisse

Grundrisse
1 / 4

Realisiere Dein Projekt

Bausubstanz und Energie

Der Anbieter hat keine Informationen zum Energieverbrauch bereit gestellt.
  • HeizungsartZentralheizung
  • EnergieträgerFernwärme
Immowelt logo

Preisdetails

Kaufpreis
1180000 €
1.849,53 €/m²
Provision für Käufer
provisionsfrei
Geschätzte Gesamtkosten
1.280.300 €1
Kaufpreis
1.180.000 €
Notarkosten (1,5%)
17.700 €
Grunderwerbsteuer (6,5%)
76.700 €
Grundbucheintrag (0,5%)
5.900 €
1Der angezeigte Wert ist eine automatisch berechnete Schätzung von immowelt.
2Bei den Angaben handelt es sich um ortsübliche Werte. Individuelle Kosten können abweichen.

Lage

address-icon
Friedrich-Ebert-Straße 5Neuruppin (16816)
Neuruppin ist die Kreisstadt des Landkreises Ostprignitz-Ruppin in Brandenburg und liegt ca. 80 km nordwestlich von Berlin. Mit rund 32.000 Einwohnern ist die Stadt das wirtschaftliche, administrative und kulturelle Zentrum der Region. Die Infrastruktur ist sehr gut ausgebaut. Einkaufsmöglichkeiten des täglichen Bedarfs, Fachgeschäfte, Supermärkte, Gastronomie sowie medizinische Versorgung sind umfassend vorhanden. Als Kreisstadt beherbergt Neuruppin zahlreiche Behörden und öffentliche Einrichtungen, darunter Kreisverwaltung, Amtsgericht und weitere Verwaltungseinrichtungen. Ein vielfältiges Angebot an Kindertagesstätten, Schulen und weiterführenden Bildungseinrichtungen sowie die Medizinische Hochschule Brandenburg unterstreichen die Bedeutung Neuruppins als Bildungsstandort. Mit dem Ruppiner Klinikum verfügt die Stadt zudem über eine überregionale medizinische Versorgung. Die Verkehrsanbindung ist sowohl regional als auch überregional gut: Bahnverbindungen Richtung Berlin, Bundesstraßen sowie die nahegelegene A24 ermöglichen eine schnelle Erreichbarkeit. Kulturelle Angebote, die historische Altstadt sowie der Ruppiner See mit umfangreichen Freizeit- und Erholungsmöglichkeiten tragen zu einer hohen Lebensqualität bei.

Weitere Informationen

Sonstiges Gerne laden wir Sie ein, uns bei Fragen oder Interesse direkt zu kontaktieren. Eine E-Mail, in der Sie Ihre Telefonnummer hinterlassen, oder ein Anruf genügt, um weitere Informationen zu erhalten. Ihr Team von Ku'damm Immobilien GmbH steht Ihnen jederzeit zur Verfügung und freut sich darauf, Ihnen bei Ihrem Immobilienanliegen behilflich zu sein. Zögern Sie nicht länger – verwirklichen Sie Ihre Wohnträume noch heute! Heizungsart: Heizkoerper

Weitere Services

Lust auf eine Besichtigung?
Eine Frage zur Immobilie?
Nachricht hinzufügen
Mit der Nutzung der oben angegebenen Telefonnummer oder durch Klicken auf „Kontaktieren“ akzeptierst Du die Allgemeinen Nutzungsbedingungen, denen Du jederzeit widersprechen kannst. Weitere Informationen zum Datenschutz

Über den Anbieter

August-Bebel-Straße 9, 16816 Neuruppin
partner badge
Partnerschaft
Herr Olaf Kamrath
Herr Olaf KamrathDein Kontakt
Online-ID: 2mywa5r
Ku´damm Immobilien GmbH
title
Ku´damm Immobilien GmbH
Bewertung: 5 von 5 Sternen
Nachricht hinzufügen
Mit der Nutzung der oben angegebenen Telefonnummer oder durch Klicken auf „Kontaktieren“ akzeptierst Du die Allgemeinen Nutzungsbedingungen, denen Du jederzeit widersprechen kannst. Weitere Informationen zum Datenschutz
Wie zufrieden bist du mit dieser Seite (nicht mit der Immobilie selbst)?