Version: 8.25.1Navigation überspringen
320.000 €
3 Zimmer  •  89 m²  •  1. Geschoss
Immowelt logo

Wohnung zum Kauf
320000 €
3.596 €/m²
3 Zimmer  •  89 m²  •  1. Geschoss

Wohnung 89m2 zum Kauf - Sibensko-Kninska, Primosten

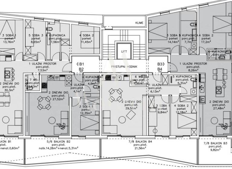
Die Wohnung B3 befindet sich im ersten Stock eines modernen Wohngebäudes und überzeugt durch ihren funktionalen Grundriss sowie großzügige Außenflächen. Die netto nutzbare Fläche beträgt 89,66 m².

Grundriss und Raumaufteilung:

Eingangsbereich - 8,26 m²

Schlafzimmer 1 - 14,14 m²

Schlafzimmer 2 - 17,2 m²

Badezimmer 1 - 7,7 m²

Badezimmer 2 - 2,77 m²

Wohnzimmer mit Küche und Essbereich - 27,48 m²

Überdachter Balkon - 9,82 m²

Abstellraum - 4,05 m²

Garagenstellplatz - 15 m²

Vom Balkon genießt man einen freien Blick auf das Meer, was der Immobilie zusätzlichen Wert verleiht und sie ideal für das ganzjährige Leben im mediterranen Ambiente macht.

Technische Merkmale und Ausstattung:

ALU-Fenster mit IZO-Verglasung, LOW-E-Beschichtung und Argonfüllung

Elektrische ALU-Rollläden mit Wärmedämmung und integrierten Insektenschutzgittern

Einbruch- und brandsichere ALU-Eingangstüren (schall- und wärmegedämmt)

Multi-Split-Inverter-Klimaanlagen mit verdeckten Inneneinheiten

Elektrische Fußbodenheizung in den Badezimmern

ETICS-Fassadensystem mit 10 cm Steinwolle-Dämmung

LED-Beleuchtung in allen Räumen

Vorbereitung für Elektroauto-Ladestationen in der Garage

Aufzug verbindet alle Etagen des Gebäudes

Das Gebäude bietet direkten Zugang zur Tiefgarage per Aufzug. Alle Wohnungen sind nach Süden ausgerichtet und bieten das ganze Jahr über viel natürliches Licht.

Verfügbare Wohnungen im Projekt:

A1 - 375.000 €

A2 - 265.000 €

A3 - 375.000 €

A4 - 330.000 €

B1 - 390.000 €

B3 - 320.000 €

C2 - 245.000 €

D1 - 790.000 €

D2 - 670.000 €

Lage und Entfernungen:

Zentrum von Primosten und Strand: 750 m

Marina Kremik: 2 km

Flughafen Split: ca. 35 km

Stadt Sibenik: ca. 25 km

Für weitere Informationen oder zur Vereinbarung eines Besichtigungstermins kontaktieren Sie uns gerne.

ID CODE: 192

Iva Kalabric
Mob: +385995616651
E-mail: iva@materra.estate
www.materra.estate

Merkmale

  • 1. Geschoss

Grundrisse

Grundrisse
1 / 1

Realisiere Dein Projekt

Bausubstanz und Energie

Möchtest du Details zum Energieverbrauch?info_energy_calculation-icon
  • Baujahr2025
Immowelt logo

Preisdetails

Kaufpreis
320000 €
3.595,51 €/m²
Provision für Käufer
Bitte beachte, das Angebot kann bei Vertragsabschluss die Zahlung einer Provision beinhalten. Weitere Informationen erhältst Du vom Anbieter.

Lage

address-icon
PrimostenPrimosten

Weitere Informationen

Stichworte Anzahl der Schlafzimmer: 2, Anzahl der Badezimmer: 2, 1 Etagen

Weitere Services

Lust auf eine Besichtigung?
Eine Frage zur Immobilie?
Nachricht hinzufügen
Mit der Nutzung der oben angegebenen Telefonnummer oder durch Klicken auf „Kontaktieren“ akzeptierst Du die Allgemeinen Nutzungsbedingungen, denen Du jederzeit widersprechen kannst. Weitere Informationen zum Datenschutz

Über den Anbieter

Nova cesta 60, 10000 ZAGREB
Materra Real EstateDein Kontakt
Online-ID: 26VTH181DADG
Referenznummer: 19216716_1
Crozilla.com
Crozilla.com
Nachricht hinzufügen
Mit der Nutzung der oben angegebenen Telefonnummer oder durch Klicken auf „Kontaktieren“ akzeptierst Du die Allgemeinen Nutzungsbedingungen, denen Du jederzeit widersprechen kannst. Weitere Informationen zum Datenschutz
Wie zufrieden bist du mit dieser Seite (nicht mit der Immobilie selbst)?