Das um ca. 1910 erbaute Wohn-Geschäftshaus wurde in den Jahren 1971 und 2005 per Aufstockung erweitert. So dass es heute im Erdgeschoss eine Gewerbe-Einheit mit ca. 196 qm vermietbare Fläche und im Obergeschoss eine Wohn-Einheit mit ca. 150 qm vermietbare Fläche aufweist. Die Wohneinheit im Obergeschoss ist vermietet. Die Gewerbe-Einheit im Erdgeschoss wurde kürzlich aufwendig von ehemaliger Gastronomiefläche in eine lukrative Dienstleistungsfläche mit langjähriger Vermietung umgebaut. Im Kellergeschoss stehen für beide Einheiten genug Kellerraum-Flächen bzw. Lagerflächen zur Vermietung zur Verfügung. Diese Flächen sind rechts vom Haus über eine Zufahrt per Kfz gut zu erreichen!
Merkmale
365 m² Grundstück
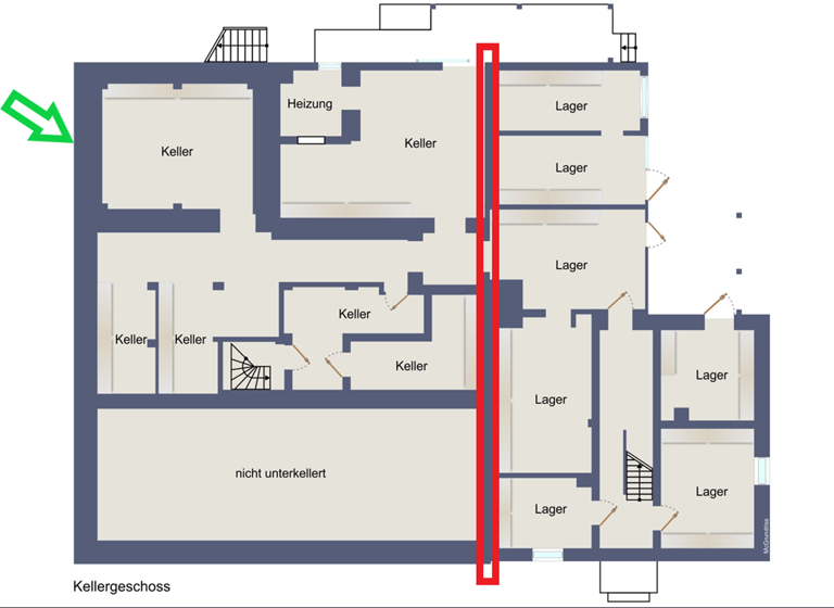
Keller
4 Stellplätze: 4 Außen-Stellplätze
Terrasse
Fernblick
Ausstattungsmerkmale: 1910 ca. Baujahr 1971 Aufstockung 2000 zur StraĂźe hin 3-fach-verglaste Schall-Fenster 2005 Aufstockung 2019 zuletzt und laufend teilweise Erneuerung der Elektrik 2022 Gas-Zentral-Heizung mit Warmwasser-Aufbereitung
Obergeschoss: ca. 150 qm Wohnfläche; mögliche Kalt-Mieteinnahme 637,50 € monatlich Erdgeschoss: ca. 196 qm Gewerbefläche; Kalt-Mieteinnahme 990,00 € monatlich Kellergeschoss: weitere Lagerfläche zur Vermietung mögliche
Grundrisse
Grundrisse
1 / 3
Realisiere Dein Projekt
Bausubstanz und Energie
Der Anbieter hat keine Informationen zum Energieverbrauch bereit gestellt.
Baujahr1910
HeizungsartZentralheizung
EnergieträgerGas
Preisdetails
Kaufpreis
267000 €267.000 €
Provision für Käufer
3,57 % inkl. ges. MwSt.
Weitere Preisinformationen
4 Stellplätze Soll-Mieteinnahmen pro Jahr: 22.530,00 EUR Ist-Mieteinnahmen pro Jahr: 18.720,00 EUR
Geschätzte Gesamtkosten
276.532 €1
Kaufpreis
267.000 €
Kaufnebenkosten
9.532 €
2
Provision für Käufer (3,57%)
9.532 €
1Der angezeigte Wert ist eine automatisch berechnete Schätzung von immowelt.
2Bei den Angaben handelt es sich um ortsübliche Werte. Individuelle Kosten können abweichen.
Lage
Schmallenberg (57392)
Der Anbieter hat die genaue Adresse nicht freigegeben
Zentral gelegen in Schmallenberg haben Sie sämtliche Einkaufsmöglichkeiten, einen Baumarkt, Ärzte und Apotheken quasi vor der Tür. Bank/Sparkasse, Kindergärten und Schulen wie Grundschule, eine Gemeinschaftshauptschule, ein Gymnasium sind fußläufig erreichbar. Auch die Weltfirma Falke ist fußläufig in nur ca. 300 Meter erreichbar und lockt viele Arbeitnehmer aus ganz Deutschland nach Schmallenberg. Selbst einen eigenen Ski-Lift besitzt dieser mit Fachwerkhäusern geprägte Ferienort. Den Sportflugplatz Rennefeld erreichen Sie mit dem Auto in ca. 5 Minten. 2 Golfplätze sind in ca. 5 - 10 Minuten mit dem Auto zu erreichen. Und wenn Sie Freunde des Wanderns sind, Schmallenberg liegt im Rothaargebirge und der Hunau, umgeben von Wald und Wanderwegen. Zahlreiche Gastronomie lädt im Ort zu einem gemütlichen Tagesausklang ein! Langlauf-Loipen und weitere Skihänge sind ebenfalls in unmittelbarer Nähe vorhanden. Auch der bekannte Winter- und Sommersportort Winterberg ist in unmittelbarer Nähe in ca. 20 Auto-Minuten erreichbar. Ski-Karrusell, Eis-Bobbahn, Sommer-Rodelbahn, Panoramabrücke, Kletterwald und Mountainbike-Park laden zu Events und Eigenaktivität ein.
1.877,50 € mögliche Kalt-Miete x 12 = 22.530 € Jahres-Kalt-Miete
22.530 € / 299.000 € x 100 = ca. 7,54 % Rendite vor Bewirtschaftung und Steuern
Unter der Rubrik "Dokumente" finden Sie die Grundrisse in groß und besserer Auflösung! Dafür müssen Sie das PDF-Dokument zum Öffnen einfach nur anklicken!
Habe ich Ihr Interesse geweckt? Benötigen Sie eine Beratung bezüglich Ihrer Finanzierung? Dann können Sie hier alles aus einer Hand bekommen! Ich freue mich über Ihre Nachricht! Oder rufen Sie mich einfach an! 0049 (0)178 - 4486474