Version: 8.24.0Navigation überspringen
490.979 €
4 Zimmer  •  128 m²  •  722 m² Grundstück
Immowelt logo

Einfamilienhaus zum Kauf • provisionsfrei
490978.53 €
3.836 €/m²
4 Zimmer  •  128 m²  •  722 m² Grundstück

Einladend offen!

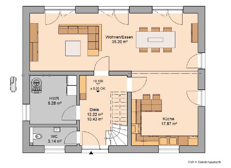
Lassen Sie sich begeistern von 128 m² im Architektenhaus Jaro. Der Grundriss überzeugt in jeder Hinsicht, denn im Erdgeschoss erwartet Sie ein großzügiger, offener Wohnbereich mit Essbereich und einer offenen Küche. Hier werden Wohnträume wahr, denn für jedes Familienmitglied findet sich hier genug Platz für das wahre Leben! Nicht fehlen dürfen auf der Etage ein Gäste-WC und der Hauswirtschaftsraum.

Im Dachgeschoss des Satteldachhauses befinden sich zwei Kinderzimmer, ein Elternschlafzimmer und das geräumige Familienbad.

Dieses Haus wird nach Ihren individuellen Wünschen geplant und ausgestattet!

Merkmale

  • 722 m² Grundstück
  • 2 Stellplätze
  • Gäste-WC
  • Badewanne
4 Zimmer, offene Küche, Diele, Flur, Bad, WC, Hauswirtschaftsraum

Das gezeigte Traumhaus im Überblick:

+ Schlüsselfertiges Massivhaus im Sinne der Ausstattungsbeschreibung "Easy"
+ Inklusive Bodenplatte

Beste Markenausstattung in jedem Kern-Haus:

+ Zimmermannsmäßiger Dachstuhl aus Konstruktionsvollholz
+ Dacheindeckung mit Betondachsteinen von Braas
+ Hochwertiger Kunstharz-Außenputz für eine langlebige Fassade
+ Vollständige Badausstattung von Villeroy & Boch mit Badewanne und flacher Duschwanne
+ Fliesen von Villeroy & Boch in Bad und WC
+ Haustür mit 3-fach-Sicherheitsverriegelung
+ Erstklassige Innentüren der Marke Herholz
+ Fenster mit 3-Scheiben-Wärmeschutzverglasung und Rollläden
+ Stahl-Holz-Treppe mit individueller Farbgestaltungsmöglichkeit
+ Elektroausstattung inklusive Klingelanlage
+ Rauchmelder für Ihre Sicherheit
+ Alle Leistungen aus einer Hand
+ Alle Planungs- und Architektenleistungen
+ Einsatz regionaler Handwerksbetriebe
+ Individuelle Anpassung auf Ihre Bedürfnisse
+ Auf Wunsch mit Keller erhältlich
+ Auf Wunsch mit weiteren Energietechniken erhältlich

Grundrisse

Grundrisse
1 / 2

Realisiere Dein Projekt

Bausubstanz und Energie

Energieausweis

Der Anbieter hat keine Daten zum Energieausweis hinterlegt.
  • Baujahr2026
  • Zustand der ImmobilieNeubau, Projektiert
  • HeizungsartZentralheizung: Fußbodenheizung
Immowelt logo

Preisdetails

Kaufpreis
490978.53 €
3.835,77 €/m²
Provision für Käufer
provisionsfrei
Geschätzte Gesamtkosten
525.348 €1
Kaufpreis
490.979 €
Notarkosten (1,5%)
7.365 €
Grunderwerbsteuer (5%)
24.549 €
Grundbucheintrag (0,5%)
2.455 €
1Der angezeigte Wert ist eine automatisch berechnete Schätzung von immowelt.
2Bei den Angaben handelt es sich um ortsübliche Werte. Individuelle Kosten können abweichen.

Lage

address-icon
Am Ettersberg (99439)
Der Anbieter hat die genaue Adresse nicht freigegeben
Großobringen hat sich in den letzten Jahren aufgrund seiner verkehrsmäßig guten Anbindung zu einem beliebten Wohn- und Gewerbestandort entwickelt. Ein straßenbegleitender Radweg mit E-Bike-Ladestation an der Gaststätte führt nach Norden in das benachbarte Daasdorf bzw. in südlicher Richtung entlang der B 85 nach Weimar. Plätze, Freiflächen und viel Grün prägen heute seinen dörflichen Charakter. Die nahe gelegene Prinzenschneise, die Schwedenschanze, laden zum Wandern und Radwanderung ein. Das gesellschaftliche Leben wird geprägt von Vereinen wie dem Kirmes-, Sport-, Feuerwehr- und dem Heimatverein, der sogar eine eigene Gemeindebibliothek sein Eigen nennt, die über die Grenzen Großobringens hinaus ehrenamtlich arbeitet. Großobringen hat eine 2010 sanierte Kindertagesstätte, die "Rappelkiste" und einen Kinderspielplatz. Einige Kleinbetriebe, u.a. auch ein Blumenladen und eine Tankstelle, sind hier ansässig.

Weitere Informationen

Sonstiges Kern-Haus

Kern-Haus baut individuelle und massive Architektenhäuser zu einem attraktiven Preis-Leistungs-Verhältnis - und das bereits mit einer Erfahrung seit 1980.

Maximale Sicherheit bei Kern-Haus:
+ 10 Jahre Gewährleistung auf die wesentlichen Bauleistungen
+ Bis zu 24 Monate Festpreisbindung
+ 50 Jahre Gewährleistung auf das DuoTherm-Mauerwerk
+ Verbindliche Bauzeit
+ Zahlung nach Baufortschritt

Preise und Auszeichnungen von Kern-Haus:
- German Brand Award in den Jahren 2018 und 2021
- Hausbau Design Award: Sieger in den Jahren 2017, 2018, 2019, 2020, 2021, 2022 und 2023
- Deutscher Traumhauspreis: Sieger in den Jahren 2014, 2015, 2016 und 2018 und Silber 2017, 2020 und 2021
- Mittelstandspreis "Top 100" in den Jahren 2014, 2016, 2018, 2020 und 2022
- German Design Award im Jahr 2018

Weitere Informationen

Der gezeigte Preis versteht sich inklusive Grundstück und exklusive der Baunebenkosten.

Ihre Ansprechpartnerin Katrin Klein vom Kern-Haus-Team in Erfurt freut sich darauf Ihre Fragen zu beantworten. Jetzt anrufen: 0361 / 551450

Kern-Haus in Erfurt - https://www.kern-haus.de/erfurt/

Weitere Architektenhäuser - https://www.kern-haus.de/haeuser Stichworte Stellplatz vorhanden, Anzahl der Schlafzimmer: 3, Anzahl der separaten WCs: 1

Weitere Services

Lust auf eine Besichtigung?
Eine Frage zur Immobilie?
Nachricht hinzufügen
Mit der Nutzung der oben angegebenen Telefonnummer oder durch Klicken auf „Kontaktieren“ akzeptierst Du die Allgemeinen Nutzungsbedingungen, denen Du jederzeit widersprechen kannst. Weitere Informationen zum Datenschutz

Über den Anbieter

Kern-Haus AG, Niederlassung Erfurt
Gustav-Freytag-Straße 12, 99096 Erfurt
partner badge
Partnerschaft
Online-ID: 2k43n5a
Referenznummer: KEF 73044
Kern-Haus AG, Niederlassung Erfurt
Kern-Haus AG, Niederlassung Erfurt
Nachricht hinzufügen
Mit der Nutzung der oben angegebenen Telefonnummer oder durch Klicken auf „Kontaktieren“ akzeptierst Du die Allgemeinen Nutzungsbedingungen, denen Du jederzeit widersprechen kannst. Weitere Informationen zum Datenschutz
Wie zufrieden bist du mit dieser Seite (nicht mit der Immobilie selbst)?