Version: 8.25.1Navigation überspringen
Anobis Immobilien GmbH
559.700 €
3 Zimmer  •  65,4 m²  •  1. Geschoss  •  frei ab 30.04.2026

Wohnung zum Kauf - Erstbezug • provisionsfrei
559700 €
8.555 €/m²
3 Zimmer  •  65,4 m²  •  1. Geschoss  •  frei ab 30.04.2026

Provisionsfrei - Ihr neues Dachgeschoß am Fuße des Küniglbergs.

Wohnen im Grünen und doch in der Stadt, beste öffentliche Verkehrsanbindung und perfekte Grundrisse.

Der urbane 13. Wiener Bezirk, Hietzing, bietet schönes Wohnen in Wien, nahegelegene Ausflugsziele und beste Infrastruktur. In der Fasangartengasse werden 20 Wohnungen mit 2 - 4 Zimmern und einer Größe zwischen ca. 35 und 132 m2  inklusive Tiefgarage errichtet. Alle Wohnungen verfügen über Außenflächen wie Loggien, Balkone, Terrassen oder Eigengärten.

Das Herzstück des Projektes ist der ruhige Gemeinschaftsgarten, welcher mit Sitzgelegenheiten und einem Spielplatz zum Verweilen einlädt. Zwei große Dachgeschoß-Wohnungen mit schönen Terrassen bilden ein weiteres Highlight dieses Wohnbauprojektes. Neben 14 PKW-Stellplätzen, welche für E-Tankstellen vorbereitet werden, punktet die Garage mit einem Fahrradraum und einem Fahrradwaschplatz und sorgt für Komfort im Alltag.

Die Grundrisse sind kompakt sowie perfekt durchdacht und bieten somit ein angenehmes Wohngefühl. Das gesamte Projekt wird hochwertig und funktional ausgestattet. In den Wohnräumen wird Eichen-Parkett, in den Bädern stilvolles und solides Feinsteinzeug verlegt. Ein Home Delivery System ermöglicht sichere und bequeme Anlieferungen auch während der Abwesenheit der Bewohner. Die Kombination aus Erdwärme und Photovoltaikanlage sorgt für niedrige Betriebskosten und unterstreicht den nachhaltigen Gedanken an diesem Projekt.

Die Lage besticht einerseits durch die Nähe zum Küniglberg, andererseits durch die günstige Verkehrsanbindung und perfekte Infrastruktur sowie Nahversorgung. S-Bahn-, Straßenbahn- und Autobus-Haltestellen liegen nur wenige Gehminuten entfernt.

Gerade in Zeiten, wie diesen ist es wichtig auf einen renommierten Bauträger zu vertrauen.
Die Raiffeisen WohnBau ist schon seit über 25 Jahren erfolgreich am Markt, und hat rund 2.500 freifinanzierte Wohneinheiten erreichtet. Die Wohnbauten der Raiffeisen WohnBau, mit dem Siegel "Quality Living" versehen, bestechen durch ihre hervorragende Lage, beste infrastrukturelle Anbindung sowie hochwertige Ausstattungs- und Bauqualität. Sie bieten somit eine besonders hohe Lebensqualität und Wohnkomfort auf allen Ebenen.

 

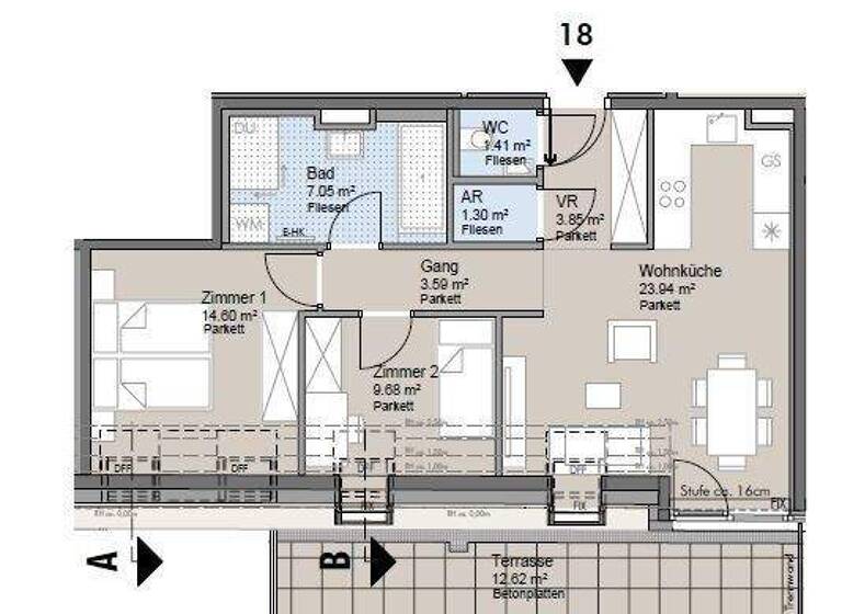
Top 18 - 1.DG:

* 65,42 m² Wohnnutzfläche
* 12,62 m² Terrasse
* 2,16 m² Kellerabteil
* Kaufpreis für Eigennützer: € 559.0700,-
* Kaufpreis für Anleger: € 508.500,- zzgl. 20% USt.

Garagenplätze in der hauseigenen Tiefgarage:
Die Kaufpreise für einen Garagenplatz belaufen sich je nach Größe auf € 38.000 für Eigennutzer und auf € 31.510 zzgl. 20% USt. für Anleger.

Geplante Fertigstellung: Jänner 2026

Visualisierungen/Symbolbilder: © JamJam - Planungsänderungen vorbehalten!

Ihr Kontakt - Provisionsfrei:
Mag. Alexandra Wagner, MSc.
+43 664 601 05 165
www.anobis.at

Wir weisen darauf hin, dass zwischen dem Vermittler und dem zu vermittelnden Dritten ein familiäres oder wirtschaftliches Naheverhältnis besteht.

Der Vermittler ist als Doppelmakler tätig.

Infrastruktur / Entfernungen

Gesundheit
Arzt <500m
Apotheke <500m
Klinik <1.000m
Krankenhaus <1.000m

Kinder & Schulen
Schule <500m
Kindergarten <500m
Universität <2.500m
Höhere Schule <3.500m

Nahversorgung
Supermarkt <500m
Bäckerei <500m
Einkaufszentrum <3.000m

Sonstige
Geldautomat <500m
Bank <500m
Post <1.000m
Polizei <500m

Verkehr
Bus <500m
U-Bahn <2.000m
Straßenbahn <500m
Bahnhof <500m
Autobahnanschluss <3.000m

Angaben Entfernung Luftlinie / Quelle: OpenStreetMap

Merkmale

  • frei ab 30.04.2026
  • Dachgeschoss, 1. Geschoss
  • Personenaufzug
  • Garage
  • Gäste-WC
  • Garten

Grundrisse

Grundrisse
1 / 6

Realisiere Dein Projekt

Bausubstanz und Energie

Heizwärmebedarf (HWB)

B

Gesamtenergieeffizienz (fGEE)

A
  • Baujahr2024
  • Zustand der ImmobilieNeubau, Erstbezug
  • HeizungsartFußbodenheizung
  • EnergieträgerErdwärme, Luft-/Wasser-Wärmepumpe
MediumRectangleTop

Preisdetails

Kaufpreis
559700 €
8.555,49 €/m²
Provision für Käufer
provisionsfrei; Provision bezahlt der Abgeber.
Weitere Preisinformationen
1 Garagenstellplatz

Lage

address-icon
Wien,Hietzing (1130)
Nähe Lainzer Platz, Lainzerstraße

Weitere Informationen

Stichworte Tiefgarage vorhanden, Nord-Ost-Balkon/Terrasse, Fahrradraum, Anzahl der Badezimmer: 1, Anzahl der separaten WCs: 1, Anzahl Terrassen: 1, Balkon-Terrassen-Fläche: 12,62 m², Kellerfläche: 2,16 m², Bundesland: Wien, 3 Etagen Sonstiges/Wohnen: seniorengerechtes Wohnen

Weitere Services

Lust auf eine Besichtigung?
Eine Frage zur Immobilie?
Nachricht hinzufügen
Mit der Nutzung der oben angegebenen Telefonnummer oder durch Klicken auf „Kontaktieren“ akzeptierst Du die Allgemeinen Nutzungsbedingungen, denen Du jederzeit widersprechen kannst. Weitere Informationen zum Datenschutz

Über den Anbieter

Rudolfsplatz 3/14, 1010 WIEN
partner badge
Partnerschaft
Frau Alexandra Wagner, MSc.Dein Kontakt
Online-ID: 25YXJGY1JKWI
Referenznummer: OBGC20250604125304115139d853710
Anobis Immobilien GmbH
Anobis Immobilien GmbH
Bewertung: 4 von 5 Sternen
Nachricht hinzufügen
Mit der Nutzung der oben angegebenen Telefonnummer oder durch Klicken auf „Kontaktieren“ akzeptierst Du die Allgemeinen Nutzungsbedingungen, denen Du jederzeit widersprechen kannst. Weitere Informationen zum Datenschutz
MediumRectangleTop
MediumRectangleBottom
MediumRectangleTop
Wie zufrieden bist du mit dieser Seite (nicht mit der Immobilie selbst)?