

Studio zum Kauf9990 €131 €/m²3 Zimmer • 76,5 m² • 1. Geschoss
9990 €
131 €/m²
3 Zimmer • 76,5 m² • 1. Geschoss
3h, k, kph/wc, Badezimmer, Balkon
Merkmale
- 1. Geschoss
- Bidet
- Bad mit Dusche
- Bodenbelag: Linoleum
- Sauna
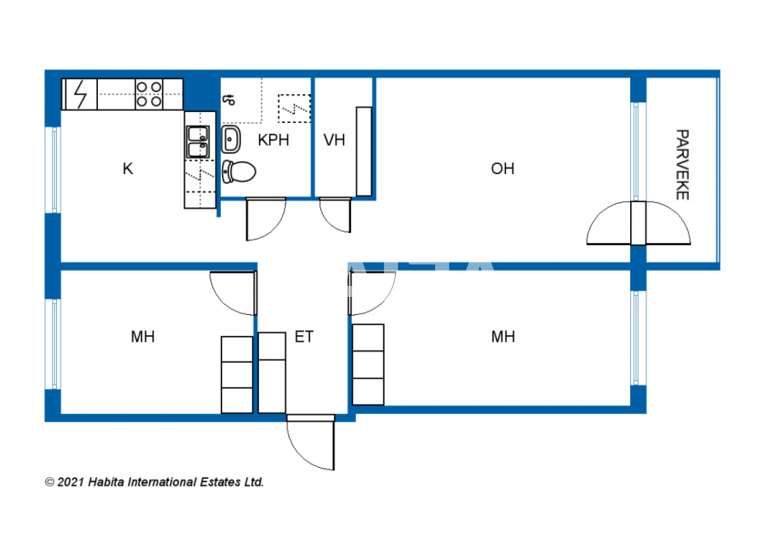
Grundrisse
Grundrisse
1 / 1
Realisiere Dein Projekt
Bausubstanz und Energie
Der Anbieter hat keine Informationen zum Energieverbrauch bereit gestellt.
- Baujahr1975
- HeizungsartZentralheizung
- EnergieträgerFernwärme
Preisdetails
Kaufpreis
9990 €
130,59 €/m²
Provision für Käufer
Bitte beachte, das Angebot beinhaltet bei Vertragsabschluss die Zahlung einer Provision. Weitere Informationen erhältst Du vom Anbieter.
Lage

Marttalanpolku 5, Kemi (94200)
Weitere Informationen
Weitere Services
Lust auf eine Besichtigung?
Eine Frage zur Immobilie?
Online-ID: 2lylf55
Referenznummer: 668381
maija.io
Wie zufrieden bist du mit dieser Seite (nicht mit der Immobilie selbst)?

