Version: 8.25.1Navigation überspringen
179.000 €
2 Zimmer  •  46 m²
Immowelt logo

Wohnung zum Kauf
179000 €
3.891 €/m²
2 Zimmer  •  46 m²

Helle 2-Zimmer-Wohnung am Stadtrand City in Reichweite

Sichern Sie sich diese smart geschnittene 2-Zimmer-Wohnung nahe dem Wienerberg! Diese Immobilie vereint eine durchdachte Raumaufteilung mit einer attraktiven Lage nur wenige Minuten ins Grüne und gleichzeitig bestens angebunden.

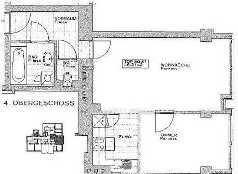
Die ca. 46 m² große Wohnung befindet sich im 4. Obergeschoss eines stilvoll sanierten Altbaus und überzeugt neben ihrer funktionalen sowie lichtdurchfluteten Raumaufteilung durch ihre Top-Lage.

DIE DETAILS:
*ca. 46 m² Wohnfläche, 2 Zimmer
* 4. Obergeschoss in einem sanierten Altbau
* funktionale und lichtdurchflutete Raumaufteilung
* Vorraum, Badezimmer, WC, Zimmer, Wohnraum mit Kochnische
* Fernwärmeheizung
* Aufzug im Haus vorhanden

DIE LAGE HIGHLIGHTS:
*Nähe Matzleinsdorfer Platz mit hervorragender Anbindung (S-Bahn, Straßenbahn, Bus)
*Schnelle Erreichbarkeit der Wiener Innenstadt
*Gute Anbindung an die Südosttangente (A23)
*Nahversorgung durch zahlreiche Supermärkte und Geschäfte des täglichen Bedarfs
*Erholungsgebiete wie Wienerberg und Grünflächen in der Umgebung

Der Kaufpreis für diese Eigentumswohnung mit hervorragender Infrastruktur beträgt Euro 179.000.

Tipp: Die gesamte Anlage wird gerade parifiziert und abverkauft. Fragen Sie uns nach weiteren Objekten bzw. Paketangeboten!

Wir möchten darauf hinweisen, dass unsere Antwort möglicherweise in Ihrem Spamordner landen könnte. Bitte kontrollieren Sie diesen, wenn Sie keine Rückmeldung auf Ihre Anfrage erhalten haben.

Wir freuen uns auf Ihre Anfrage und einen gemeinsamen Besichtigungstermin!

Merkmale

  • Personenaufzug
  • Keller

Grundrisse

Grundrisse
1 / 1

Realisiere Dein Projekt

Bausubstanz und Energie

Heizwärmebedarf (HWB)

C

Gesamtenergieeffizienz (fGEE)

C
  • Baujahr1900
  • Zustand der ImmobilieAltbau (bis 1945)
  • EnergieträgerFernwärme
Immowelt logo

Preisdetails

Kaufpreis
179000 €
3.891,30 €/m²
Provision für Käufer
3%
Weitere Preisinformationen

GrESt 3,5% + Grundbucheintragung 1,1% des Gesamtkaufpreises /Vertragserrichtung 1,5% + Barauslagen, Beglaubigungs-, ggf. Treuhandkosten bei Finanzierung +USt. (WeiKes RA) /
WE-Begründungsbeitrag ? 500 +USt. / Provision 3% +USt. des Kaufpreises

Lage

address-icon
Wien (1100)
Der Anbieter hat die genaue Adresse nicht freigegeben

Weitere Informationen

Stichworte Anzahl der Badezimmer: 1, Anzahl der separaten WCs: 1

Weitere Services

Lust auf eine Besichtigung?
Eine Frage zur Immobilie?
Nachricht hinzufügen
Mit der Nutzung der oben angegebenen Telefonnummer oder durch Klicken auf „Kontaktieren“ akzeptierst Du die Allgemeinen Nutzungsbedingungen, denen Du jederzeit widersprechen kannst. Weitere Informationen zum Datenschutz

Über den Anbieter

Paulanergasse 15, 1040 Wien
partner badge
Partnerschaft
Frau Melanie EiblthauerDein Kontakt
Keine Telefonnummer hinterlegt
Keine Telefonnummer hinterlegt
Online-ID: 2533SYVV6W2Z
Referenznummer: 247/21687
IMV Makler GmbH
IMV Makler GmbH
Bewertung: 4,1 von 5 Sternen
Nachricht hinzufügen
Mit der Nutzung der oben angegebenen Telefonnummer oder durch Klicken auf „Kontaktieren“ akzeptierst Du die Allgemeinen Nutzungsbedingungen, denen Du jederzeit widersprechen kannst. Weitere Informationen zum Datenschutz
Wie zufrieden bist du mit dieser Seite (nicht mit der Immobilie selbst)?