Version: 8.24.1Navigation überspringen
7.500.000 €
8 Zimmer  •  446,7 m²  •  1.132 m² Grundstück
Immowelt logo

Villa zum Kauf
7500000 €
16.791 €/m²
8 Zimmer  •  446,7 m²  •  1.132 m² Grundstück

AIGNER - Exklusive Villa in München - Pullach: Ihr Traumhaus auf großzügigem Eckgrundstück

Diese exklusive Villa im modernen Stil in München-Pullach bietet auf einem ca. 1.132 m² großen Grundstück außergewöhnliche Wohnqualität in bester Lage am Isarhochufer. Das Gebäude wurde 2016 vom Erdgeschoss bis zum Dach vollständig neu errichtet. Das Untergeschoss aus den 70er-Jahren wurde im Rahmen der Baumaßnahmen kernsaniert.

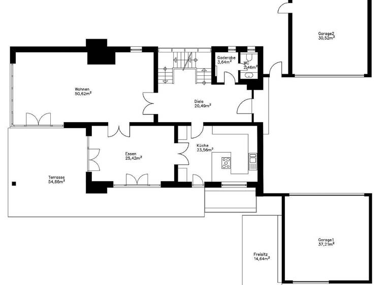
Über den großzügigen Eingangsbereich gelangen Sie ins Erdgeschoss, wo Sie auf rund 100 m² Wohnfläche eine offene Küche finden, die direkt in das ca. 25 m² große Esszimmer übergeht. Der etwa 50 m² große, lichtdurchflutete Wohnbereich ist mit einem eleganten Kamin ausgestattet. Von hier aus haben Sie Zugang zur überdachten Südost-Terrasse mit einer Feuerstelle bzw. einem Außenkamin. Ergänzt wird das Erdgeschoss durch eine Garderobe, ein Gäste-WC und den Zugang zum Garten, der einen separaten Freisitz bietet.

Im Obergeschoss befinden sich zwei helle Kinderzimmer, die jeweils Zugang zu einem Balkon haben, sowie ein modernes Duschbad. Der Elternbereich umfasst eine großzügige Ankleide, ein elegantes Badezimmer mit Dusche und Badewanne sowie ein Arbeitszimmer. Der separate Schlafbereich führt auf eine Terrasse mit Blick ins Grüne.

Das Dachgeschoss bietet ein Studio sowie ein weiteres Schlafzimmer mit charmanten Dachschrägen. Das Badezimmer ist mit einer Badewanne und einer Dusche ausgestattet. Ein kleiner Balkon rundet das Angebot ab.

Das Untergeschoss verfügt über eine Einliegerwohnung mit zwei Zimmern, eigenem Duschbad und Lichthof - ideal für Gäste oder eine Nanny. Zusätzlich stehen ein Schwimmbad mit Dusche, ein vorbereiteter Saunabereich und ein weiterer Lichthof zur Verfügung.

Vor der Villa befinden sich zwei Doppelgaragen mit Platz für insgesamt vier Fahrzeuge, während die breite Zufahrt Raum für drei weitere Autos bietet. Damit stehen großzügige Parkmöglichkeiten für die Familie und Gäste zur Verfügung.

Diese Villa überzeugt durch durchdachte Grundrisse, hochwertige Ausstattung und eine erstklassige Lage in München-Pullach - perfekt für Familien, die das Besondere suchen.

Merkmale

  • Bezug: nach Vereinbarung
  • 1.132 m² Grundstück
  • Einbauküche
  • Keller
  • 4 Stellplätze: 4 Garagen
  • Gäste-WC
Ruhige Lage
Dreifachverglasung
Südbalkon
Einbauküche
Ankleidezimmer
Bodentiefe Fenster
Schwimmbad
Vorbereiteter Saunabereich
Lichthof
Einliegerwohnung
Kamin
Überdachte Feuerstelle
Freisitz
Zwei Doppelgaragen
Abstellraum

Grundrisse

Grundrisse
1 / 4

Realisiere Dein Projekt

Bausubstanz und Energie

Energieausweis

  • Baujahr2016
  • Zustand der ImmobilieGepflegt
  • HeizungsartZentralheizung
Immowelt logo

Preisdetails

Kaufpreis
7500000 €
16.790,54 €/m²
Provision für Käufer
3,57% inkl. MwSt.
Die Käuferprovision beträgt 3,57% inkl. gesetzlicher Mehrwertsteuer vom wirtschaftlichen Kaufpreis. Unsere Angebote erfolgen freibleibend und unverbindlich. Irrtum und Zwischenverkauf bleiben vorbehalten.
Weitere Preisinformationen
4 Garagenstellplätze
Geschätzte Gesamtkosten
8.180.250 €1
Kaufpreis
7.500.000 €
Notarkosten (1,5%)
112.500 €
Grunderwerbsteuer (3,5%)
262.500 €
Provision für Käufer (3,57%)
267.750 €
Grundbucheintrag (0,5%)
37.500 €
1Der angezeigte Wert ist eine automatisch berechnete Schätzung von immowelt.
2Bei den Angaben handelt es sich um ortsübliche Werte. Individuelle Kosten können abweichen.

Lage

address-icon
Pullach (82049)
Der Anbieter hat die genaue Adresse nicht freigegeben
Der renommierte Villenvorort Pullach, idyllisch im Süden Münchens gelegen, erstreckt sich malerisch am westlichen Isarhochufer und zählt zweifellos zu den begehrtesten und exklusivsten Wohnlagen im Speckgürtel der bayerischen Landeshauptstadt. Das Ortsbild vereint auf faszinierende Weise historische Villen aus der Jahrhundertwende mit hochmodernen, luxuriösen Neubauten und schafft so eine unverwechselbare, stilvolle Atmosphäre.

Inmitten der grünen Natur und unweit des Isarhochufers gelegen, lädt das Umfeld zu ausgedehnten Spaziergängen, sportlichen Aktivitäten und entspannten Auszeiten ein. Der Starnberger See, ein weiteres Highlight dieser exklusiven Region, ist nur 30 Minuten mit dem Auto entfernt und erweitert das Freizeitangebot um zahlreiche Wassersportmöglichkeiten und malerische Uferlandschaften.

Für die medizinische Versorgung ist Pullach bestens ausgestattet: Ärzte, Apotheken und Gesundheitsdienste befinden sich im Ort, sodass alle wichtigen Einrichtungen bequem erreichbar sind. Die tägliche Versorgung wird durch mehrere gut sortierte Supermärkte sowie exklusive Feinkostgeschäfte, Restaurants und gemütliche Biergärten ergänzt. Das vielfältige Angebot an kleinen, stilvollen Modegeschäften rundet das Bild dieses charmanten Ortes ab.

Auch in Sachen Bildung erfüllt Pullach höchste Standards. Zahlreiche Schulen und Bildungseinrichtungen - von Kindergärten bis hin zu Gymnasien - befinden sich in unmittelbarer Nähe, was den Ort besonders für Familien attraktiv macht. Diese exquisite Villa in Pullach vereint somit alle Vorzüge eines gehobenen Lebensstils: eine perfekte Mischung aus naturnaher Ruhe, kultureller Vielfalt und bester Anbindung an das Münchner Stadtzentrum. Hier finden Sie höchste Lebensqualität in einer der gefragtesten und exklusivsten Lagen rund um München.

Weitere Informationen

Sonstiges Baujahr: 2016
Heizungsart: Zentralheizung
Energieausweistyp: Bedarfsausweis
Energiekennwert: 59,89 kWh/(m²*a)
Energieeffizienzklasse: B
Befeuerung/Energieträger: KWK Erneuerbar

Kostenlose Online-Bewertung - https://aigner-immobilien.de/wertermittlung-online-muenchen/

Zu unseren Marktberichten - https://aigner-immobilien.de/marktinformationen/

- https://aigner-immobilien.de/objekt/ID-42770/MehrBilderundInfoshier

Mehr Bilder und Infos hier - https://aigner-immobilien.de/objekt/ID-42770/ Stichworte Garage vorhanden, Nutzfläche: 624,00 m², Anzahl der Schlafzimmer: 6, Anzahl der Badezimmer: 5, Anzahl Terrassen: 3, 4 Etagen

Weitere Services

Lust auf eine Besichtigung?
Eine Frage zur Immobilie?
Nachricht hinzufügen
Mit der Nutzung der oben angegebenen Telefonnummer oder durch Klicken auf „Kontaktieren“ akzeptierst Du die Allgemeinen Nutzungsbedingungen, denen Du jederzeit widersprechen kannst. Weitere Informationen zum Datenschutz

Über den Anbieter

Ruffinistraße 26, 80637 München
Herr Mario MikicDein Kontakt
Online-ID: 2n7fh5s
Referenznummer: 42770
Aigner Immobilien GmbH
Aigner Immobilien GmbH
Nachricht hinzufügen
Mit der Nutzung der oben angegebenen Telefonnummer oder durch Klicken auf „Kontaktieren“ akzeptierst Du die Allgemeinen Nutzungsbedingungen, denen Du jederzeit widersprechen kannst. Weitere Informationen zum Datenschutz
Wie zufrieden bist du mit dieser Seite (nicht mit der Immobilie selbst)?