

Wohnung zum Kauf - Erstbezug • provisionsfrei831300 €8.497 €/m²4 Zimmer • 97,8 m² • EG
831300 €
8.497 €/m²
4 Zimmer • 97,8 m² • EG
Neubau: Familienfreundliche 4-Zimmer Wohnung mit Garten
Merkmale
- Bezug: Frühjahr 2027
- Erdgeschoss
- Barrierefrei
- Personenaufzug
- Keller
- Terrasse
- Tiefgarage
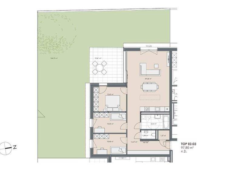
Grundrisse
Grundrisse
1 / 1
Realisiere Dein Projekt
Bausubstanz und Energie
Möchtest du Details zum Energieverbrauch?

- Baujahr2025
- Zustand der ImmobilieNeubau, Erstbezug
Preisdetails
Kaufpreis
831300 €
8.497,39 €/m²
Preis pro Stellplatz
35000 €
Provision für Käufer
provisionsfrei
Weitere Preisinformationen
1 Tiefgaragenstellplatz, Kaufpreis: 35.000,00 EUR
Lage

Loferer Straße, St. Johann in Tirol (6380)
Weitere Informationen
Weitere Services
Lust auf eine Besichtigung?
Eine Frage zur Immobilie?
Über den Anbieter
Leopoldstraße 1/4, 6020 INNSBRUCK
Partnerschaft
Frau Anela SrebricDein Kontakt
Weitere Unterlagen
Online-ID: 25WEU2KY4GSN
Referenznummer: 849-E0.03

ZIMA Wohn- und Projektmanagement GmbH
Wie zufrieden bist du mit dieser Seite (nicht mit der Immobilie selbst)?

