

Mehrfamilienhaus zum Kauf1090000 €3.621 €/m²12 Zimmer • 301 m² • 364 m² Grundstück
1090000 €
3.621 €/m²
12 Zimmer • 301 m² • 364 m² Grundstück
ALTBAUCHARME - DenkmalgeschĂĽtztes Wohnungspaket mit 5 Einheiten in zentraler Lage von Karlsruhe
Merkmale
- 364 m² Grundstück
- Keller
- Balkon
- Garten
- Waschraum
- Bodenbelag: Fliesen, Holzdielen
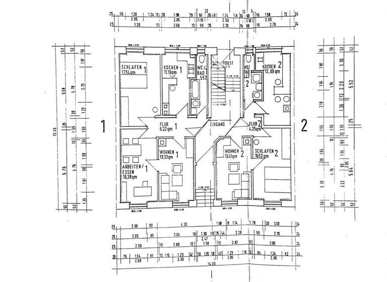
Grundrisse
Grundrisse
1 / 6
Realisiere Dein Projekt
Bausubstanz und Energie
Energieausweis
- Baujahr1908
- Zustand der ImmobilieGepflegt
- HeizungsartEtagenheizung
- EnergieträgerGas
Preisdetails
Kaufpreis
1090000 €
3.621,26 €/m²
Provision für Käufer
2,38% inkl. der gesetzlichen MwSt. zzgl. MwSt.
Wir arbeiten ausschlieĂźlich auf Basis eines Erfolgshonorars von 2,38% der Kaufsumme inkl. der gesetzl. MwSt., freibleibend einer Provision der anderen Vertragsseite.
Wir arbeiten ausschlieĂźlich auf Basis eines Erfolgshonorars von 2,38% der Kaufsumme inkl. der gesetzl. MwSt., freibleibend einer Provision der anderen Vertragsseite.
Weitere Preisinformationen
Ist-Mieteinnahmen pro Jahr: 33.540,00 EUR
Geschätzte Gesamtkosten
1.192.242 €1
Kaufpreis
1.090.000 €
Kaufnebenkosten
102.242 €
2Notarkosten (1,5%)
16.350 €
Grunderwerbsteuer (5%)
54.500 €
Provision für Käufer (2,38%)
25.942 €
Grundbucheintrag (0,5%)
5.450 €
1Der angezeigte Wert ist eine automatisch berechnete Schätzung von immowelt.
2Bei den Angaben handelt es sich um ortsübliche Werte. Individuelle Kosten können abweichen.
Lage

Oststadt, Karlsruhe (76131)
Der Anbieter hat die genaue Adresse nicht freigegeben
Weitere Informationen
Weitere Services
Lust auf eine Besichtigung?
Eine Frage zur Immobilie?
Ăśber den Anbieter
Am Sandfeld 13a, 76149 Karlsruhe

Herr Christopher DollDein Kontakt
Online-ID: 2l7ne5v
Referenznummer: 960


Pell-Rich Immobilien Michael Pellinghoff & Thomas Gierich GbR
Bewertung: 4,6 von 5 Sternen
Wie zufrieden bist du mit dieser Seite (nicht mit der Immobilie selbst)?

