Version: 8.24.0Navigation überspringen
Sirius Facilities GmbH
2 €
26,1 m² Bürofläche

Bürofläche zur Miete
2 €
/m²
26,1 m² Bürofläche

Büro im 1.OG, saniert & zentral mit Top-Ausstattung-ab 2 EUR/m²!*

Im Sirius Business Park Markgröningen finden Sie eine breite Auswahl an Gewerberäumen, die von Büros ab 18 m² über unterschiedlich große Lagerflächen bis hin zu Produktionsflächen für diverse Branchen reichen. Dieser Standort in einer der wirtschaftsstärksten Regionen Deutschlands bietet zahlreiche Vorteile, darunter E-Ladestationen und eine Kantine direkt im Business Park.
Darüber hinaus wissen unsere Mieter vor allem die Synergien zu schätzen, die ein so vielseitiger Standort bietet, denn hier profitieren Sie von kurzen Wegen und Austausch mit anderen Unternehmen.

Merkmale

  • Teeküche
  • Außen-Stellplatz
  • DSL-Anschluss
  • Bodenbelag: Teppich
  • Beleuchtung: Deckenbeleuchtung
  • Wachdienst
  • Fenster: Sonnenschutz
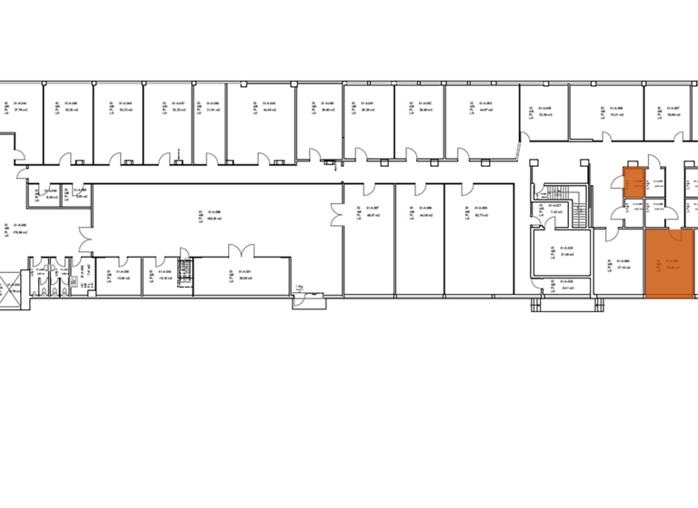
+ Bürofläche von 26,05 m² im 1.OG, saniert und sofort verfügbar
+ Inkl. 9,55 m² Nebenfläche
+ Ausgestattet mit CAT-Datenverkabelung, Teppichboden und Deckenbeleuchtung
+ DSL-Anschluss, eigene Teeküche und Sanitäranlagen
+ Etagenheizung für Komfort
+ Pförtnerdienst für Sicherheit und Service
+ Zentrale Lage und moderne Ausstattung
+ Direkte Vermietung vom Eigentümer




Rufen Sie am besten gleich an unter 0800 40 40 880 35 - unser Team steht sofort zur Verfügung! Wir freuen uns sehr, Sie persönlich zu beraten. Eine schnelle Besichtigung richten wir ebenfalls sehr gern für Sie ein.
Entdecken Sie auch zahlreiche weitere Alternativen, die wir Ihnen gerne unverbindlich vorstellen können.

Grundrisse

Grundrisse
1 / 1

Realisiere Dein Projekt

Bausubstanz und Energie

Der Anbieter hat keine Informationen zum Energieverbrauch bereit gestellt.
  • Zustand der Immobilierenoviert / saniert
  • HeizungsartEtagenheizung
MediumRectangleTop

Mietkosten

Monatliche Miete
2 €/m²
Provision für Mieter
Die Vermietung erfolgt provisionsfrei!
Kaution
3 Bruttowarmmieten

Lage

address-icon
Hans-Grüninger-Weg 11/14Markgröningen (71706)
Südwestlich des Markgröninger Stadtzentrums gelegen, ist der Sirius Business Park bequem über die L1138 zu erreichen. Für längere Anfahrten stehen die nahe gelegene B10 oder A81 zur Verfügung. Wenn Sie mit öffentlichen Verkehrsmitteln anreisen, können Sie verschiedene Buslinien bis zur Haltestelle Münchinger Straße nutzen. Von dort sind es weniger als fünf Minuten zu Fuß zu Ihrer Gewerbeimmobilie in Markgröningen.
Neben der Kantine direkt im Gewerbepark stehen mehrere Restaurants und Gaststätten in der direkten Umgebung zur Auswahl.

* Bequeme Anfahrt *

Bushaltestelle: 0,6 km
Bahnhof: 2,5 km
Anschluss an die A 81: 10 Minuten Fahrzeit

Weitere Informationen

Sonstiges *Das Angebot gilt für Neukundenverträge, die innerhalb von 72 Stunden nach Besichtigung unterzeichnet werden. Der Sonderpreis bezieht sich auf die Nettokaltmiete und wird ab einer Laufzeit von 12 Monaten in den ersten 2 Monaten gewährt. Das Angebot gilt im Zeitraum 08.09.25-31.03.26 auf ausgewählte Flächen und ist abhängig von Verfügbarkeit, nicht kombinierbar mit anderen Aktionen und Rabatten.

++Änderungen vorbehalten. Sämtliche in dieser Anzeige genannten Preise verstehen sich als freibleibendes Angebot. Für den Inhalt des Mietverhältnisses ist allein der geschlossene Mietvertrag nebst Anlagen verbindlich. Räumlichkeiten vor Ort können von den dargestellten Bildern abweichen.

+++++
Den Energieverbrauchsausweis finden Sie in der Anlage oder unter diesem Link http://www.siriusfacilities.com/de/energieausweise/uebersicht

Die Abbildungen bzw. die Fotos der Mietflächen dienen lediglich der optischen Orientierung. Die Abbildungen der Mietflächen begründen keinen Anspruch auf ihren Erhalt und bedeuten nicht, dass diese, wie abgebildet, auch zur Verfügung stehen. Für genauere Informationen zu den Mietflächen ist die Produktbeschreibung maßgeblich. Fahrzeit zur Auto... 10,00 Fahrzeit zum Flug... 30,00 Fahrzeit zum Bahnhof 10,00 Stichworte Sonstiges: EDV-Verkabelung, Getrennte Damen- und Herren-WCs

Weitere Services

Lust auf eine Besichtigung?
Eine Frage zur Immobilie?
Nachricht hinzufügen
Mit der Nutzung der oben angegebenen Telefonnummer oder durch Klicken auf „Kontaktieren“ akzeptierst Du die Allgemeinen Nutzungsbedingungen, denen Du jederzeit widersprechen kannst. Weitere Informationen zum Datenschutz

Über den Anbieter

Eichhornstraße 3, 10785 Berlin
partner badge
10 Jahre Partnerschaft
Herr Felix Meier
Herr Felix MeierDein Kontakt

Weitere Unterlagen

Online-ID: 2be6a5n
Referenznummer: AA11408
Sirius Facilities GmbH
title
Sirius Facilities GmbH
Bewertung: 4,4 von 5 Sternen
Nachricht hinzufügen
Mit der Nutzung der oben angegebenen Telefonnummer oder durch Klicken auf „Kontaktieren“ akzeptierst Du die Allgemeinen Nutzungsbedingungen, denen Du jederzeit widersprechen kannst. Weitere Informationen zum Datenschutz
MediumRectangleTop
MediumRectangleBottom
MediumRectangleTop
Wie zufrieden bist du mit dieser Seite (nicht mit der Immobilie selbst)?