Version: 8.24.0Navigation überspringen
Die BeratungsManufaktur GmbH
649.000 €
4 Zimmer  •  106,5 m²  •  4. Geschoss

Wohnung zum Kauf
649000 €
6.094 €/m²
4 Zimmer  •  106,5 m²  •  4. Geschoss

Familienfreundlich & renditestark - Helle 4-Zimmer-ETW mit Tiefgarage nahe S-Bahn

WICHTIG: Bitte Fordern Sie das komplette Expose an. Unter Anbieter kontaktieren bzw. Nachricht schreiben können Sie das Kontaktformular ausfüllen und erhalten daraufhin das Expose mit mehr Bildern so wie einen 360° Rundgang und Objektunterlagen.

Willkommen in Ihrem neuen Zuhause oder Ihrer attraktiven Kapitalanlage: Diese helle, durchdacht geschnittene 4-Zimmer-Eigentumswohnung mit ca. 106?m² Wohnfläche befindet sich in ruhiger Lage von Unterschleißheim - einer gefragten Wohngegend im Münchner Norden. Zwei großzügige Balkone (Süd- und Ost-Ausrichtung) bieten zu jeder Tageszeit sonnige Rückzugsorte. Der moderne Grundriss vereint ein offenes Wohn- und Esszimmer, drei separat nutzbare Schlaf-/Arbeitsräume, eine gepflegte Einbauküche sowie ein Wannenbad und ein Gäste-WC - ideal für Familien, Paare oder Homeoffice-Nutzer.

Die Wohnung liegt in einer gepflegten Wohnanlage mit eigenem Schwimmbad und Sauna - exklusiv für Bewohner. Ein TG-Stellplatz wird separat für einen Preis von 25.000 EUR erworben. Schulen, Kindergärten, Einkaufsmöglichkeiten sowie der beliebte Rolf-Zeitler-Park befinden sich in direkter Umgebung. Die S-Bahn ist fußläufig erreichbar, der Münchner Hauptbahnhof in nur ca. 20 Minuten - ideal für Berufspendler.

Ob als neues Zuhause oder nachhaltige Investition: Diese Wohnung überzeugt durch Substanz, Lage und Potenzial. Entdecken Sie ein Objekt, das Wertigkeit, Komfort und Zukunft vereint - und dabei noch echtes Wohlfühlambiente bietet.

Merkmale

  • Bezug: ab sofort
  • 4. Geschoss
  • Einbauküche
  • Personenaufzug
  • Kelleranteil
  • Tiefgarage
  • Gäste-WC
  • Balkon

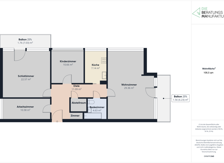
Grundrisse

Grundrisse
1 / 1

Realisiere Dein Projekt

Bausubstanz und Energie

Energieausweis

F
  • Baujahr1973
  • Zustand der Immobilieteilsaniert

Preisdetails

Kaufpreis
649000 €
6.093,90 €/m²
Preis pro Stellplatz
25000 €
Hausgeld
502.24 €
Provision für Käufer
3,57
Die Nachweis-/Vermittlungsprovision beträgt für den Käufer 3,57 % inkl. Der gesetzlichen MwSt. und errechnet sich aus dem tatsächlichem Kaufpreis. Weitere Informationen siehe Provisionshinweis.
Weitere Preisinformationen
1 Tiefgaragenstellplatz, Kaufpreis: 25.000,00 EUR
Geschätzte Gesamtkosten
707.864 €1
Kaufpreis
649.000 €
Notarkosten (1,5%)
9.735 €
Grunderwerbsteuer (3,5%)
22.715 €
Provision für Käufer (3,57%)
23.169 €
Grundbucheintrag (0,5%)
3.245 €
1Der angezeigte Wert ist eine automatisch berechnete Schätzung von immowelt.
2Bei den Angaben handelt es sich um ortsübliche Werte. Individuelle Kosten können abweichen.

Lage

address-icon
LohhofUnterschleißheim (85716)
Der Anbieter hat die genaue Adresse nicht freigegeben
Nur wenige Schritte vom Objekt entfernt beginnt der 12?ha große Rolf-Zeitler-Park, mit idyllischem See, Spielplätzen, Beachvolleyball- und Calisthenics-Anlagen sowie einem kleinen Aussichtshügel mit Alpenblick - ideal für Spaziergänge und Familienzeit direkt vor der Tür.

Unterschleißheim ist eine lebendige, rund 29?000 Einwohner starke Stadt ca.?17?km nördlich von München. Zahlreiche Kindergärten, Grund- und weiterführende Schulen bieten beste Betreuung & Bildung. Infrastruktur wie Einkaufszentren, Wochenmärkte, Kino und Gastronomie ist vielfältig vorhanden, ebenso wie das AquariUSH mit ganzjährigem Thermalwasser, Sauna und Sportbecken für Wellness und Freizeit.

Unterschleißheim gehört zur wirtschaftsstarken Nordallianz mit ansässigen High-Tech- und Dienstleistungsunternehmen wie BMW, Linde oder Baxter. Dank hervorragender Verkehrsanbindung über Autobahnen A92/A99 und S-Bahn S1 sind sowohl der Flughafen als auch die Stadt München in kürzester Zeit erreichbar. Die Region bietet hohe Lebensqualität, grüne Natur, ausgeprägte Kultur-, Sport- und Freizeitangebote sowie nachhaltige Infrastruktur.

Die Lage des Objekts bietet die perfekte Kombination aus urbaner Nähe, Natur & Freizeit direkt vor der Tür - ideal für Familien, Berufspendler und Genießer. Durch die attraktive Lage mit solider infrastruktureller Anbindung und hoher Vermietungsnachfrage ist dieses Objekt gleichzeitig interessant für Kapitalanleger.

Weitere Informationen

Provisionshinweis 3,57
Die Nachweis-/Vermittlungsprovision beträgt für den Käufer 3,57 % inkl. Der gesetzlichen MwSt. und errechnet sich aus dem tatsächlichem Kaufpreis. Sie ist bei Beurkundung des notariellen Kaufvertrages zur Zahlung fällig. Diese Provision ist unbeschadet der vereinbarten Nachweis-/bzw. Vermittlungsprovision (Innenprovision) des Verkäufers von 3,57 % aus dem tatsächlichen Kaufpreis zur Zahlung fällig. Wir sind somit auch für den Verkäufer als Makler tätig. Sonstiges Haftungsausschluss:
Eine Haftung für die Richtigkeit oder Vollständigkeit der Angaben werden nicht übernommen. Alle Angaben erfolgten auf Grundlage der Informationen unseres Kunden inkl. sämtlicher Dokumente insbesondere der Aufstellung der Modernisierung. Alle Immobilienangebote sind freibleibend und vorbehaltlich Irrtümer, Zwischenverkauf- und Vermietung oder sonstiger Zwischenverwertung.

Unser Service für Sie:
Sie sind auf der Suche nach einer Immobilie?
Gerne nehmen wir hierfür Ihr Suchprofil auf und werden Ihnen bei der Suche nach einer geeigneten Immobilie behilflich sein.

Sie sind Immobilieneigentümer und planen Ihre Immobilie oder Grundstück zu verkaufen?

Lassen Sie sich gerne von uns eine kostenlose Immobilienwertermittlung erstellen, hierfür arbeiten wir mit dem Marktführer und Spezialisten für Wertermittlungen zusammen.
Sprechen Sie uns hierzu an oder schreiben uns eine Email.

Gerne führen wir mit Ihnen eine individuelle Einzelbesichtigung durch. Vereinbaren Sie hierzu einen Besichtigungstermin mit uns. Wir freuen uns auf Sie. Stichworte Tiefgarage vorhanden, Anzahl der Schlafzimmer: 3, Anzahl der Badezimmer: 1, Anzahl Balkone: 1, Balkon-Terrassen-Fläche: 14,03 m², Bundesland: Bayern, 9 Etagen, modernisiert: 2013, Distanz zum Flughafen: 21.62, Distanz zum Hauptbahnhof: 1.81, Distanz zur Autobahn: 3.5, Distanz zum Bus: 0.12

Weitere Services

Lust auf eine Besichtigung?
Eine Frage zur Immobilie?
Nachricht hinzufügen
Mit der Nutzung der oben angegebenen Telefonnummer oder durch Klicken auf „Kontaktieren“ akzeptierst Du die Allgemeinen Nutzungsbedingungen, denen Du jederzeit widersprechen kannst. Weitere Informationen zum Datenschutz

Über den Anbieter

Gotzmannstraße 9, 90542 Eckental
partner badge
Partnerschaft
Herr Philipp SchützDein Kontakt
Online-ID: 2lpj958
Referenznummer: DBM-47110100
Die BeratungsManufaktur GmbH
Die BeratungsManufaktur GmbH
Bewertung: 4,4 von 5 Sternen
Nachricht hinzufügen
Mit der Nutzung der oben angegebenen Telefonnummer oder durch Klicken auf „Kontaktieren“ akzeptierst Du die Allgemeinen Nutzungsbedingungen, denen Du jederzeit widersprechen kannst. Weitere Informationen zum Datenschutz
Wie zufrieden bist du mit dieser Seite (nicht mit der Immobilie selbst)?