Version: 8.25.1Navigation überspringen
Vereinigte Volksbanken eG
Mietkosten auf Anfrage
48 Zimmer  •  2.510 m² Bürofläche

Bürogebäude zur Miete
Mietkosten auf Anfrage
48 Zimmer  •  2.510 m² Bürofläche

Repräsentativer Glasbau mit großzügigem Empfang und 48 Büros

Mitten im Herzen von Reutlingen erhebt sich eines der eindrucksvollsten Bürogebäude der Stadt - ein architektonisches Meisterwerk, das Vergangenheit und Zukunft in vollendeter Harmonie vereint. Schon beim Betreten öffnet sich ein riesiges, lichtdurchflutetes Foyer mit einer atemberaubenden Höhe von vier Stockwerken. Das gläserne Dach überspannt den Raum wie ein schützender Himmel und taucht das Innere in ein Spiel aus Tageslicht, Transparenz und Eleganz.

Rund um das Foyer gruppieren sich moderne Büroräume und elegante Gänge mit Glasfronten, die den Blick stets in das lebendige Zentrum des Gebäudes freigeben. Die offene Struktur fördert Kommunikation, Kreativität und Inspiration - ein Ort, an dem sich Arbeit und Atmosphäre auf besondere Weise verbinden.

Großzügige Tagungs- und Seminarräume bieten Raum für Ideen, Begegnungen und Präsentationen auf höchstem Niveau. Jedes Detail ist durchdacht: klare Linien, hochwertige Materialien und ein Zusammenspiel von Glas, Stahl und warmen Akzenten des historischen Altbaus.

Diese einzigartige Kombination aus moderner Architektur und klassischem Charme schafft ein Gebäude, das nicht nur repräsentativ, sondern auch vielseitig nutzbar ist - für Unternehmen, Agenturen, Kanzleien, Schulungen oder kulturelle Veranstaltungen.

Ein Haus mit Charakter und Strahlkraft - offen, hell und zukunftsorientiert. Ein Ort, an dem Reutlingens urbaner Geist sichtbar wird und jede Vision den passenden Raum findet.

Merkmale

  • Personenaufzug
Das Bürogebäude in der Reutlinger Stadtmitte besticht durch eine Ausstattung, die keine Wünsche offenlässt. Auf jeder Etage finden sich größere und kleinere Büroräume, flexibel gestaltbar und ideal für unterschiedliche Arbeitskonzepte - von Einzel- bis zu Team- und Großraumbüros. Ergänzt werden sie durch moderne Besprechungszimmer, die für Diskretion, Kreativität und produktive Gespräche geschaffen sind.
Jede Etage verfügt über eine eigene Teeküche, stilvoll und funktional eingerichtet - perfekt für kurze Pausen oder den informellen Austausch zwischendurch. Hochwertige WC-Anlagen in allen Etagen unterstreichen den hohen Komfortstandard des Hauses.
Die Architektur ist geprägt von Transparenz und Leichtigkeit: Glasfronten, klare Linien und lichtdurchflutete Flächen schaffen ein inspirierendes Arbeitsumfeld mit Blickbeziehungen über das gesamte Gebäude hinweg.
Ein besonders repräsentativer Empfangsbereich bildet das Herzstück des Hauses - großzügig, elegant und einladend, mit einer beeindruckenden Wirkung auf Besucher und Geschäftspartner.
Auch die Infrastruktur überzeugt: Eine großzügige Tiefgarage bietet zahlreiche Stellplätze, ergänzt durch Außenparkmöglichkeiten direkt am Gebäude. Damit ist eine komfortable Anreise jederzeit gewährleistet - für Mitarbeiter wie Gäste gleichermaßen.
Dieses Gebäude vereint modernes Design, höchste Funktionalität und ein Ambiente von Stil und Professionalität - ein Ort, an dem Arbeit, Architektur und Wohlgefühl perfekt miteinander harmonieren.

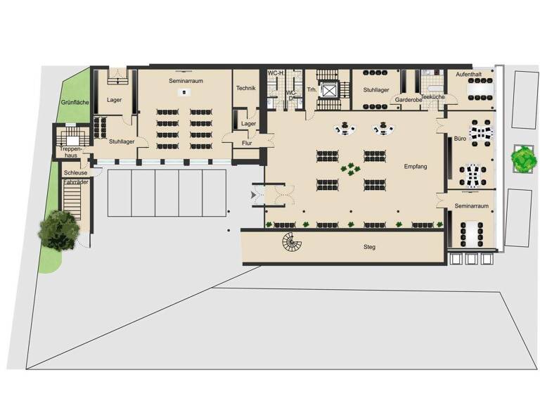
Grundrisse

Grundrisse
1 / 5

Realisiere Dein Projekt

Bausubstanz und Energie

Möchtest du Details zum Energieverbrauch?info_energy_calculation-icon
MediumRectangleTop

Mietkosten

Miete auf Anfrage
Provision für Mieter
Bitte beachte, das Angebot kann bei Vertragsabschluss die Zahlung einer Provision beinhalten. Weitere Informationen erhältst Du vom Anbieter.
Kaution
keine Angabe

Lage

address-icon
InnenstadtReutlingen (72764)
Der Anbieter hat die genaue Adresse nicht freigegeben
Die Reutlinger Stadtmitte bietet die ideale Bühne für einen repräsentativen Glasbau, der Transparenz, Moderne und Offenheit verkörpert. Hier schlägt das wirtschaftliche und kulturelle Herz der Stadt - ein lebendiger Ort, an dem Geschichte und Zukunft aufeinandertreffen. Ein Glasbau in dieser Lage wird nicht nur architektonisch glänzen, sondern auch durch seine Vielseitigkeit überzeugen: Ob als Büro- und Geschäftshaus, Ausstellungsfläche, Gastronomie oder Eventlocation - er fügt sich harmonisch in das urbane Umfeld ein und zieht gleichzeitig bewundernde Blicke auf sich.

Die hervorragende Infrastruktur mit kurzen Wegen, öffentlicher Verkehrsanbindung und Parkmöglichkeiten macht den Standort besonders attraktiv. Fußgängerfrequenz, Einkaufsstraßen, Cafés und kulturelle Einrichtungen sorgen für ein dynamisches Umfeld, das Leben, Arbeit und Begegnung vereint.

Dank seiner zentralen Position wird ein Glasbau hier zum Symbol für Fortschritt und Offenheit - ein Ort, an dem Ideen sichtbar werden und Unternehmen ein eindrucksvolles Schaufenster erhalten. Die natürliche Lichtdurchflutung schafft eine einladende Atmosphäre, während die Architektur klare Linien und Eleganz vermittelt.

Inmitten Reutlingens pulsiert dieser Bau als modernes Wahrzeichen - transparent, flexibel und voller Möglichkeiten. Ein Statement für Innovation und Stil im Herzen einer traditionsbewussten, gleichzeitig zukunftsorientierten Stadt.

Weitere Informationen

Sonstiges - Preis auf Anfrage
- Repräsentative Lage mit hervorragender Sichtbarkeit
- Optimale Verkehrsanbindung und Nähe zu öffentlichen Verkehrsmitteln
- Ab Frühjahr 2026 frei
- TG und AAP Plätze vorhanden
- Für viele Branchen geeignet
- Zeitloses, modernes Design mit klaren Linien und hochwertigen Materialien Stichworte Gesamtfläche: 2.510,00 m², vermietbare Fläche: 2.510,00 m², Anzahl der Tagungsräume: 1

Weitere Services

Lust auf eine Besichtigung?
Eine Frage zur Immobilie?
Mit einer persönlichen Nachricht hast du bessere Chancen auf eine Antwort.
Mit der Nutzung der oben angegebenen Telefonnummer oder durch Klicken auf „Kontaktieren“ akzeptierst Du die Allgemeinen Nutzungsbedingungen, denen Du jederzeit widersprechen kannst. Weitere Informationen zum Datenschutz

Über den Anbieter

Friedrich-List-Platz 1, 71032 Böblingen
Herr Michael MylonasDein Kontakt
Online-ID: 25QQGK4WHWGG
Referenznummer: 251356
Vereinigte Volksbanken eG
Vereinigte Volksbanken eG
Mit einer persönlichen Nachricht hast du bessere Chancen auf eine Antwort.
Mit der Nutzung der oben angegebenen Telefonnummer oder durch Klicken auf „Kontaktieren“ akzeptierst Du die Allgemeinen Nutzungsbedingungen, denen Du jederzeit widersprechen kannst. Weitere Informationen zum Datenschutz
MediumRectangleTop
MediumRectangleBottom
MediumRectangleTop
Wie zufrieden bist du mit dieser Seite (nicht mit der Immobilie selbst)?