




Bungalow zum Kauf458376 €4.148 €/m²4 Zimmer • 110,5 m² • 758 m² Grundstück
458376 €
4.148 €/m²
4 Zimmer • 110,5 m² • 758 m² Grundstück
Schön und bequem wohnen im Alter in Ketzin - 110?m² Bungalow, barrierearm & zukunftssicher mit PV-Anlage und Bauherrenvollkasko
Merkmale
- Bezug: 2026
- 758 m² Grundstück
- Einbauküche, offene Küche
- Gäste-WC
- Garten
- Barrierefrei
- Badezimmer: Badewanne, Bad mit Dusche, Bad mit Fenster
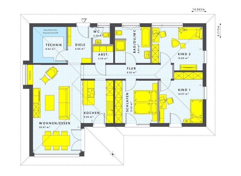
Grundrisse
Grundrisse
1 / 1
Virtueller Rundgang
Video

Realisiere Dein Projekt
Bausubstanz und Energie
Energieausweis
A+
- Baujahr2026
- Zustand der ImmobilieProjektiert
- HaustypKfW 40
- EnergieträgerLuft-/Wasser-Wärmepumpe
Preisdetails
Kaufpreis
458376 €
4.148,20 €/m²
Provision für Käufer
Das Grundstu?ck wird u?ber einen Drittanbieter provisionspflichtig verkauft.
Geschätzte Gesamtkosten
513.702 €1
Kaufpreis
458.376 €
Kaufnebenkosten
55.326 €
2Notarkosten (1,5%)
6.876 €
Grunderwerbsteuer (6,5%)
29.794 €
Provision für Käufer (3,57%)
16.364 €
Grundbucheintrag (0,5%)
2.292 €
1Der angezeigte Wert ist eine automatisch berechnete Schätzung von immowelt.
2Bei den Angaben handelt es sich um ortsübliche Werte. Individuelle Kosten können abweichen.
Lage

Ketzin (14669)
Der Anbieter hat die genaue Adresse nicht freigegeben
Weitere Informationen
Weitere Services
Lust auf eine Besichtigung?
Eine Frage zur Immobilie?
Über den Anbieter
Dorfstr. 37, 14547 Beelitz
Partnerschaft
Herr Pascal FröhlichDein Kontakt
Online-ID: 2ndrn5f
Referenznummer: 30460-7648
Wie zufrieden bist du mit dieser Seite (nicht mit der Immobilie selbst)?



