

Franz und Lotz Wohn- und Systembau GmbH
Frau Tanja Ohlwein
064 ···
Nr. anzeigenPreise & Kosten
Provision für Käufer
provisionsfrei
Lage
In schönster Feldrandlage bieten wir Ihnen exklusive Doppelhäuser in verschiedenen Größen und Architekturstilen für Familien, Paaren, Singles und Senioren.
Kurze Wege führen in die Universitätsstädte Gießen und Marburg.
Allendorf bietet für Familien eine sehr gute Infrastruktur: Kita´s, Tagesmütter, Grundschule mit...
Das Haus
Kategorie
Doppelhaushälfte
Geschosse
2 Geschosse
Baujahr
2026
Bezug
2027
Energie & Heizung
Warum sehe ich diese Anzeige? – Du siehst diese Anzeige basierend auf Ihrer Navigation auf unserer Website und den Suchkriterien, die du verwendet hast.
Gebäudetyp
Wohngebäude
Weitere Energiedaten
Heizungsart
Fußbodenheizung
Details
Objektbeschreibung
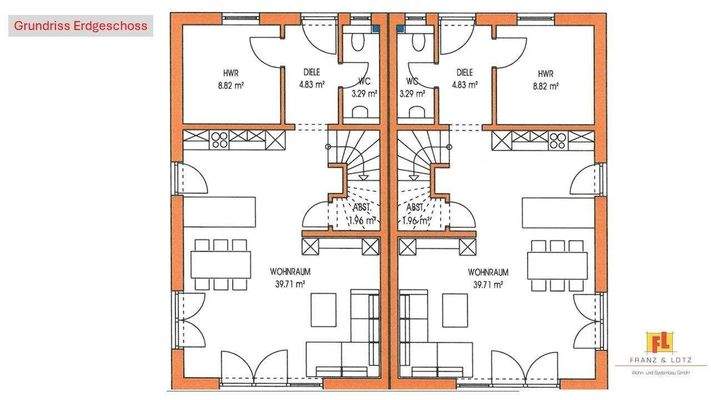
In schönster Südlage im Neubaugebiet der Kernstadt Allendorf-Lumda bieten wir Ihnen zwei hochwertige, perfekt durchdachte Design-Doppelhaushälften mit jeweils 4 lichtdurchfluteten Zimmern, offener Küche, Bad & Gäste WC und separaten Hauswirtschaftsraum.
Die Räume im Obergeschoss begeistern durch ein loftartiges...
Ausstattung
Highlights:
* Hochwertige FL-Massivbauweise
* Glasfaser für schnellste Internetverbindung
* Schlüsselfertig, inkl. Fliesen in Bad und Gäste-WC (Tapezierarbeiten und Bodenbeläge in allen anderen Räumen bauseits. Leistungserbringung gegen Mehrkosten gerne möglich)
* 36,5 cm Massivmauerwerk
* Inkl...
Weitere Informationen
Sonstige Informationen
Folgende Leistungen sind im Angebot noch nicht enthalten:
- sonstige Gebühren (Notar, Gericht, Grunderwerbsteuer etc.)
- Wand- und Bodenbeläge außer Fliesen im Bad und Gäste-WC
- Stellplätze, Zuwegung, Carport, Gartenhaus, Gartenterrasse, Pflanzen, Rasen.
Freie Gartengestaltung nach Ihren...
Anbieter der Immobilie
Franz und Lotz Wohn- und Systembau GmbH
Ahornweg 19, 35469 Allendorf/Lumda

Online-ID: 2nj555a
Finde Angebote wie dieses
Hier geht es zu unserem Impressum, den Allgemeinen Geschäftsbedingungen, den Hinweisen zum Datenschutz und nutzungsbasierter Online-Werbung.