Version: 8.26.0Navigation überspringen
MEERSTADTLAND GmbH
3.300 €
5 Zimmer  •  222,2 m² Bürofläche

Bürofläche zur Miete • provisionsfrei
3.300 €
5 Zimmer  •  222,2 m² Bürofläche

Moderne Bürofläche mit ca. 220 m² | Neubau 2024 | Hochwertige Ausstattung

Zur Vermietung steht eine repräsentative und lichtdurchflutete Bürofläche im Obergeschoss eines modernen Bürogebäudes aus dem Jahr 2024. Die gesamte Etage umfasst ca. 220 m² und bietet ideale Voraussetzungen für Unternehmen, die Wert auf ein professionelles Arbeitsumfeld sowie eine hochwertige und moderne Ausstattung legen.

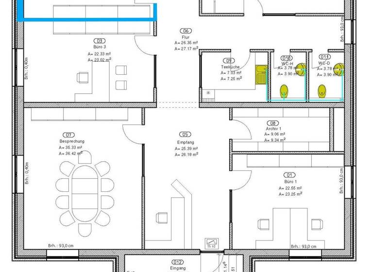
Die neuwertigen Räumlichkeiten überzeugen durch großzügige Fensterflächen, die eine angenehme und produktive Arbeitsatmosphäre schaffen. Insgesamt stehen drei klassische Büroräume sowie zwei großzügige Besprechungsräume zur Verfügung, die sich bei Bedarf ebenso flexibel als zusätzliche Büros nutzen lassen. Der große Besprechungsraum mit ca. 36 m² bietet Platz für bis zu 12 Personen und ist mit einem Präsentationsbildschirm ausgestattet. Zusätzlich steht ein weiterer Raum mit ca. 23 m² für Meetings, Präsentationen oder als weiteres Büro zur Verfügung.

Ein einladender Empfangsbereich sorgt bereits beim Betreten für einen professionellen ersten Eindruck bei Kunden und Geschäftspartnern. Ergänzt wird das Raumangebot durch eine moderne, voll ausgestattete Küche sowie getrennte Damen- und Herren-WCs.

Die Bürofläche kann sowohl möbliert als auch unmöbliert übernommen werden. Das vorhandene Inventar befindet sich in neuwertigem Zustand und kann nach Absprache erworben werden.

Abgerundet wird das Angebot durch fünf eigene Stellplätze inklusive E-Ladesäule sowie eine moderne Infrastruktur, die den hohen Anspruch an zeitgemäßes Arbeiten unterstreicht. Die Räumlichkeiten eignen sich ideal für Unternehmen, Agenturen, Dienstleister oder Start-ups, die eine moderne Arbeitsumgebung suchen.

Gerne informieren wir Sie persönlich über weitere Details und Besichtigungsmöglichkeiten.

Merkmale

  • Bezug: nach Vereinbarung
  • 1. Geschoss
  • Einbauküche
  • 5 Stellplätze: 5 Außen-Stellplätze
  • Gäste-WC
  • voll klimatisiert
  • Bodenbelag: Laminat, Teppich

Grundrisse

Grundrisse
1 / 1

Bausubstanz und Energie

Möchtest du Details zum Energieverbrauch?info_energy_calculation-icon
  • Baujahr2024
  • Zustand der Immobilieneuwertig
MediumRectangleTop

Mietkosten

Warmmiete
4.000 €
Nettomiete
3.300 €
Nebenkosten
700 €
Heizkosten
in Warmmiete enthalten
Provision für Mieter
provisionsfrei
Kaution
13.200 €
Weitere Preisinformationen
5 Stellplätze

Lage

address-icon
WedingHandewitt (24976)
Der Anbieter hat die genaue Adresse nicht freigegeben
Das Büro befindet sich im aufstrebenden Gewerbegebiet Heideland in Handewitt, einer begehrten Lage für Unternehmen verschiedenster Branchen. Das Gewerbegebiet Heideland zeichnet sich durch seine exzellente Verkehrsanbindung aus: Die Autobahn A7 und die Bundesstraße B200 verlaufen in unmittelbarer Nähe und bieten schnelle Verbindungen zu den umliegenden Städten sowie zu überregionalen Zielen. Dennoch ist keine Lärmbelästigung vorhanden. Dies erleichtert nicht nur den Pendelverkehr für Mitarbeiter, sondern auch die Anreise für Kunden und Geschäftspartner.

In der Nähe liegt die Stadt Flensburg, die mit einer breiten Palette an Einkaufsmöglichkeiten und Dienstleistungen aufwartet. Von Supermärkten bis zu Fachgeschäften ist hier alles vorhanden, was für den täglichen Bedarf benötigt wird. Zahlreiche Restaurants und Cafés bieten zudem ideale Möglichkeiten für Geschäftstreffen und entspannte Pausen.

Die strategische Lage des Gewerbegebiets Heideland, kombiniert mit einer umfassenden Infrastruktur und der Nähe zu Flensburg, macht es zu einem äußerst attraktiven Standort für Unternehmen. Hier finden Sie beste Voraussetzungen für erfolgreiches Arbeiten und geschäftliches Wachstum.

Weitere Informationen

Energiepass Energieausweis wird bei Besichtigung vorgelegt. Stichworte Stellplatz vorhanden, Gesamtfläche: 222,20 m², Anzahl der Badezimmer: 2, Bundesland: Schleswig-Holstein, Distanz zum Flughafen: 152.0, Distanz zum Hauptbahnhof: 7.1, Distanz zur Autobahn: 3.9, Distanz zum Bus: 0.75

Weitere Services

Lust auf eine Besichtigung?
Eine Frage zur Immobilie?
Mit einer persönlichen Nachricht hast du bessere Chancen auf eine Antwort.
Mit der Nutzung der oben angegebenen Telefonnummer oder durch Klicken auf „Kontaktieren“ akzeptierst Du die Allgemeinen Nutzungsbedingungen, denen Du jederzeit widersprechen kannst. Weitere Informationen zum Datenschutz

Über den Anbieter

Dorfstraße 20, 24805 Hamdorf
partner badge
6 Jahre Partnerschaft
Herr Jannick Harbs
Herr Jannick HarbsDein Kontakt
Online-ID: 24CR8RI5JS8J
Referenznummer: 358312
MediumRectangleTop
Wie zufrieden bist du mit dieser Seite (nicht mit der Immobilie selbst)?