Quality Living in Grünruhelage: Ihr neues Zuhause am Fuße des Gallitzinbergs
Kurzbeschreibung
Hier entsteht ein hochwertiger Neubau mit 15 Eigentumswohnungen (50-120 m²), die großzügige Freiflächen wie Balkone, Terrassen oder Gärten bieten. Die umweltfreundliche Bauweise mit Sole-Wasser-Wärmepumpe, die hochwertige Ausstattung sowie die ideale Verkehrsanbindung machen dieses Projekt zu einer perfekten Kombination aus Lebensqualität, Komfort und Nachhaltigkeit.
Objekt
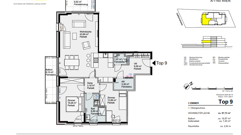
Wohnen in herrlicher Grünruhelage, großzügige Freiflächen und hochwertige Ausstattung.Das ist Quality Living von Raiffeisen WohnBau. In herrlicher Grünruhelage am Fuße des Gallitzinbergs in der Gallitzinstraße, in 1160 Wien entsteht ein qualitätsvoller Neubau von Raiffeisen WohnBau. In einer der attraktivsten Wohngegenden Ottakrings entstehen 15 freifinanzierte Eigentumswohnungen zwischen ca. 50 und 120 m². Alle Wohneinheiten werden über großzügige Freiflächen wie Balkone, Terrassen oder Gärten verfügen, die dazu einladen die Seele baumeln zu lassen. Die hauseigene Tiefgarage wird für 13 komfortable Einzelstellplätze Platz bieten. Der Baukörper ist von der Wohnstraße abgerückt und gliedert sich harmonisch in die Umgebung ein. Beheizt wird das Gebäude mit einer umweltfreundlichen Sole-Wasser-Wärmepumpe und Tiefenbohrungen, die zusätzlich im Sommer für eine leichte Temperierung der Wohnungen eingesetzt wird. Die Wohnungen selbst werden hochwertig ausgestattet und mit Echtholz-Fertigparkett, edlen Sanitäranlagen und nicht zuletzt durchdachten Grundrissen dafür sorgen, dass die eigenen vier Wände zu einer Wohlfühloase werden. Zum Verkauf gelangt eine attraktive 3-Zimmer-Wohnung mit 2 Balkone. Die Wohnung ist nach Süd-Westen und Süd-Osten ausgerichtet und wie folgt aufgeteilt: + Vorraum+ Abstellraum+ Bad+ WC+ Wohnküche ca. 43 m²+ 2 Schlafzimmer + 2 Balkone je ca. 8 m² Nebenkosten bei Kaufvertrag: 3,5% Grunderwerbsteuer1,1% GrundbuchseintragungsgebührKosten der Vertragserrichtung und grundbücherlichen Durchführung nach Vereinbarung(auf Basis Tarifordnung des jeweiligen Urkundenerrichters). Für weitere Informationen sowie Vereinbarung eines Besichtigungstermins steht Ihnen Frau Nataliya Maystruk unter der Mobilnummer 0664 / 60 517 517 39 oder per Email an nataliya.maystruk@riv.at gerne zur Verfügung. *** Aufgrund der Nachweispflicht gegenüber dem Eigentümer ersuchen wir um Verständnis, dass nur Anfragen mit vollständigem Namen, Adresse und Telefonnummer bearbeitet werden können! ***
Merkmale
Bezug: Nach Vereinbarung
1. Geschoss
Balkon
Grundrisse
Verschaffe dir einen genauen Überblick über die Raumaufteilung.
Bausubstanz und Energie
Heizwärmebedarf (HWB)
B
Gesamtenergieeffizienz (fGEE)
Baujahr2025
Preisdetails
Kaufpreis
806900 €806.900 €
8.256,42 €/m²
Provision für Käufer
provisionsfrei
Weitere Preisinformationen
Diese Wohnung kann auch als Anlegerwohnung erworben werden:Kaufpreis: EUR 725.300,- zzgl 20% USt. Die angegebenen laufenden Kosten sind nur Schätzwerte. Die genauen Kosten können erst nach Inbetriebnahme ermittelt werden. Zusätzlich kann optional ein Garagenplatz für EUR 37.000 bis EUR 39.000 dazu erworben werden. Hier fallen zusätzliche laufende Kosten an.
Lage
Wien (1160)
Der Anbieter hat die genaue Adresse nicht freigegeben
Lagebeschreibung: 1160 Wien, Gallitzinstraße 72 Dieses Projekt liegt in einer der begehrtesten Wohngegenden des 16. Wiener Gemeindebezirks, Ottakring, am Fuße des idyllischen Gallitzinbergs. Die Umgebung besticht durch eine perfekte Balance aus Ruhe und Lebensqualität: Der nahegelegene Wilhelminenberg und der Kongresspark bieten zahlreiche Freizeitmöglichkeiten wie Spaziergänge, Wanderungen und sportliche Aktivitäten in einer grünen, entspannten Umgebung. Gleichzeitig finden Sie in Ottakring ein breites Spektrum an Einkaufsmöglichkeiten, Gastronomie und kulturellen Angeboten, die den besonderen Charme des Bezirks prägen. Die Verkehrsanbindung ist ausgezeichnet: Die fußläufig erreichbare Buslinie 45A verbindet Sie direkt mit der U3-Station Ottakring, der S-Bahn-Linie S45 und der Straßenbahnlinie 44. Damit gelangen Sie rasch ins Stadtzentrum und zu anderen wichtigen Verkehrsknotenpunkten Wiens.Die Lage bietet auch eine hervorragende Infrastruktur mit Schulen, Kindergärten, Ärzten und Nahversorgern in der Nähe.
Weitere Informationen
Stichworte
Anzahl der Schlafzimmer: 2, Anzahl der Badezimmer: 1, Anzahl der separaten WCs: 1, Anzahl Balkone: 2, Kellerfläche: 7,20 m², Bundesland: Wien