NEU in Bretten - Im Baumgarten - Penthouse-Wohnung
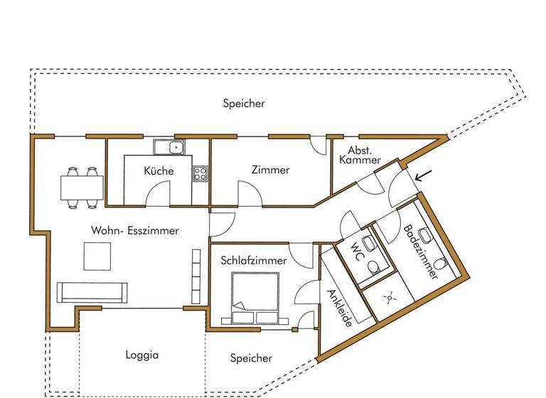
Diese exklusive 3,5-Zimmer-Penthouse-Wohnung lässt keine Wünsche offen. Sie begeistert durch ihre hochwertige Ausstattung und erfüllt die modernsten Standards des Wohnens. Mit einem großzügigen Wohn- und Esszimmer mit separatem Küchenbereich, erleben Sie hier ein lichtdurchflutetes Ambiente. Große Fenster mit elektrischen Rollläden sorgen nicht nur für eine optimale Lichtregulierung, sondern auch für ein angenehmes Raumklima. Die beiden anderen Zimmer bieten vielseitige Nutzungsmöglichkeiten: Ein Schlafzimmer, das als persönlicher Rückzugsort dient, und ein Gäste- / Kinder- / Arbeitszimmer, das flexibel gestaltet werden kann. Das barrierefreie Badezimmer sorgt zudem für höchsten Komfort und uneingeschränkte Zugänglichkeit. Ein Abstellraum, Speicherplatz sowie ein Kellerraum bieten viel Stauraum. Die einladende Loggia bietet einen geschützten Außenbereich, ideal zum Entspannen und Genießen der Aussicht. Die Fußbodenheizung sorgt für wohlige Wärme und trägt zum Wohngefühl bei. Selbstverständlich ist die Wohnung bequem über einen Aufzug erreichbar. Die hervorragende Gebäudedämmung nach KfW 55 EE sowie die hochwertige Dreifach-Isolierverglasung garantieren Ihnen nicht nur einen niedrigen Energieverbrauch, sondern auch ruhiges Wohnen ohne störende Außengeräusche. Ein optionaler Pkw-Stellplatz erleichtert die lästige Parkplatzsuche.
Es sind noch weitere exklusive Wohnungen verfügbar. Vereinbaren Sie ein persönliches Beratungsgespräch in unserem Büro und fordern Sie detaillierte Unterlagen an. Unser Ziel ist es, gemeinsam mit Ihnen die Wohnung zu finden, die all Ihre Wünsche erfüllt.
Merkmale
Personenaufzug
Kelleranteil
Badezimmer: Badewanne, Bad mit Dusche, Bad mit Fenster
Grundrisse
Grundrisse
1 / 2
Realisiere Dein Projekt
Bausubstanz und Energie
Der Anbieter hat keine Informationen zum Energieverbrauch bereit gestellt.
HeizungsartFußbodenheizung
EnergieträgerLuft-/Wasser-Wärmepumpe
Preisdetails
Kaufpreis
476200 €476.200 €
4.990,05 €/m²
Provision für Käufer
Bitte beachte, das Angebot kann bei Vertragsabschluss die Zahlung einer Provision beinhalten. Weitere Informationen erhältst Du vom Anbieter.
Geschätzte Gesamtkosten
526.534 €1
Kaufpreis
476.200 €
Kaufnebenkosten
50.334 €
2
Notarkosten (1,5%)
7.143 €
Grunderwerbsteuer (5%)
23.810 €
Provision für Käufer (3,57%)
17.000 €
Grundbucheintrag (0,5%)
2.381 €
1Der angezeigte Wert ist eine automatisch berechnete Schätzung von immowelt.
2Bei den Angaben handelt es sich um ortsübliche Werte. Individuelle Kosten können abweichen.
Lage
Bretten (75015)
Der Anbieter hat die genaue Adresse nicht freigegeben
Dieses sehr schöne Haus mit 10 Wohnungen, großem Garten und viel Grün drumherum, befindet sich in einer ruhigen Feldrandlange und Wohngegend von Bretten.
Bildung Mehrere Kindergärten und Kinderkrippen, zwei Grundschulen mit Ganztagesschulen sowie weiterführenden Schulen zum Beispiel Werkrealschulen, Realschule, zwei Gymnasien und die beruflichen Schulen sind bequem zu erreichen.
Leben Bretten bietet eine optimale Infrastruktur mit vielen Einkaufsmöglichkeiten, einem reichen Kulturleben und medizinischer Versorgung mit vielerlei Ärzten und Praxen sowie dem Kreiskrankenhaus. Bretten ist naturnah. Viele Freizeitangebote und ein reges Vereinsleben prägen das Stadtbild.
Verkehrsanbindung Die wichtigsten Nord-Süd- und West-Ost-Autobahnen umgeben die Stadt in Form eines großen Rechtecks. Die Bundesautobahn 8 ist über die Anschlussstelle Pforzheim-Nord, die A 5 über die Anschlussstellen Karlsruhe-Durlach und Bruchsal zu erreichen. Die Autobahnanschlüsse A8 Pforzheim Nord und A5 Bruchsal erreicht man in ca. 20 Minuten. Die Auffahrt zur Autobahn A5 Karlsruhe ist ca. 20 Kilometer entfernt.
Durch das Stadtgebiet führen die Bundesstraßen 35 Germersheim-Illingen, 293 Heilbronn-Berghausen und 294 nach Freiburg im Breisgau.
Der Bahnhof Bretten liegt am Schnittpunkt der Bahnstrecken Karlsruhe-Heilbronn und Westbahn Mühlacker-Bruchsal.
Weitere Informationen
Sonstiges
10 Wohnungen 1 Wohnung DG mit Loggia 1 Wohnung in DG mit Dachterrasse 10 Stellplätze im Hof, eine 4m Schallschutzwand wird eingebaut 1 Fahrradraum 1 HWR 1 Müllhäuschen Aufzug Spielplatz im Außenbereich
Bildung & Betreuung: . Kindertagesstätten, Krippen und Kindergärten . Grund- und Hauptschulen, Förderschule . Gemeinschafs- und Ganztagesschule . Werkrealschulen und Realschule . Gymnasien und berufliche Gymnasien . Berufliche Schulen . Musikschulen
Handel . Supermärkte, Discounter, Bio- und Drogeriemärkte . Metzgereien, Bäckereien, Direktvermarkter . Einzelhandels- und Fachgeschäfte . Baumärkte . Autohäuser
Medizinische Versorgung . Krankenhaus und Dialysezentrum . Apotheken . Haus- und Fachärzte, Kinderärzte, Heilpraktiker . Zahnärzte . Therapeuten uvm.
Industrie & Handwerk . Ansiedlung von großen Unternehmen bis zum Handwerk
Vereine . Sehr großes Angebot an Sport-, Musik-, Freizeit- und Fördervereinen
Stichworte
Anzahl der Badezimmer: 1, Anzahl der separaten WCs: 1, Bundesland: Baden-Württemberg
Sonstiges/Wohnen: seniorengerechtes Wohnen