Version: 8.26.0Navigation überspringen
ohne-makler.net - Immobilien selbst vermarkten
829.000 €
5 Zimmer  •  177 m²  •  675 m² Grundstück

Mehrfamilienhaus zum Kauf • provisionsfrei
829000 €
4.684 €/m²
5 Zimmer  •  177 m²  •  675 m² Grundstück

Dreifamilienhaus Bj 2020, Angebot EG Wohnung mit Indoorpool und Garten in Bad Mergentheim

In diesem Dreifamilienhaus werden die Wohnungen einzeln verkauft. Der angegebene Kaufpreis gilt für den Kauf der Erdgeschoßwohnung. Diese wird sofort zum Kauf angeboten, die beiden Dachgeschoßwohnungen können ab 03/2029 erworben werden.

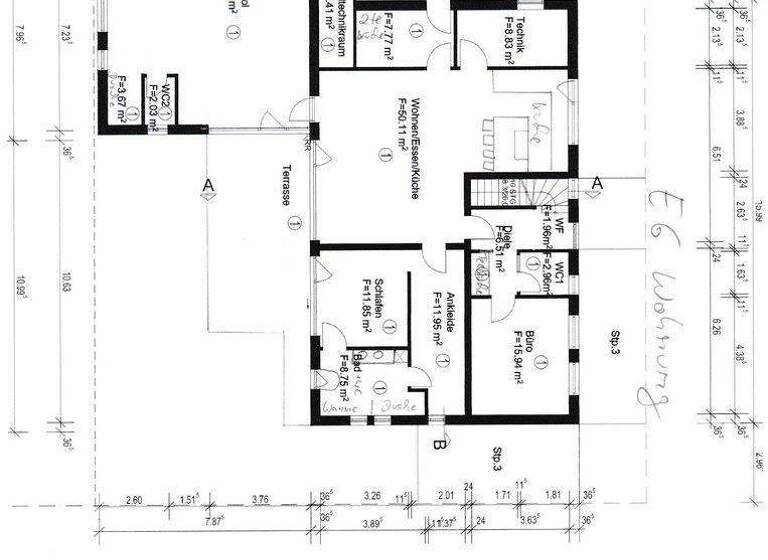
Das Angebot gilt somit als erstes für die exklusive Erdgeschosswohnung mit ca. 177 m² Wohnfläche. Das Haus wurde 2020 erbaut und befindet sich in einem Erstbezug-Zustand in Dainbach, einem Ortsteil von Bad Mergentheim. Die Erdgeschoßwohnung verfügt über 5 Zimmer, 2 Küchen, zuzüglich einer Teeküche, 3 Badezimmer und das Highlight: ein Indoorpool ganzjährig zu nutzen. Der gesamte Garten und die Terrassen stehen zur alleinigen Nutzung der Erdgeschoßwohnung zur Verfügung.

Die Wohnung ist barrierefrei und bietet höchsten Wohnkomfort mit einer gehobenen Innenausstattung. Ein großzügiger komplett angelegter Garten, sowie eine Terrasse laden zum Entspannen ein. Die Beheizung erfolgt über eine Luft-Wasser-Wärme-Pumpe und ein separates Lüftungssystem nur für die EG Wohnung ist ebenfalls vorhanden. Ein Garagenstellplatz, sowie ein Stellplatz vor der Garage runden das Angebot ab, diese sind bereits im Kaufpreis enthalten.

Es besteht die Möglichkeit alle Küchen, sowie alle vorhandenen Einbauschränke der Erdgeschoßwohnung, Wert 50.000 Euro mit zu erwerben. Auch eine Teilübernahme ist möglich.

Das Objekt steht sofort zum Verkauf und kann ab 30.06.2027 bezogen werden.

Die beiden Dachgeschoßwohnungen im ersten OG:
Eine große Dachgeschoßwohnung mit Einbauküche und 2 Balkonen 87 qm und eine kleine Dachgeschoßwohnung mit Einbauküche 44 qm werden jeweils in 03/2029 verkauft. Details siehe Exposé.

Im Exposé ist ein Kaufpreis für die Erdgeschoßwohnung in Höhe von 879.000 Euro angegeben, da hier die 50.000 Euro Möbelübernahme bereits mit eingerechnet wurde, was wie schon geschrieben aber nicht zwingend übernommen werden muss.

Interesse an einer Besichtigung?! Dann möchte ich Sie bitten mich vorab zwecks Terminabsprache zu kontaktieren. Dafür bitte ich um Mitteilung des vollständigen Namens und Ihrer Adresse.

Es befinden sich zwei große Hunde im Haus, die ihren Job als Security durchaus ernst nehmen. Daher ist eine vorherige Terminabsprache unabdingbar. Das gesamte Haus wird innen wie außen videoüberwacht.

Merkmale

  • Bezug: nach Absprache
  • 675 m² Grundstück
  • Einbauküche
  • Garage
  • Balkon
  • Garten
  • Terrasse
  • Barrierefrei

Grundrisse

Grundrisse
1 / 1

Bausubstanz und Energie

Energieausweis

A
  • Baujahr2020
  • Zustand der Immobilieneuwertig
  • HeizungsartFußbodenheizung
  • EnergieträgerElektro
MediumRectangleTop

Preisdetails

Kaufpreis
829000 €
4.683,62 €/m²
Provision für Käufer
provisionsfrei; keine Provision, courtagefrei
Weitere Preisinformationen
1 Garagenstellplatz
Geschätzte Gesamtkosten
887.030 €1
Kaufpreis
829.000 €
Notarkosten (1,5%)
12.435 €
Grunderwerbsteuer (5%)
41.450 €
Grundbucheintrag (0,5%)
4.145 €
1Der angezeigte Wert ist eine automatisch berechnete Schätzung von immowelt.
2Bei den Angaben handelt es sich um ortsübliche Werte. Individuelle Kosten können abweichen.

Lage

address-icon
Badner Weg 5DainbachBad Mergentheim (97980)
Bad Mergentheim ist eine charmante Stadt mit einer guten Infrastruktur. Die Wohnung bzw. das Haus befindet sich in Dainbach, einem Ortsteil ca. 7 Km von Bad Mergentheim entfernt.
Das Haus liegt ländlich umgeben von Wiesen, Feldern und Wald und doch ist man mit dem Auto schnell in Bad Mergentheim.
Die großen Städte wie Würzburg ca. 50 Kilometer, Heilbronn ca. 60 Km, Stuttgart ca. 100 Km und Frankfurt ca. 110 Km sind über die A81 ebenfalls schnell zu erreichen.
Infrastruktur (im Umkreis von 5 km):
Lebensmittel-Discount, Öffentliche Verkehrsmittel

Weitere Informationen

Sonstiges Heizungsart: Fußbodenheizung
Energieträger: Strom


Makleranfragen nicht erwünscht. Nach § 7 UWG sind unaufgeforderte Kontaktaufnahmen durch Makler ohne ausdrückliche Einwilligung des Empfängers verboten!

ohne-makler (OM) ist weder Anbieter noch Vermittler der Immobilie. OM betreibt eine Plattform für Immobilieneigentümer, die unter anderem die gleichzeitige Veröffentlichung einzelner Inserate auf mehreren Immobilienportalen ermöglicht. Die Inhalte dieser Inserate werden ausschließlich von Dritten verantwortet. Für die Richtigkeit, Vollständigkeit oder Rechtmäßigkeit der Angaben übernimmt OM keine Haftung. Hinweise auf mögliche Rechtsverstöße können jederzeit gemeldet werden und werden nach Prüfung umgehend bearbeitet. Stichworte Garage vorhanden, Anzahl der separaten WCs: 1, Anzahl Balkone: 2, Anzahl Terrassen: 1, Bundesland: Baden-Württemberg

Weitere Services

Lust auf eine Besichtigung?
Eine Frage zur Immobilie?
Nachricht hinzufügen
Mit der Nutzung der oben angegebenen Telefonnummer oder durch Klicken auf „Kontaktieren“ akzeptierst Du die Allgemeinen Nutzungsbedingungen, denen Du jederzeit widersprechen kannst. Weitere Informationen zum Datenschutz

Über den Anbieter

Humboldtstr. 25 A, 21509 Glinde
partner badge
Partnerschaft
Privat von Monika MartinDein Kontakt
Keine Telefonnummer hinterlegt
Keine Telefonnummer hinterlegt

Weitere Unterlagen

Online-ID: 2556TVPGA1Q1
Referenznummer: 412092
MediumRectangleTop
Wie zufrieden bist du mit dieser Seite (nicht mit der Immobilie selbst)?